Hi There! Is this Your First Time?
Did you know if you Register you have access to free search tools including the ability to save listings and property searches? Did you know that you can bypass the search altogether and have listings sent directly to your email address? Check out our how-to page for more info.
- Price$750,000
- Beds5
- Baths4
- SQ. Feet2,485
- Acres0.30
- Built2024
137 Timothy Park Lane, Athens
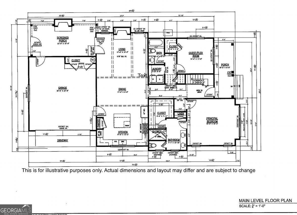
Nestled in desirable Village Park at Timothy community is this two story Craftsman that offers a sprawling floor plan with just under 2,500 heated square feet. This new construction home features energy efficient windows and doors, a two car garage with added storage space, sizable covered porch, and fine details for modern conveniences. The exterior offers architectural elements dating back to the original craftsman style bungalows of the early 20th century. The exterior is constructed from cementitious materials for durability, longevity, and low maintenance. Just inside you will find an open foyer and stair landing for the upstairs. Just beyond the foyer, is a hallway leading to the primary bedroom on one side and an additional main level bedroom and full bathroom on the other. The spectacular primary bedroom has an ensuite bathroom with a dual sink vanity, stand-up shower, and spacious walk-in closet. The back of the home opens up and showcases a large dining area, well appointed kitchen, and spacious great room. The chefs kitchen features quartz counter tops, a large island, an elevated appliance package, and tile backsplash. The great room centers around a fireplace and doors to the covered porch. As a member of The Village Park HOA, your sanitation, lawn maintenance and common area maintenance are included. This home provides convenient in-town living central to everything and second to none in class, price, and location.
Essential Information
- MLS® #10289381
- Price$750,000
- Bedrooms5
- Bathrooms4.00
- Full Baths4
- Square Footage2,485
- Acres0.30
- Year Built2024
- TypeResidential
- Sub-TypeSingle Family Residence
- StyleCraftsman
- StatusActive
Amenities
- UtilitiesHigh Speed Internet
- Parking Spaces2
- ParkingAttached, Garage
Exterior
- Exterior FeaturesOther
- Lot DescriptionLevel
- RoofComposition
- ConstructionOther
Additional Information
- Days on Market560
Community Information
- Address137 Timothy Park Lane
- SubdivisionVillage Park
- CityAthens
- CountyClarke
- StateGA
- Zip Code30606
Interior
- Interior FeaturesHigh Ceilings, Master On Main Level
- AppliancesDishwasher, Microwave, Oven/Range (Combo)
- HeatingCentral, Electric, Heat Pump
- CoolingCeiling Fan(s), Central Air, Electric
- FireplaceYes
- # of Fireplaces1
- FireplacesOther
- StoriesTwo
School Information
- ElementaryTimothy
- MiddleClarke
- HighClarke Central
Listing Details
- Listing Provided Courtesy Of Coldwell Banker Upchurch Realty
Price Change History for 137 Timothy Park Lane, Athens, GA (MLS® #10289381)
| Date | Details | Price | Change |
|---|---|---|---|
| Active (from New) | – | – |
The data relating to real estate for sale on this web site comes in part from the Broker Reciprocity Program of Georgia MLS. Real estate listings held by brokerage firms other than Go Realty Of Georgia & Alabam are marked with the Broker Reciprocity logo and detailed information about them includes the name of the listing brokers.
The information being provided is for consumers' personal, non-commercial use and may not be used for any purpose other than to identify prospective properties consumers may be interested in purchasing. Information Deemed Reliable But Not Guaranteed.
The broker providing this data believes it to be correct, but advises interested parties to confirm them before relying on them in a purchase decision.
Copyright 2025 Georgia MLS. All rights reserved.
Listing information last updated on December 3rd, 2025 at 4:15pm CST.



















