Hi There! Is this Your First Time?
Did you know if you Register you have access to free search tools including the ability to save listings and property searches? Did you know that you can bypass the search altogether and have listings sent directly to your email address? Check out our how-to page for more info.
- Price$242,000
- Acres0.17
917 Wemberley Lane, Marietta
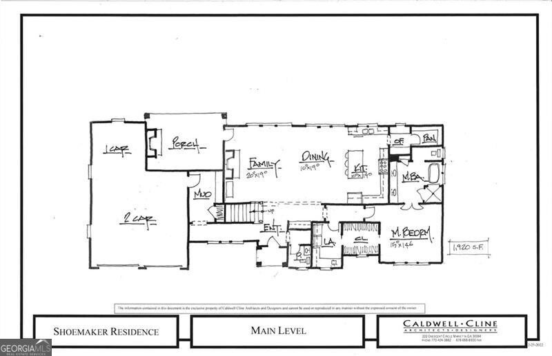
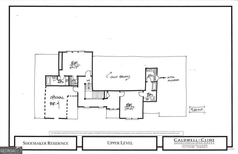
This gorgeous, gated neighborhood of custom homes is located less than 2 miles from the Marietta Square. Homes are to be built with John and Joseph Elliot and plans to be drawn by Roger Caldwell with Caldwell-Cline architects. This owner has an amazing plan draft specifically for this lot available for purchase. This stunning plan shows master suite on main, mudroom, family room, dining area, vaulted ceilings & fabulous kitchen! Upstairs will include 2-3 additional bedrooms and 2 full baths. Spacious home just under 3000 sq ft. What looks like a 2-car garage is actually a 3-car as one garage is arranged for tandem 2 cars. Enjoy your back porch or join neighbors around the firepit at the community gathering place. This gated community is located in very close proximity to all the amenities you need! Award-winning schools too! Act now and take advantage of this Marietta location.
Essential Information
- MLS® #10345193
- Price$242,000
- Bathrooms0.00
- Acres0.17
- TypeLand
- Sub-TypeResidential Lot
- StatusActive
Amenities
- UtilitiesCable Available, Electricity Available, Natural Gas Available, Sewer Available, Phone Available, Underground Utilities, Water Available
School Information
- ElementaryWest Side
- MiddleMarietta
- HighMarietta
Listing Details
- Listing Provided Courtesy Of Re/max Around Atlanta
Community Information
- Address917 Wemberley Lane
- SubdivisionThe Cottages at Keeler Woods
- CityMarietta
- CountyCobb
- StateGA
- Zip Code30064
Exterior
- Lot DescriptionLevel
Additional Information
- Days on Market340
Price Change History for 917 Wemberley Lane, Marietta, GA (MLS® #10345193)
| Date | Details | Price | Change |
|---|---|---|---|
| Active (from New) | – | – |
The data relating to real estate for sale on this web site comes in part from the Broker Reciprocity Program of Georgia MLS. Real estate listings held by brokerage firms other than Go Realty Of Georgia & Alabam are marked with the Broker Reciprocity logo and detailed information about them includes the name of the listing brokers.
The information being provided is for consumers' personal, non-commercial use and may not be used for any purpose other than to identify prospective properties consumers may be interested in purchasing. Information Deemed Reliable But Not Guaranteed.
The broker providing this data believes it to be correct, but advises interested parties to confirm them before relying on them in a purchase decision.
Copyright 2025 Georgia MLS. All rights reserved.
Listing information last updated on November 4th, 2025 at 6:30pm CST.










