Hi There! Is this Your First Time?
Did you know if you Register you have access to free search tools including the ability to save listings and property searches? Did you know that you can bypass the search altogether and have listings sent directly to your email address? Check out our how-to page for more info.
- Price$269,900
- Beds4
- Baths2
- SQ. Feet1,672
- Acres0.20
- Built2024
Orchard Circle, Edgefield
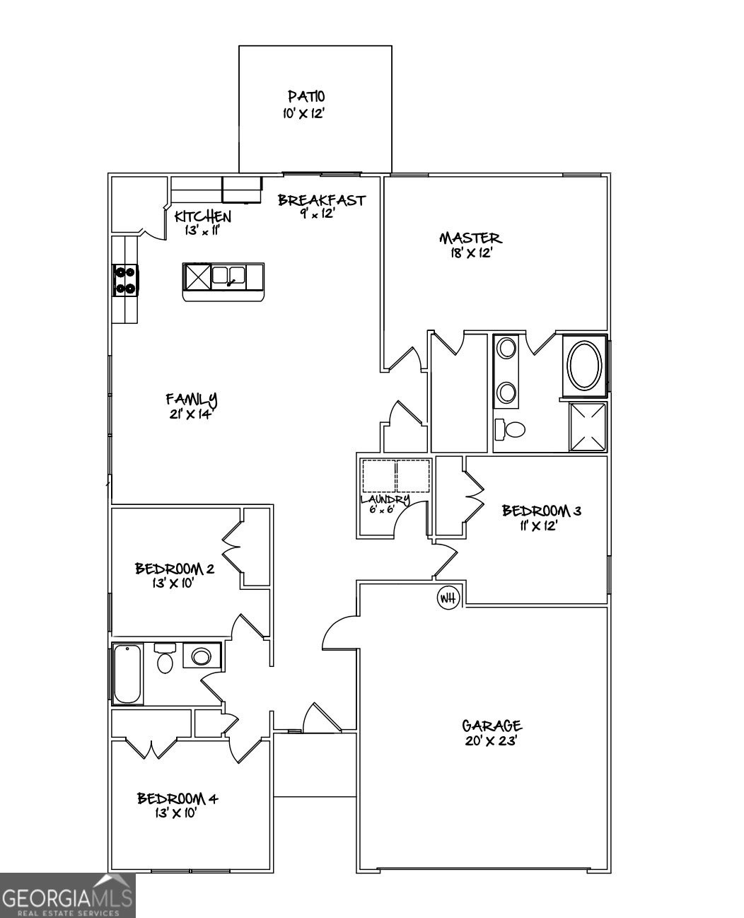
Builder is currently offering a $10,000 incentive! (some restrictions apply). This new construction Bridgeport ranch-style home has a roomy, open kitchen with luxury granite countertops, 8 inch undermount stainless sink, soft close cabinet doors and recessed lighting. Stainless steel Whirlpool brand appliances include free standing electric range, matching 1000W microwave and EnergyStar dishwasher. Flooring is luxury vinyl tile in main living areas, bathrooms, and laundry with carpet in bedrooms. The four-bedroom Bridgeport offers a large great room as well as an owner's bathroom complete with a four-foot shower, a separate garden tub, and double vanities. Attached 2 stall garage. Convenient location for schools and shopping. Vyve cable internet available, with underground utilities. This home is a pre-construction opportunity. You can select your lot and your colors!
Essential Information
- MLS® #10348010
- Price$269,900
- Bedrooms4
- Bathrooms2.00
- Full Baths2
- Square Footage1,672
- Acres0.20
- Year Built2024
- TypeResidential
- Sub-TypeSingle Family Residence
- StyleRanch
- StatusActive
Amenities
- UtilitiesCable Available, Electricity Available, High Speed Internet
- ParkingAttached, Garage
Exterior
- Lot DescriptionLevel
- RoofComposition
- ConstructionVinyl Siding
- FoundationSlab
Additional Information
- Days on Market467
Community Information
- AddressOrchard Circle
- SubdivisionOrchard Estates
- CityEdgefield
- CountySc Counties
- StateSC
- Zip Code29824
Interior
- Interior FeaturesMaster On Main Level, Pulldown Attic Stairs, Walk-In Closet(s)
- AppliancesDishwasher, Electric Water Heater, Microwave, Oven/Range (Combo)
- HeatingCentral
- CoolingCentral Air
- StoriesOne
School Information
- ElementaryOther
- MiddleOther
- HighOther
Listing Details
- Listing Provided Courtesy Of Weichert, Realtors-pendarvis
Price Change History for Orchard Circle, Edgefield, SC (MLS® #10348010)
| Date | Details | Price | Change |
|---|---|---|---|
| Active | – | – | |
| Price Change | – | – | |
| Price Increased | $269,900 | $900 (0.33%) | |
| Active | – | – | |
| Price Change | – | – | |
| Show More (14) | |||
| Price Increased | $269,000 | $1,000 (0.37%) | |
| Active | – | – | |
| Price Change | – | – | |
| Price Increased | $268,000 | $2,000 (0.75%) | |
| Active | – | – | |
| Price Change | – | – | |
| Price Increased | $266,000 | $2,000 (0.76%) | |
| Active | – | – | |
| Price Change | – | – | |
| Price Reduced | $264,000 | $10,000 (3.65%) | |
| Active | – | – | |
| Price Change | – | – | |
| Price Reduced (from $279,000) | $274,000 | $5,000 (1.79%) | |
| Active (from New) | – | – | |
The data relating to real estate for sale on this web site comes in part from the Broker Reciprocity Program of Georgia MLS. Real estate listings held by brokerage firms other than Go Realty Of Georgia & Alabam are marked with the Broker Reciprocity logo and detailed information about them includes the name of the listing brokers.
The information being provided is for consumers' personal, non-commercial use and may not be used for any purpose other than to identify prospective properties consumers may be interested in purchasing. Information Deemed Reliable But Not Guaranteed.
The broker providing this data believes it to be correct, but advises interested parties to confirm them before relying on them in a purchase decision.
Copyright 2025 Georgia MLS. All rights reserved.
Listing information last updated on December 26th, 2025 at 11:46am CST.









