Hi There! Is this Your First Time?
Did you know if you Register you have access to free search tools including the ability to save listings and property searches? Did you know that you can bypass the search altogether and have listings sent directly to your email address? Check out our how-to page for more info.
- Price$301,900
- Beds4
- Baths3
- SQ. Feet2,141
- Acres0.20
- Built2025
Peach Lane, Edgefield
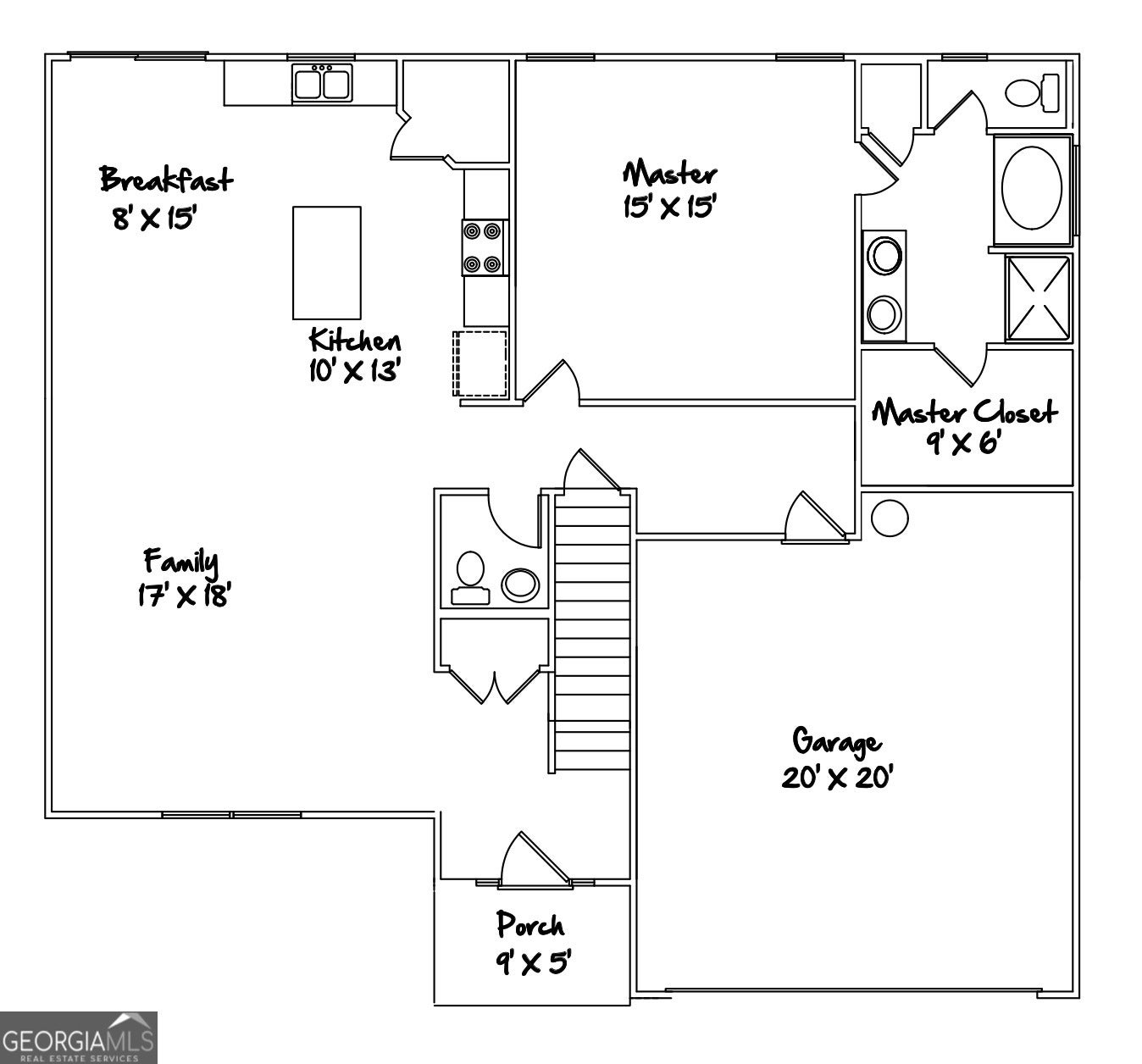
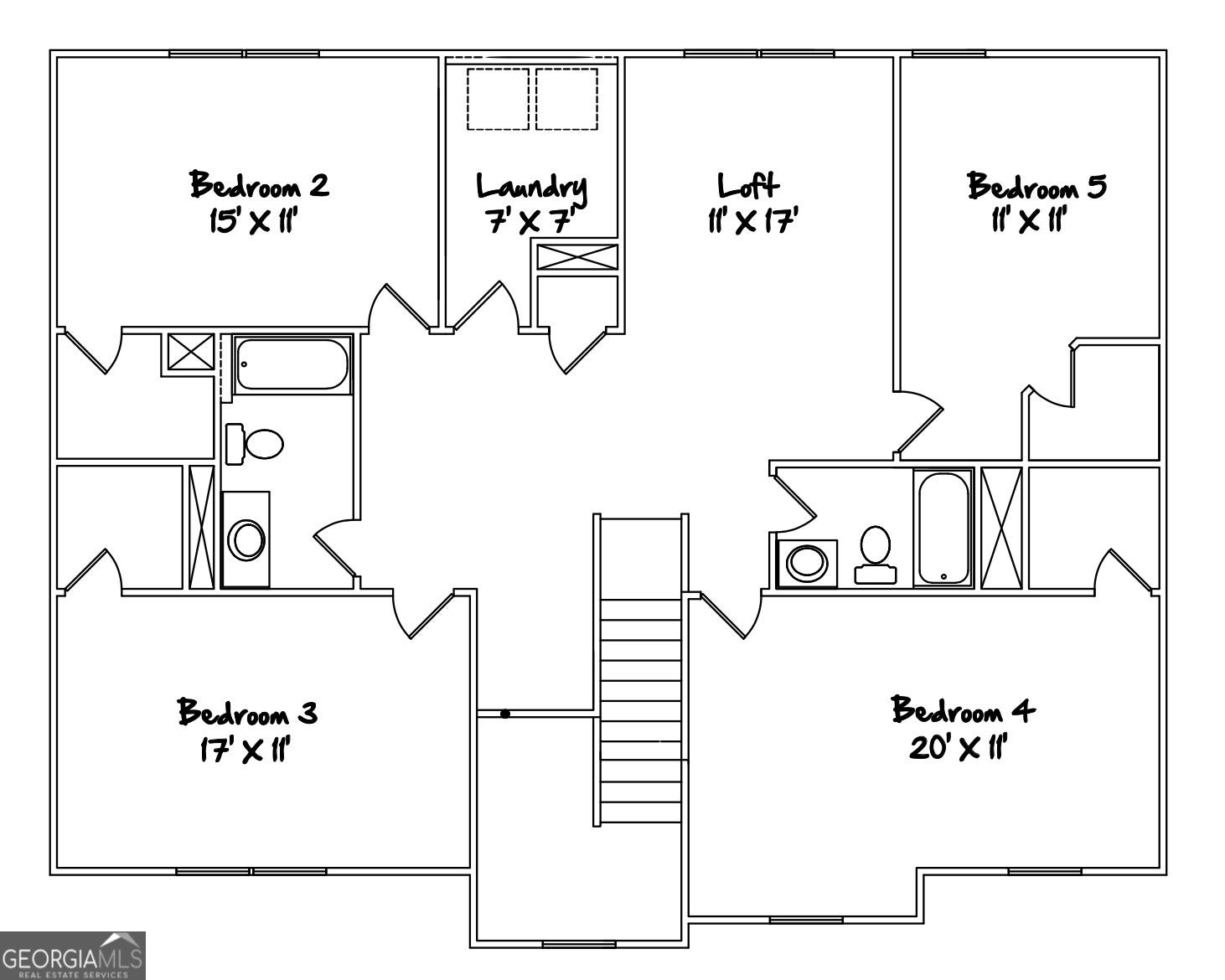
Builder is currently offering a $10,000 incentive! (Some restrictions apply). The Waycross boasts an open floor plan, providing the perfect space for all your gatherings. With 2,141 square feet of thoughtfully designed living space, this home features 3 bedrooms, 2 bathrooms, and a convenient 2-car garage. The owner's suite and two spare bedrooms are located on the main floor, making it ideal for easy living. The owner's suite includes a spacious walk-in closet and a separate water closet, complemented by a luxurious bathtub and shower. An upstairs bonus room adds flexibility, making this home plan both practical and versatile. Kitchen features stainless steel under mount sink with granite countertops. Stainless steel Whirlpool brand appliances include free standing electric range, matching 1000W microwave, and EnergyStar dishwasher. Flooring is luxury vinyl tile in living areas, bathrooms, and laundry with carpet in bedrooms and loft. Vyve cable internet available with underground utilities. This home is a pre-construction opportunity. You can select your lot and your colors!
Essential Information
- MLS® #10349779
- Price$301,900
- Bedrooms4
- Bathrooms3.00
- Full Baths2
- Half Baths1
- Square Footage2,141
- Acres0.20
- Year Built2025
- TypeResidential
- Sub-TypeSingle Family Residence
- StyleTraditional
- StatusActive
Amenities
- UtilitiesCable Available, Electricity Available, High Speed Internet
- ParkingAttached, Garage
Exterior
- Lot DescriptionLevel
- RoofComposition
- ConstructionVinyl Siding
- FoundationSlab
Additional Information
- Days on Market465
Community Information
- AddressPeach Lane
- SubdivisionOrchard Estates
- CityEdgefield
- CountySc Counties
- StateSC
- Zip Code29824
Interior
- Interior FeaturesMaster On Main Level, Pulldown Attic Stairs, Walk-In Closet(s)
- AppliancesDishwasher, Electric Water Heater, Microwave, Oven/Range (Combo)
- HeatingCentral
- CoolingCentral Air
- StoriesOne
School Information
- ElementaryOther
- MiddleOther
- HighOther
Listing Details
- Listing Provided Courtesy Of Weichert, Realtors-pendarvis
Price Change History for Peach Lane, Edgefield, SC (MLS® #10349779)
| Date | Details | Price | Change |
|---|---|---|---|
| Active | – | – | |
| Price Change | – | – | |
| Price Reduced | $301,900 | $20,100 (6.24%) | |
| Active | – | – | |
| Price Change | – | – | |
| Show More (14) | |||
| Price Increased | $322,000 | $1,000 (0.31%) | |
| Active | – | – | |
| Price Change | – | – | |
| Price Increased | $321,000 | $2,000 (0.63%) | |
| Active | – | – | |
| Price Change | – | – | |
| Price Increased | $319,000 | $2,000 (0.63%) | |
| Active | – | – | |
| Price Change | – | – | |
| Price Reduced | $317,000 | $10,000 (3.06%) | |
| Active | – | – | |
| Price Change | – | – | |
| Price Reduced (from $332,000) | $327,000 | $5,000 (1.51%) | |
| Active (from New) | – | – | |
The data relating to real estate for sale on this web site comes in part from the Broker Reciprocity Program of Georgia MLS. Real estate listings held by brokerage firms other than Go Realty Of Georgia & Alabam are marked with the Broker Reciprocity logo and detailed information about them includes the name of the listing brokers.
The information being provided is for consumers' personal, non-commercial use and may not be used for any purpose other than to identify prospective properties consumers may be interested in purchasing. Information Deemed Reliable But Not Guaranteed.
The broker providing this data believes it to be correct, but advises interested parties to confirm them before relying on them in a purchase decision.
Copyright 2025 Georgia MLS. All rights reserved.
Listing information last updated on December 20th, 2025 at 9:30pm CST.













