Hi There! Is this Your First Time?
Did you know if you Register you have access to free search tools including the ability to save listings and property searches? Did you know that you can bypass the search altogether and have listings sent directly to your email address? Check out our how-to page for more info.
- Price$375,000
- Acres0.03
- Built2024
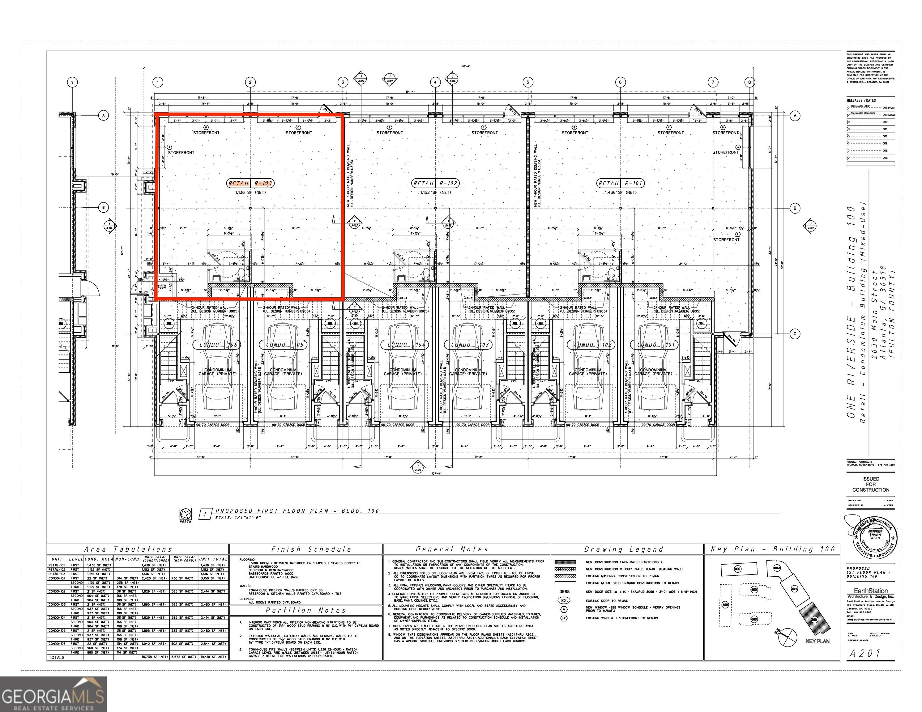
2030 Main Street Nw R113, Atlanta
Retail Space for sale. Become a part of the walkable Riverside streetscape featuring a mix of professional, services, and retail, including Frazie's Meat and Market. Own your storefront in a commercial condo ground floor unit at One Riverside West. 1,136 SF commercial condo is an end unit next to parking lot walkway, plus street parking directly in front. Brand new construction, mixed use building. Separate residential condos above with rear access. This totally separate street level, ground floor retail or office space is available for purchase. The One Riverside complex is at the corner of Main Street and Hollywood Road. Our building 100 is around the corner, facing Hollywood. Unit 113 is the space farthest to the right when facing the building 100 from Hollywood. Own your retail space or invest and be a landlord.
Essential Information
- MLS® #10414294
- Price$375,000
- Bathrooms0.00
- Acres0.03
- Year Built2024
- TypeCommercial Sale
- StatusActive
Amenities
- UtilitiesElectricity Available, Natural Gas Available, Phone Available, Sewer Available, Underground Utilities
- Parking Spaces6
- ParkingOn Street, Parking Lot
Exterior
- Lot DescriptionLevel, Corner Lot
- RoofOther
- ConstructionBrick
Listing Details
- Listing Provided Courtesy Of Keller Williams Realty Buckhead
Community Information
- Address2030 Main Street Nw R113
- SubdivisionNONE
- CityAtlanta
- CountyFulton
- StateGA
- Zip Code30318
Interior
- HeatingNone
- CoolingNone
Additional Information
- Days on Market335
- ZoningMRC-2
Price Change History for 2030 Main Street Nw R113, Atlanta, GA (MLS® #10414294)
| Date | Details | Price | Change |
|---|---|---|---|
| Active | – | – | |
| Price Change | – | – | |
| Price Reduced | $375,000 | $15,000 (3.85%) | |
| Active | – | – | |
| Price Change | – | – | |
| Show More (7) | |||
| Price Reduced | $390,000 | $20,000 (4.88%) | |
| Active | – | – | |
| Back On Market | – | – | |
| Active | – | – | |
| Price Change | – | – | |
| Price Increased (from $380,000) | $410,000 | $30,000 (7.89%) | |
| Under Contract (from New) | – | – | |
The data relating to real estate for sale on this web site comes in part from the Broker Reciprocity Program of Georgia MLS. Real estate listings held by brokerage firms other than Go Realty Of Georgia & Alabam are marked with the Broker Reciprocity logo and detailed information about them includes the name of the listing brokers.
The information being provided is for consumers' personal, non-commercial use and may not be used for any purpose other than to identify prospective properties consumers may be interested in purchasing. Information Deemed Reliable But Not Guaranteed.
The broker providing this data believes it to be correct, but advises interested parties to confirm them before relying on them in a purchase decision.
Copyright 2025 Georgia MLS. All rights reserved.
Listing information last updated on December 6th, 2025 at 3:32pm CST.
















