Hi There! Is this Your First Time?
Did you know if you Register you have access to free search tools including the ability to save listings and property searches? Did you know that you can bypass the search altogether and have listings sent directly to your email address? Check out our how-to page for more info.
- Price$1,500,000
- Acres1.00
- Built1966
1793 Johnson Road, Cumming
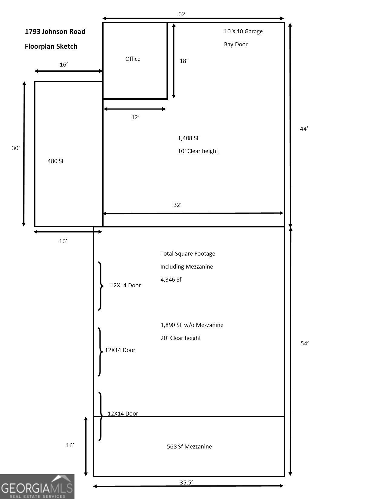
CBD Zoned Property located minutes of downtown Cumming at the corner of Johnson Road and Chamblee Gap Road. This amazing property has a 4,346+/-sf Warehouse on a 1+/- acre parcel 102-007. The warehouse has 1 roll up overhead door on the upper level with warehouse space and office space. The lower level consists of additional warehouse space and mezzanine for storage. The 3 Overhead Doors located on the lower-level measure 12'W X 14'H and give you easy to access the interior of the building. The entire shop is clear span building. The building also has additional covered storage on the side as well as heated and cooled office space at the front. The entire building has block walls with a thick slap on the lower level to support heavy loads. This building has a large gravel lot that is large enough to accommodate easy ingress and egress. This is a one-of-a-kind property with a fantastic location and ideal space for a small business. This property is currently leased and will be sold with tenant in place.
Essential Information
- MLS® #10417745
- Price$1,500,000
- Bathrooms0.00
- Acres1.00
- Year Built1966
- TypeCommercial Sale
- StatusActive
Amenities
- UtilitiesElectricity Available, Water Available, Cable Available, Natural Gas Available
- Parking Spaces30
- ParkingParking Lot
Exterior
- Lot DescriptionCorner Lot, Level, Semi Turning Available
- RoofMetal
- ConstructionBlock
Listing Details
- Listing Provided Courtesy Of Keller Williams Community Partners
Community Information
- Address1793 Johnson Road
- SubdivisionNONE
- CityCumming
- CountyForsyth
- StateGA
- Zip Code30040
Interior
- HeatingForced Air, Propane
- CoolingNone
Additional Information
- Days on Market499
- ZoningCBD
Price Change History for 1793 Johnson Road, Cumming, GA (MLS® #10417745)
| Date | Details | Price | Change |
|---|---|---|---|
| Active | – | – | |
| Price Change | – | – | |
| Price Increased | $1,500,000 | $400,000 (36.36%) | |
| Active | – | – | |
| Price Change | – | – | |
| Show More (5) | |||
| Price Reduced | $1,100,000 | $100,000 (8.33%) | |
| Active | – | – | |
| Price Change | – | – | |
| Price Reduced (from $1,300,000) | $1,200,000 | $100,000 (7.69%) | |
| Active (from New) | – | – | |
The data relating to real estate for sale on this web site comes in part from the Broker Reciprocity Program of Georgia MLS. Real estate listings held by brokerage firms other than Go Realty Of Georgia & Alabam are marked with the Broker Reciprocity logo and detailed information about them includes the name of the listing brokers.
The information being provided is for consumers' personal, non-commercial use and may not be used for any purpose other than to identify prospective properties consumers may be interested in purchasing. Information Deemed Reliable But Not Guaranteed.
The broker providing this data believes it to be correct, but advises interested parties to confirm them before relying on them in a purchase decision.
Copyright 2026 Georgia MLS. All rights reserved.
Listing information last updated on April 10th, 2026 at 5:31pm CDT.



















