Hi There! Is this Your First Time?
Did you know if you Register you have access to free search tools including the ability to save listings and property searches? Did you know that you can bypass the search altogether and have listings sent directly to your email address? Check out our how-to page for more info.
- Price$325,000
- Acres0.58
- Built1930
66 W Coffee Street, Hazlehurst
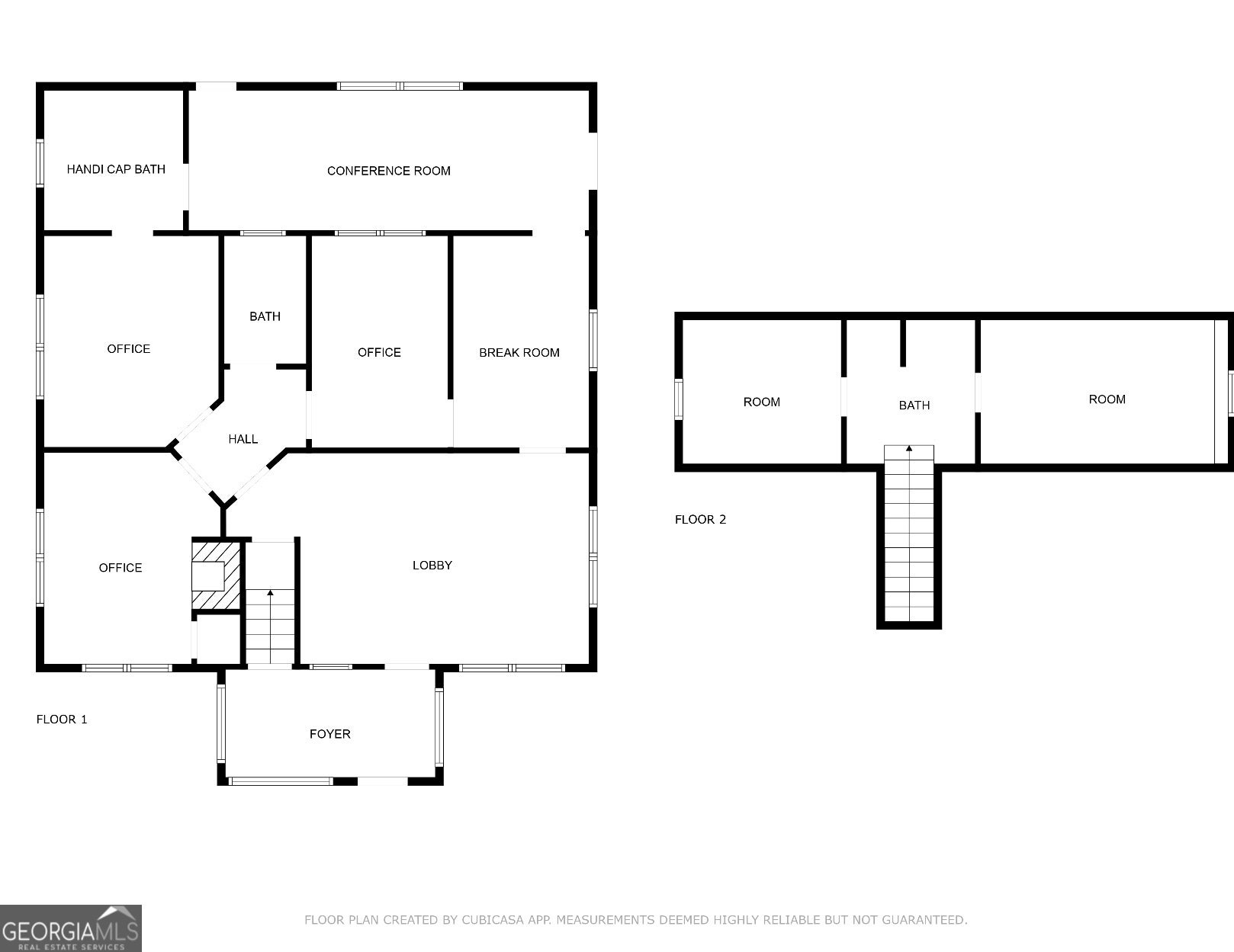
This commercial listing is located in a prime area on US 341. The listing offers a nice fenced in lot consisting of .58 acres. The newly renovated office space consists of 3 offices, break room, lobby area, a full bath and a handicap bath. BONUS... upstairs has 2 rooms and a bath. This could be used as living quarters upstairs while having a business downstairs. A handicap ramp hasn't been installed; however, it is part of the plan for this office. A few items are still unfinished, but should soon be completed. There is ample space for parking in the back area. Partial owner financing is an option.
Essential Information
- MLS® #10439456
- Price$325,000
- Bathrooms0.00
- Acres0.58
- Year Built1930
- TypeCommercial Sale
- StatusActive
Amenities
- UtilitiesCable Available, Electricity Available, High Speed Internet, Phone Available, Sewer Available, Water Available
- ParkingParking Lot
Exterior
- Lot DescriptionCity Lot, Level
- RoofMetal
- ConstructionVinyl Siding
Listing Details
- Listing Provided Courtesy Of Bateman Realty
Community Information
- Address66 W Coffee Street
- Subdivisionnone
- CityHazlehurst
- CountyJeff Davis
- StateGA
- Zip Code31539
Interior
- HeatingCentral
- CoolingCentral Air
Additional Information
- Days on Market357
- ZoningC-3
Price Change History for 66 W Coffee Street, Hazlehurst, GA (MLS® #10439456)
| Date | Details | Price | Change |
|---|---|---|---|
| Active | – | – | |
| Price Change | – | – | |
| Price Increased | $325,000 | $25,001 (8.33%) | |
| Active | – | – | |
| Price Change | – | – | |
| Show More (10) | |||
| Price Reduced | $299,999 | $25,001 (7.69%) | |
| Active | – | – | |
| Price Change | – | – | |
| Price Reduced | $325,000 | $50,000 (13.33%) | |
| Active | – | – | |
| Back On Market | – | – | |
| Active | – | – | |
| Price Change | – | – | |
| Price Reduced (from $395,000) | $375,000 | $20,000 (5.06%) | |
| Active (from New) | – | – | |
The data relating to real estate for sale on this web site comes in part from the Broker Reciprocity Program of Georgia MLS. Real estate listings held by brokerage firms other than Go Realty Of Georgia & Alabam are marked with the Broker Reciprocity logo and detailed information about them includes the name of the listing brokers.
The information being provided is for consumers' personal, non-commercial use and may not be used for any purpose other than to identify prospective properties consumers may be interested in purchasing. Information Deemed Reliable But Not Guaranteed.
The broker providing this data believes it to be correct, but advises interested parties to confirm them before relying on them in a purchase decision.
Copyright 2026 Georgia MLS. All rights reserved.
Listing information last updated on April 7th, 2026 at 6:30am CDT.









