Hi There! Is this Your First Time?
Did you know if you Register you have access to free search tools including the ability to save listings and property searches? Did you know that you can bypass the search altogether and have listings sent directly to your email address? Check out our how-to page for more info.
- Price$17,980
- Acres4.51
- Built2025
Bledsoe Road, Newnan
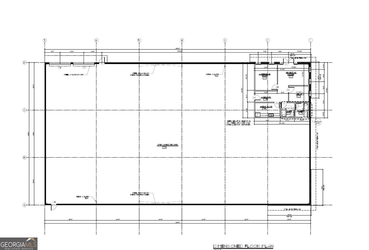
New Construction -Available for Pre-Lease - Shenandoah Industrial Park Prime 11,999 SF (+/-) warehouse in Shenandoah Industrial Park, zoned Heavy Industrial. Conveniently located just 1 mile from I-85, this versatile space is ideal for various business needs. Property Highlights: Single-tenant building (1 tenant only) Dock can be added if leased early enough Situated on 4.5 acres (+/-) with 1/2 acre (+/-) of dedicated parking Two roll-up doors and office spaces Fully fenced site with outdoor lighting for security Available by the end of Q2 2025. Secure your space now! For more details or to schedule a site visit
Essential Information
- MLS® #10456925
- Price$17,980
- Bathrooms0.00
- Acres4.51
- Year Built2025
- TypeCommercial Lease
- StatusActive
Amenities
- UtilitiesCable Available, Electricity Available, High Speed Internet, Underground Utilities, Water Available, Natural Gas Available, Sewer Available
- ParkingParking Lot
Exterior
- Lot DescriptionIndustrial Park
- ConstructionSteel Siding
Listing Details
- Listing Provided Courtesy Of Josey Young & Brady Realty
- Office Infolschlumper@jybrealty.com
Community Information
- AddressBledsoe Road
- SubdivisionShenandoah Industrial Park
- CityNewnan
- CountyCoweta
- StateGA
- Zip Code30265
Interior
- HeatingElectric
- CoolingCentral Air
Additional Information
- Days on Market172
- ZoningM Heavy Industrial
Price Change History for Bledsoe Road, Newnan, GA (MLS® #10456925)
| Date | Details | Price | Change |
|---|---|---|---|
| Active | – | – | |
| Price Change (from New) | – | – | |
| Price Reduced (from $1,799,800) | $17,980 | $1,781,820 (99.00%) |
The data relating to real estate for sale on this web site comes in part from the Broker Reciprocity Program of Georgia MLS. Real estate listings held by brokerage firms other than Go Realty Of Georgia & Alabam are marked with the Broker Reciprocity logo and detailed information about them includes the name of the listing brokers.
The information being provided is for consumers' personal, non-commercial use and may not be used for any purpose other than to identify prospective properties consumers may be interested in purchasing. Information Deemed Reliable But Not Guaranteed.
The broker providing this data believes it to be correct, but advises interested parties to confirm them before relying on them in a purchase decision.
Copyright 2025 Georgia MLS. All rights reserved.
Listing information last updated on November 6th, 2025 at 3:45am CST.


