Hi There! Is this Your First Time?
Did you know if you Register you have access to free search tools including the ability to save listings and property searches? Did you know that you can bypass the search altogether and have listings sent directly to your email address? Check out our how-to page for more info.
- Price$500,000
- Beds4
- Baths4
- SQ. Feet3,297
- Acres0.29
- Built2023
175 Osier Drive, McDonough
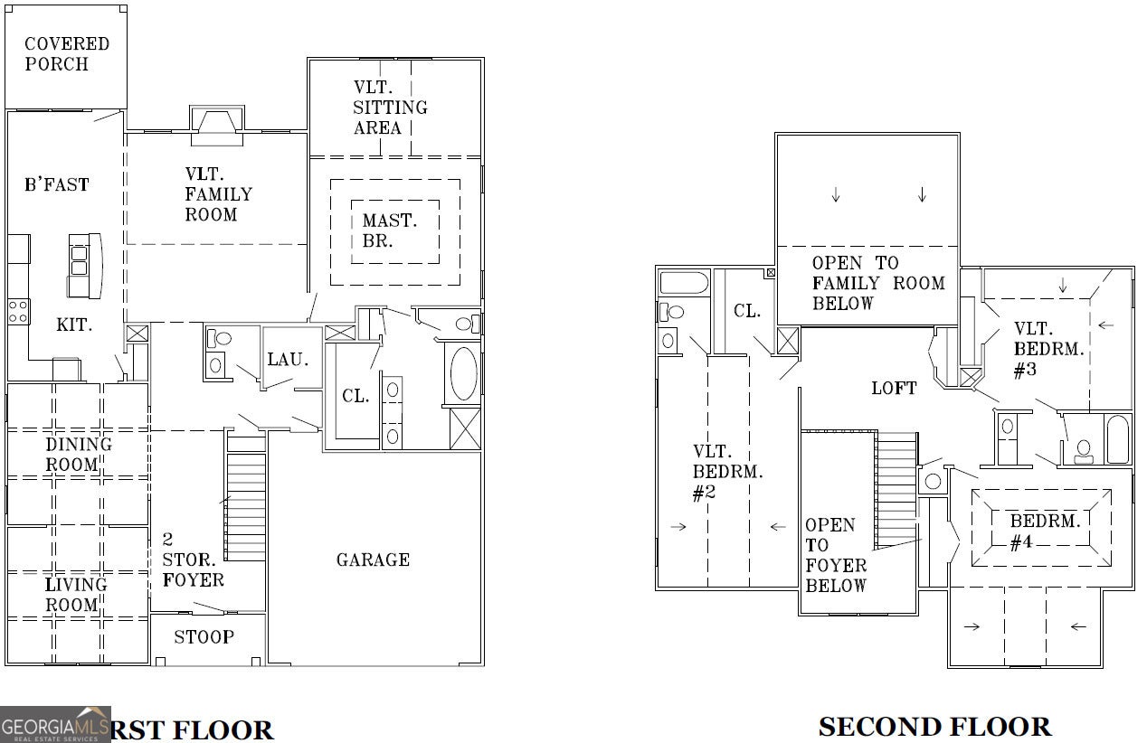
$20,000 PRICE REDUCTION.... Outstanding "Master on the Main" Design. MODEL HOME (The furniture will be removed by September)... 4 Bedrooms, Loft & 3.5 Baths. Formal Living Room w/Coffered Ceiling. Formal Dining Room w/Shadowbox Trim, Hardwood & Coffered Ceiling. Family Room w/Vaulted Ceiling, Hardwood Flooring & Stone Fireplace w/Gas Starter. Open Kitchen w/Stainless Appliances (Double Oven, Gas Cooktop, Side by Side Refrigerator, Microwave & Dishwasher), 42" Stained Cabinets, Granite Countertops, Tile Backsplash, Island w/Breakfast Bar, Hardwood, Pantry & Sunny Breakfast Area. Spacious Master Suite w/Trey Ceiling & Sitting Area w/Vaulted Ceiling on Main Level. Luxurious Master Bath w/Garden Tub, Tile Shower, "Raised Cabinet" Double Vanity, Granite Countertops, Tile Flooring & Walk-In Closet. Inviting 2 Story Foyer w/Hardwood. Multi-Use Loft overlooks Foyer & Family Room. Exceptional 2nd Floor Bedrooms: Bedroom #2 is an Oversized Private Guest, Teen or 2nd Master Suite w/Vaulted Ceiling, Full Bath & Walk-In Closet. Bedroom #4 w/Trey Ceiling & Sitting Area w/Vaulted Ceiling shares a Jack & Jill Bath with Bedroom #3. Covered Front Portico, Covered Backyard Patio & Lawn Sprinkler System. Brick Front w/Board & Batten Accents, 3 Sides Brick Water Table & Concrete Core Siding. 2 Car Garage w/16' Carriage Style Door & Remotes. White 2" Faux Wood "Cordless" Blinds Installed. Note: The Source of Square Footage is from the Builder's Floorplans and are Approximate. This Home is New Construction. There are a few items to be "Touched-Up" (paint, etc.) prior to 1st Walk/Orientation between Purchaser & Builder's Representative. 2-10 Warranty & 12 Month Builder's Warranty Included....
Essential Information
- MLS® #10459566
- Price$500,000
- Bedrooms4
- Bathrooms4.00
- Full Baths3
- Half Baths1
- Square Footage3,297
- Acres0.29
- Year Built2023
- TypeResidential
- Sub-TypeSingle Family Residence
- StyleBrick/Frame, Craftsman
- StatusUnder Contract
Amenities
- UtilitiesCable Available, Electricity Available, Natural Gas Available, Phone Available, Water Available, High Speed Internet, Sewer Connected, Underground Utilities
- Parking Spaces2
- ParkingGarage, Kitchen Level, Attached
Exterior
- Exterior FeaturesOther, Sprinkler System
- Lot DescriptionNone
- WindowsDouble Pane Windows
- RoofComposition
- ConstructionOther, Brick
- FoundationSlab
Additional Information
- Days on Market348
Community Information
- Address175 Osier Drive
- SubdivisionThe Registry
- CityMcDonough
- CountyHenry
- StateGA
- Zip Code30252
Interior
- Interior FeaturesMaster On Main Level, Walk-In Closet(s), High Ceilings, Pulldown Attic Stairs, Double Vanity, Beamed Ceilings, Two Story Foyer, Soaking Tub, Other, Tile Bath, Tray Ceiling(s), Vaulted Ceiling(s)
- AppliancesDishwasher, Stainless Steel Appliance(s), Double Oven, Disposal, Refrigerator, Gas Water Heater, Ice Maker, Microwave, Cooktop, Oven (Wall)
- HeatingCentral, Dual, Natural Gas
- CoolingCeiling Fan(s), Central Air, Dual, Electric
- FireplaceYes
- # of Fireplaces1
- FireplacesFamily Room, Factory Built, Gas Starter, Masonry
- StoriesTwo
School Information
- ElementaryEast Lake
- MiddleUnion Grove
- HighUnion Grove
Listing Details
- Listing Provided Courtesy Of Residential Brokers Inc.
Price Change History for 175 Osier Drive, McDonough, GA (MLS® #10459566)
| Date | Details | Price | Change |
|---|---|---|---|
| Under Contract | – | – | |
| Pending Offer Approval | – | – | |
| Active | – | – | |
| Back On Market | – | – | |
| Active | – | – | |
| Show More (15) | |||
| Back On Market | – | – | |
| Pending Offer Approval | – | – | |
| Active | – | – | |
| Back On Market | – | – | |
| Active | – | – | |
| Back On Market | – | – | |
| Active | – | – | |
| Back On Market | – | – | |
| Active | – | – | |
| Price Change | – | – | |
| Price Reduced | $500,000 | $20,000 (3.85%) | |
| Active | – | – | |
| Price Change | – | – | |
| Price Reduced (from $529,990) | $520,000 | $9,990 (1.88%) | |
| Active (from New) | – | – | |
The data relating to real estate for sale on this web site comes in part from the Broker Reciprocity Program of Georgia MLS. Real estate listings held by brokerage firms other than Go Realty Of Georgia & Alabam are marked with the Broker Reciprocity logo and detailed information about them includes the name of the listing brokers.
The information being provided is for consumers' personal, non-commercial use and may not be used for any purpose other than to identify prospective properties consumers may be interested in purchasing. Information Deemed Reliable But Not Guaranteed.
The broker providing this data believes it to be correct, but advises interested parties to confirm them before relying on them in a purchase decision.
Copyright 2026 Georgia MLS. All rights reserved.
Listing information last updated on March 31st, 2026 at 12:47pm CDT.



















