Hi There! Is this Your First Time?
Did you know if you Register you have access to free search tools including the ability to save listings and property searches? Did you know that you can bypass the search altogether and have listings sent directly to your email address? Check out our how-to page for more info.
- Price$440,000
- Beds4
- Baths2
- SQ. Feet1,552
- Acres0.34
- Built1979
746 Polk Street Nw, Marietta
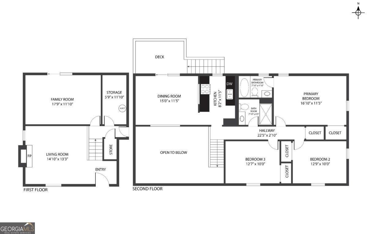
Spacious & Updated Split-Level Near Marietta Square! Lovingly maintained home with brand-new driveway (fits 4 cars), fresh sod, and oversized 2-car garage with storage. Inside, a vaulted living room features a striking floor-to-ceiling stone fireplace. Upstairs, enjoy a bright dining room with deck access and a pass-through bar to the updated kitchen-complete with new stainless appliances, tile backsplash, and white cabinetry. Primary suite includes walk-in closet and en-suite bath; two secondary bedrooms share an updated hall bath. A versatile lower-level room makes a great guest suite, office, or playroom, with a nearby full laundry room. Outdoor living shines with an upstairs deck, covered patio, and fully fenced backyard backing to mature trees for privacy. Recent upgrades: new carpet, double filtration system. Conveniently located minutes from Marietta Square, parks, and shopping-this home blends comfort, style, and space. Don't miss it!
Essential Information
- MLS® #10492459
- Price$440,000
- Bedrooms4
- Bathrooms2.00
- Full Baths2
- Square Footage1,552
- Acres0.34
- Year Built1979
- TypeResidential
- Sub-TypeSingle Family Residence
- StyleTraditional
- StatusActive
Amenities
- UtilitiesElectricity Available, Phone Available, Water Available, Sewer Available
- ParkingGarage, Garage Door Opener
Exterior
- Lot DescriptionPrivate
- WindowsDouble Pane Windows
- RoofComposition
- ConstructionVinyl Siding
- FoundationBlock
Additional Information
- Days on Market147
Community Information
- Address746 Polk Street Nw
- SubdivisionKennesaw Highlands
- CityMarietta
- CountyCobb
- StateGA
- Zip Code30064
Interior
- Interior FeaturesMaster On Main Level
- AppliancesDishwasher, Disposal, Gas Water Heater
- HeatingFloor Furnace
- CoolingCentral Air, Ceiling Fan(s), Attic Fan
- FireplaceYes
- # of Fireplaces1
- FireplacesGas Starter, Factory Built, Living Room
- StoriesOne and One Half
School Information
- ElementaryWest Side
- MiddleMarietta
- HighMarietta
Listing Details
- Listing Provided Courtesy Of Redfin Corporation
Price Change History for 746 Polk Street Nw, Marietta, GA (MLS® #10492459)
| Date | Details | Price | Change |
|---|---|---|---|
| Active | – | – | |
| Price Change | – | – | |
| Price Reduced | $440,000 | $10,000 (2.22%) | |
| Active | – | – | |
| Price Change | – | – | |
| Show More (5) | |||
| Price Reduced | $450,000 | $10,000 (2.17%) | |
| Active | – | – | |
| Price Change | – | – | |
| Price Reduced (from $475,000) | $460,000 | $15,000 (3.16%) | |
| Active (from New) | – | – | |
The data relating to real estate for sale on this web site comes in part from the Broker Reciprocity Program of Georgia MLS. Real estate listings held by brokerage firms other than Go Realty Of Georgia & Alabam are marked with the Broker Reciprocity logo and detailed information about them includes the name of the listing brokers.
The information being provided is for consumers' personal, non-commercial use and may not be used for any purpose other than to identify prospective properties consumers may be interested in purchasing. Information Deemed Reliable But Not Guaranteed.
The broker providing this data believes it to be correct, but advises interested parties to confirm them before relying on them in a purchase decision.
Copyright 2025 Georgia MLS. All rights reserved.
Listing information last updated on November 1st, 2025 at 1:32pm CDT.






























