Hi There! Is this Your First Time?
Did you know if you Register you have access to free search tools including the ability to save listings and property searches? Did you know that you can bypass the search altogether and have listings sent directly to your email address? Check out our how-to page for more info.
- Price$1,200,000
- Acres4.92
- Built1965
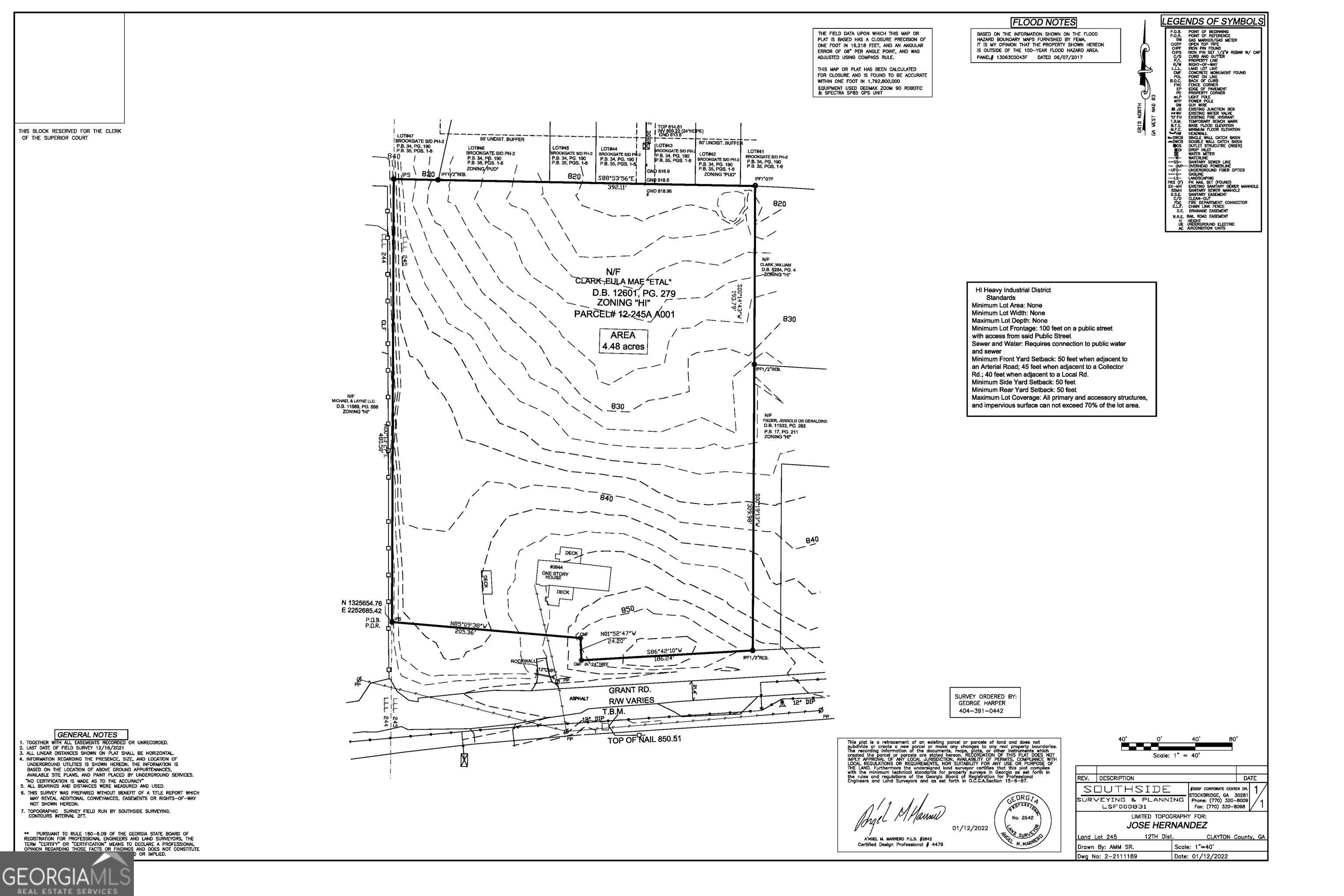
3644 Grant Road, Ellenwood
Prime Heavy Industrial Opportunity - 4.48 Acres on Grant Road This 4.48-acre parcel offers a strategic location with 393 feet of frontage on Grant Road, just 1.2 miles from I-675 (Anvil Block Road exit) and 2.8 miles from I-285 (Moreland Avenue exit). Situated in unincorporated Clayton County, the property is zoned Heavy Industrial, making it ideal for a wide range of industrial uses. The rectangular lot features a wooded landscape and a gentle rear slope, providing a natural option for stormwater detention.
Essential Information
- MLS® #10499112
- Price$1,200,000
- Bathrooms0.00
- Acres4.92
- Year Built1965
- TypeCommercial Sale
- StatusActive
Amenities
- UtilitiesOther
- Parking Spaces10
- ParkingOther
Exterior
- Lot DescriptionBusiness Park, Industrial Park
- RoofOther
- ConstructionOther
Listing Details
- Listing Provided Courtesy Of Keller Williams Realty Atl. Partners
- Office Info770-710-1049
Community Information
- Address3644 Grant Road
- SubdivisionIndustrial
- CityEllenwood
- CountyClayton
- StateGA
- Zip Code30294
Interior
- HeatingOther
- CoolingOther
Additional Information
- Days on Market210
- ZoningHI
Price Change History for 3644 Grant Road, Ellenwood, GA (MLS® #10499112)
| Date | Details | Price | Change |
|---|---|---|---|
| Active | – | – | |
| Price Change | – | – | |
| Price Reduced (from $1,350,000) | $1,200,000 | $150,000 (11.11%) | |
| Active (from New) | – | – |
The data relating to real estate for sale on this web site comes in part from the Broker Reciprocity Program of Georgia MLS. Real estate listings held by brokerage firms other than Go Realty Of Georgia & Alabam are marked with the Broker Reciprocity logo and detailed information about them includes the name of the listing brokers.
The information being provided is for consumers' personal, non-commercial use and may not be used for any purpose other than to identify prospective properties consumers may be interested in purchasing. Information Deemed Reliable But Not Guaranteed.
The broker providing this data believes it to be correct, but advises interested parties to confirm them before relying on them in a purchase decision.
Copyright 2025 Georgia MLS. All rights reserved.
Listing information last updated on December 18th, 2025 at 2:45am CST.
















