Hi There! Is this Your First Time?
Did you know if you Register you have access to free search tools including the ability to save listings and property searches? Did you know that you can bypass the search altogether and have listings sent directly to your email address? Check out our how-to page for more info.
- Price$774,900
- Acres0.68
- Built1997
352 Enterprise Drive, Valdosta
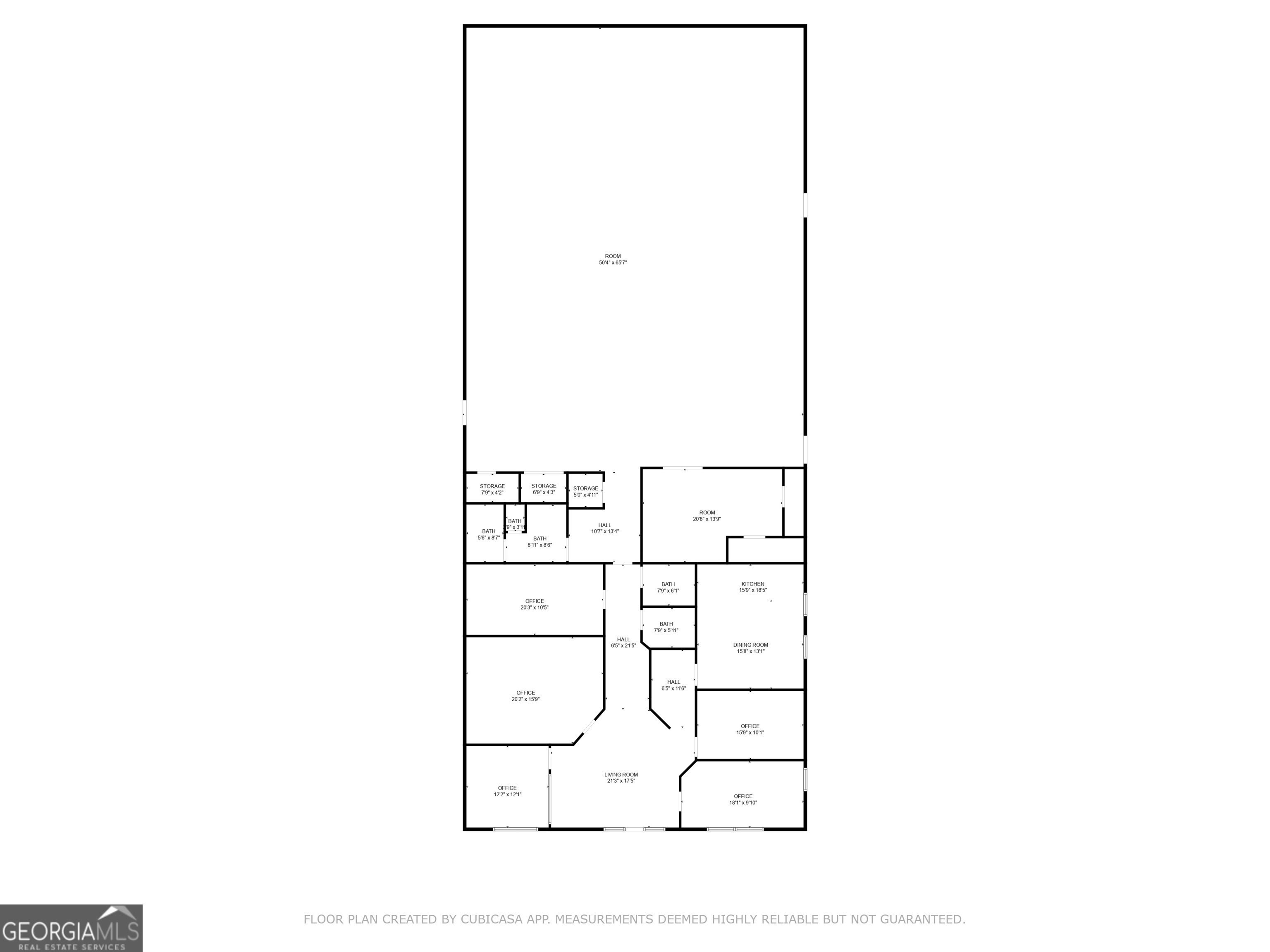
352 Enterprise Dr - Flexible Office & Warehouse Space in Valdosta, GA Positioned in one of Valdosta's most accessible commercial parks, 352 Enterprise Dr offers a versatile layout ideal for professional services, contractors, small businesses, or light industrial use. With a balanced mix of office space and climate-controlled warehouse, this property is move-in ready and designed for operational efficiency. The building features a welcoming 18x20 ft lobby, 5 private offices, a kitchen, and 3 restrooms - perfect for team functionality and client interactions. Beyond the office space, you'll find a private studio room, and an air-conditioned warehouse measuring 49x65 ft, ideal for light manufacturing, storage, or creative use. Two 10x12 ft roll-up doors allow for smooth access and logistics. Property Highlights: Total building size: 3,500 sq ft Air-conditioned warehouse (2,900 sq ft) Five private offices + private studio space Three restrooms + breakroom/kitchen Two 10x12 roll-up doors Located on 0.68 acres Commercial zoning - wide variety of potential uses Whether you're expanding your business footprint, relocating to Valdosta, or investing in a high-functioning commercial asset, 352 Enterprise Dr is a practical, well-equipped solution in a proven location.
Essential Information
- MLS® #10507807
- Price$774,900
- Bathrooms0.00
- Acres0.68
- Year Built1997
- TypeCommercial Sale
- StatusActive
Amenities
- UtilitiesCable Available, Electricity Available, High Speed Internet, Phone Available, Sewer Available, Underground Utilities, Water Available
- Parking Spaces18
- ParkingPaved
Exterior
- Lot DescriptionLevel, Interior Lot
- RoofMetal
- ConstructionAluminum Siding, Synthetic Stucco
Listing Details
- Listing Provided Courtesy Of Dove Realty
- Office Info2298346418
Community Information
- Address352 Enterprise Drive
- SubdivisionNone
- CityValdosta
- CountyLowndes
- StateGA
- Zip Code31601
Interior
- HeatingCentral
- CoolingCentral Air
Additional Information
- Days on Market197
- ZoningC-3
Price Change History for 352 Enterprise Drive, Valdosta, GA (MLS® #10507807)
| Date | Details | Price | Change |
|---|---|---|---|
| Active (from New) | – | – |
The data relating to real estate for sale on this web site comes in part from the Broker Reciprocity Program of Georgia MLS. Real estate listings held by brokerage firms other than Go Realty Of Georgia & Alabam are marked with the Broker Reciprocity logo and detailed information about them includes the name of the listing brokers.
The information being provided is for consumers' personal, non-commercial use and may not be used for any purpose other than to identify prospective properties consumers may be interested in purchasing. Information Deemed Reliable But Not Guaranteed.
The broker providing this data believes it to be correct, but advises interested parties to confirm them before relying on them in a purchase decision.
Copyright 2025 Georgia MLS. All rights reserved.
Listing information last updated on November 11th, 2025 at 12:31pm CST.








