Hi There! Is this Your First Time?
Did you know if you Register you have access to free search tools including the ability to save listings and property searches? Did you know that you can bypass the search altogether and have listings sent directly to your email address? Check out our how-to page for more info.
- Price$5,000
- Beds13
- Baths9
- SQ. Feet5,830
- Acres0.78
- Built1986
492 Pine Road, Newnan
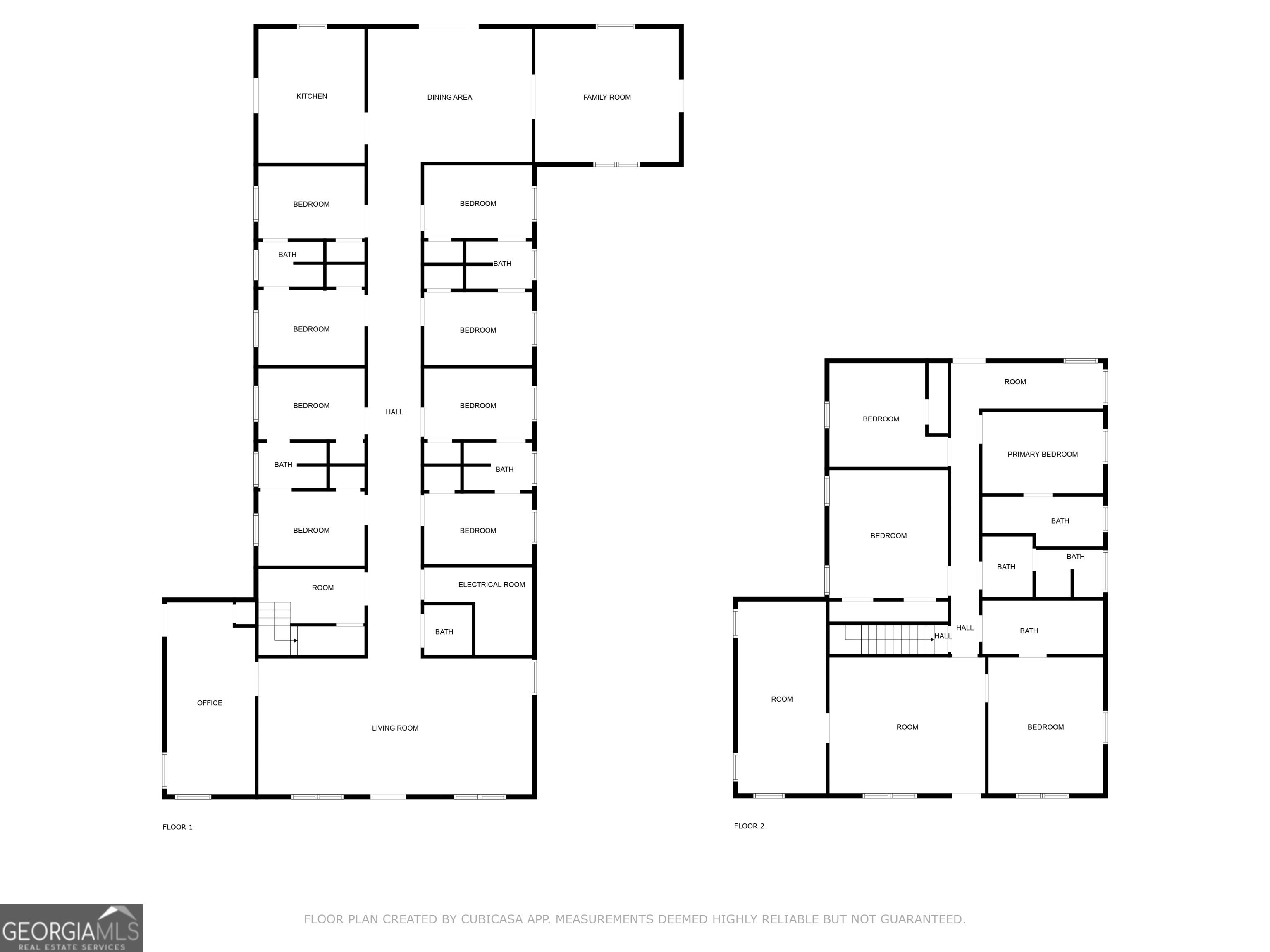
Welcome to this 13 BR, 9 Bath home! This home has space for everyone, complete with 3 living/flex spaces in total with at least one on each floor. Dinner can be made in the full kitchen, and served in the dining area. There is space outside for basketball games, and plenty of room to run and play. All of this is complete with private, passcode protected gated entry, and conveniently located just off the interstate with a prime location for travel.
Essential Information
- MLS® #10516961
- Price$5,000
- Bedrooms13
- Bathrooms9.00
- Full Baths9
- Square Footage5,830
- Acres0.78
- Year Built1986
- TypeResidential Lease
- Sub-TypeOther
- StyleTraditional
- StatusActive
Amenities
- UtilitiesElectricity Available, Water Available
- ParkingParking Pad
Exterior
- Lot DescriptionPrivate
- RoofComposition
- ConstructionPress Board
- FoundationSlab
Additional Information
- Days on Market54
Community Information
- Address492 Pine Road
- SubdivisionNONE
- CityNewnan
- CountyCoweta
- StateGA
- Zip Code30263
Interior
- Interior FeaturesRoommate Plan
- AppliancesOven (Wall), Refrigerator
- HeatingCentral
- CoolingCentral Air
- StoriesTwo
School Information
- ElementaryAtkinson
- MiddleSmokey Road
- HighNewnan
Listing Details
- Listing Provided Courtesy Of Southern Real Estate Properties
Price Change History for 492 Pine Road, Newnan, GA (MLS® #10516961)
| Date | Details | Price | Change |
|---|---|---|---|
| Active | – | – | |
| Price Change | – | – | |
| Price Increased (from $3,500) | $5,000 | $1,500 (42.86%) | |
| Active (from New) | – | – |
The data relating to real estate for sale on this web site comes in part from the Broker Reciprocity Program of Georgia MLS. Real estate listings held by brokerage firms other than Go Realty Of Georgia & Alabam are marked with the Broker Reciprocity logo and detailed information about them includes the name of the listing brokers.
The information being provided is for consumers' personal, non-commercial use and may not be used for any purpose other than to identify prospective properties consumers may be interested in purchasing. Information Deemed Reliable But Not Guaranteed.
The broker providing this data believes it to be correct, but advises interested parties to confirm them before relying on them in a purchase decision.
Copyright 2025 Georgia MLS. All rights reserved.
Listing information last updated on November 5th, 2025 at 10:16am CST.



































