Hi There! Is this Your First Time?
Did you know if you Register you have access to free search tools including the ability to save listings and property searches? Did you know that you can bypass the search altogether and have listings sent directly to your email address? Check out our how-to page for more info.
- Price$375,000
- Acres6.50
Highway 42 S, Locust Grove
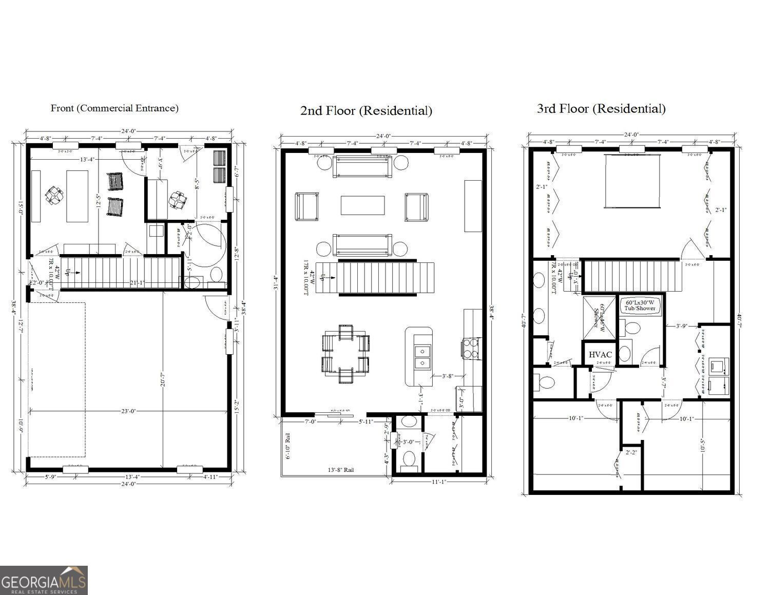
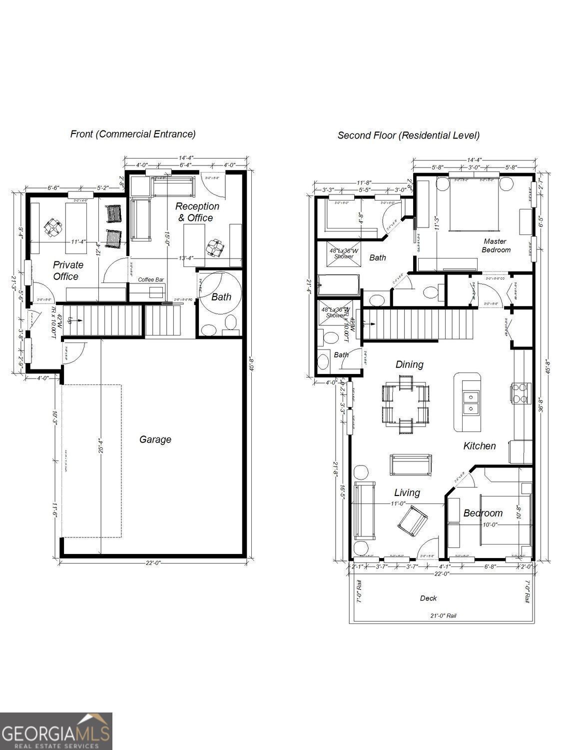
Prime Development Opportunity - 6.5 Acres - $375,000 Attention Builders and Investors! This rare opportunity offers a 6.5-acre parcel ideal for commercial development with residential lofts above. The Future Land Use Plan designates this area for Office Space (Mixed Use), making it highly likely that a Residential Loft concept would align with zoning requirements. A suggested site design has been created to illustrate the development potential of this property, incorporating shared entrances, exits, yard lighting, and multiple septic systems (see pictures for example). Preliminary soil testing suggests the land has adequate space for a conventional septic system and necessary stormwater retention areas. Additionally, the property is not within a floodplain or designated wetlands, ensuring ease of development. While this listing includes only the 6.5-acre parcel, the suggested site design also shows how acquiring the neighboring property could further enhance development opportunities. This project is envisioned as a condominium-style development, where individual buildings or groups of buildings could be sold as fee-simple units under a shared Property Owners Association (POA). Common areas, such as driveways, parking lots, septic systems, and drainage infrastructure, would be collectively managed. Additional infrastructure studies are recommended, including a full survey and hydrology report, estimated at approximately $16,000 (not included in the sale price). A centralized stormwater management system will need to be designed to ensure proper drainage. The property also features prime road frontage, providing excellent visibility and exposure for potential businesses. Final site plans will require approval from Locust Grove Planning & Zoning. Once a buyer is identified, further studies and designs can be tailored to match specific development goals. This is a unique investment opportunity in a rapidly growing area. Contact us today for more details or to schedule a site visit.
Essential Information
- MLS® #10520658
- Price$375,000
- Bathrooms0.00
- Acres6.50
- TypeLand
- Sub-TypeUnimproved Land
- StatusActive
Amenities
- UtilitiesWater Available
School Information
- ElementaryLocust Grove
- MiddleLocust Grove
- HighLocust Grove
Listing Details
- Listing Provided Courtesy Of Bhgre Metro Brokers
Community Information
- AddressHighway 42 S
- SubdivisionNone
- CityLocust Grove
- CountyHenry
- StateGA
- Zip Code30248
Exterior
- Lot DescriptionOther
Additional Information
- Days on Market292
Price Change History for Highway 42 S, Locust Grove, GA (MLS® #10520658)
| Date | Details | Price | Change |
|---|---|---|---|
| Active | – | – | |
| Back On Market | – | – | |
| Active (from New) | – | – |
The data relating to real estate for sale on this web site comes in part from the Broker Reciprocity Program of Georgia MLS. Real estate listings held by brokerage firms other than Go Realty Of Georgia & Alabam are marked with the Broker Reciprocity logo and detailed information about them includes the name of the listing brokers.
The information being provided is for consumers' personal, non-commercial use and may not be used for any purpose other than to identify prospective properties consumers may be interested in purchasing. Information Deemed Reliable But Not Guaranteed.
The broker providing this data believes it to be correct, but advises interested parties to confirm them before relying on them in a purchase decision.
Copyright 2026 Georgia MLS. All rights reserved.
Listing information last updated on April 6th, 2026 at 4:30am CDT.










