Hi There! Is this Your First Time?
Did you know if you Register you have access to free search tools including the ability to save listings and property searches? Did you know that you can bypass the search altogether and have listings sent directly to your email address? Check out our how-to page for more info.
- Price$1,999,999
- Acres2.00
- Built2024
61 Toto Creek Park Road, Dawsonville
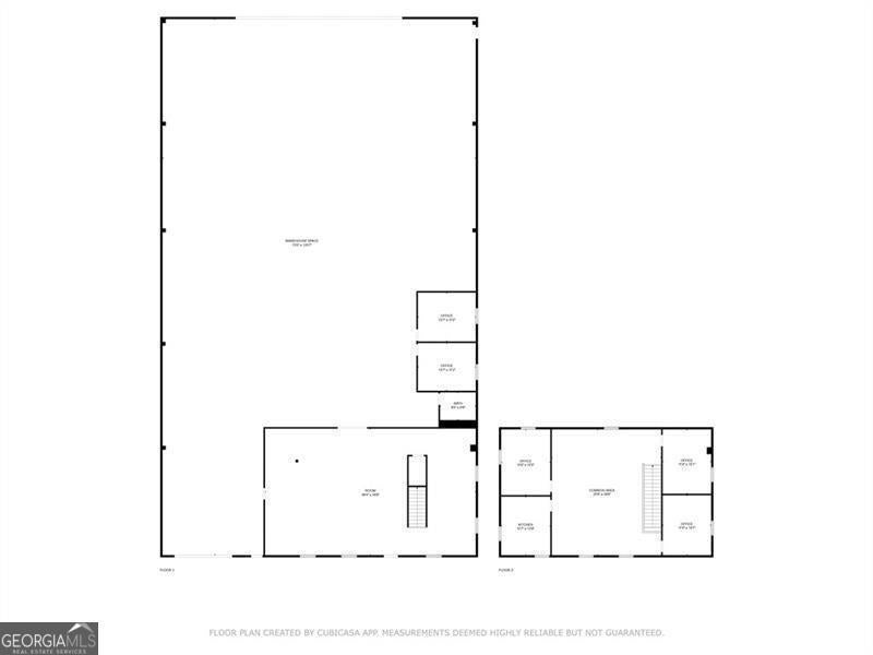
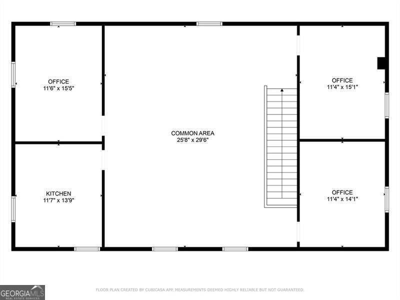
Are you looking for a perfect home for your business? This is it! Brand new 2024/2025 construction built to code! 9,970 sqft with half of the building two story with 5 offices, a break room with full kitchen, 3 admin built in desks in main room, two bull pin areas, 1 bathroom, and windows overlooking the shop! Shop includes a smaller garage door and a 40' wide X 35' tall hanger door! Central heat and air along with commercial ceiling fan in the shop! Land is 2 acres overlooking lake Lanier with a wrap around driveway that parks 40+ vehicles! Items that will be done before closing: Driveway pour, landscape plan, countertops at desks, kitchen countertops, exterior lights installation, and general punch out! Fully permitted! Power - 600 amp 277 This business is perfect for specialty, retail/bait & tackle, dock builders, building supply, indoor boat storage, boat sales, construction materials... possibilities are endless! Building is located in highest growing county in Georgia - Dawson!! a 5 minute drive to the North GA premium outlets & Resturant strip! Go fishing for your lunch break!
Essential Information
- MLS® #10531876
- Price$1,999,999
- Bathrooms0.00
- Acres2.00
- Year Built2024
- TypeCommercial Sale
- StatusActive
Amenities
- UtilitiesCable Available, Electricity Available, Natural Gas Available, Phone Available, Sewer Available, Underground Utilities, Water Available
- Parking Spaces40
- ParkingParking Lot
Exterior
- Lot DescriptionLevel, Corner Lot, Semi Turning Available
- RoofMetal
- ConstructionAluminum Siding
Listing Details
- Listing Provided Courtesy Of Century 21 Results
Community Information
- Address61 Toto Creek Park Road
- SubdivisionNONE
- CityDawsonville
- CountyDawson
- StateGA
- Zip Code30534
Interior
- HeatingCentral
- CoolingCentral Air
Additional Information
- Days on Market162
- Zoningchb
Price Change History for 61 Toto Creek Park Road, Dawsonville, GA (MLS® #10531876)
| Date | Details | Price | Change |
|---|---|---|---|
| Active (from New) | – | – |
The data relating to real estate for sale on this web site comes in part from the Broker Reciprocity Program of Georgia MLS. Real estate listings held by brokerage firms other than Go Realty Of Georgia & Alabam are marked with the Broker Reciprocity logo and detailed information about them includes the name of the listing brokers.
The information being provided is for consumers' personal, non-commercial use and may not be used for any purpose other than to identify prospective properties consumers may be interested in purchasing. Information Deemed Reliable But Not Guaranteed.
The broker providing this data believes it to be correct, but advises interested parties to confirm them before relying on them in a purchase decision.
Copyright 2025 Georgia MLS. All rights reserved.
Listing information last updated on December 20th, 2025 at 9:30pm CST.




































