Hi There! Is this Your First Time?
Did you know if you Register you have access to free search tools including the ability to save listings and property searches? Did you know that you can bypass the search altogether and have listings sent directly to your email address? Check out our how-to page for more info.
- Price$314,460
- Beds3
- Baths3
- SQ. Feet1,655
- Acres0.06
- Built2025
372 Sound Circle, Stockbridge
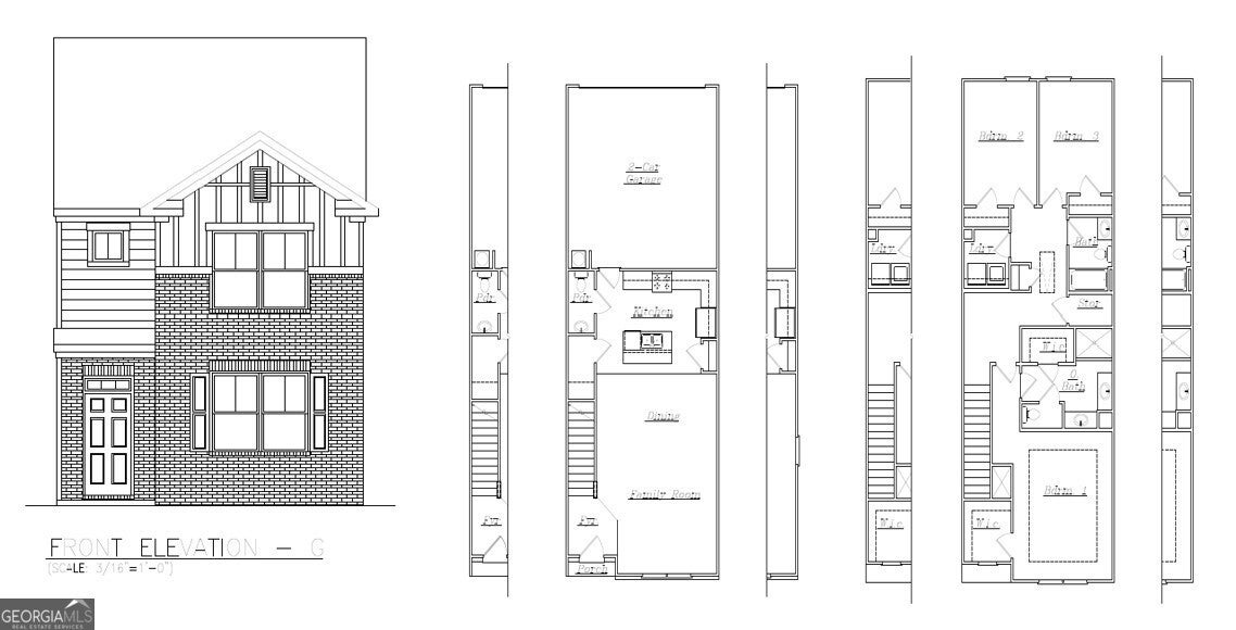
4 MINS FROM INTERSTATE 75/SHOPPING, RESTAURANTS, GREAT SCHOOLS. THIS PRISTINE COMMUNITY OFFERS INCREDIBLE INTERIOR FEATURES, INCLUDING TILED SHOWERS. Located just minutes from Piedmont Henry Hospital, ECHO GLEN Community is conveniently located to shopping and dining, as well as easy access to I-75. The ASHLEY plan is a three-bedroom townhome that features an open concept on the main level, with a spacious family room, casual dining and island kitchen so everyone can gather round. Cabinet color options is white or gray. You will never be too far from home with Home Is Connected. Your new home is built with an industry leading suite of smart home products that keep you connected with the people and place you value most. Upstairs offers a private bedroom suite with spa-like bath and the secondary bedrooms include lots of closet space. Secondary Photos used are for illustrative purposes only and do not depict actual home. Prices and Incentives are subject to change without prior notice.
Essential Information
- MLS® #10541368
- Price$314,460
- Bedrooms3
- Bathrooms3.00
- Full Baths2
- Half Baths1
- Square Footage1,655
- Acres0.06
- Year Built2025
- TypeResidential
- Sub-TypeTownhouse
- StyleCraftsman
- StatusActive
Amenities
- UtilitiesSewer Connected, Underground Utilities
- Parking Spaces2
- ParkingAttached, Garage
Exterior
- Lot DescriptionLevel
- WindowsDouble Pane Windows, Window Treatments
- RoofComposition
- ConstructionConcrete
- FoundationSlab
Additional Information
- Days on Market247
Community Information
- Address372 Sound Circle
- SubdivisionEcho Glen
- CityStockbridge
- CountyHenry
- StateGA
- Zip Code30281
Interior
- Interior FeaturesDouble Vanity, Separate Shower, Tray Ceiling(s), Walk-In Closet(s), Pulldown Attic Stairs
- AppliancesDishwasher, Disposal, Electric Water Heater, Microwave, Oven/Range (Combo), Stainless Steel Appliance(s)
- HeatingCentral, Common, Electric, Hot Water
- CoolingCentral Air, Electric
- StoriesTwo
School Information
- ElementaryPleasant Grove
- MiddleWoodland
- HighWoodland
Listing Details
- Listing Provided Courtesy Of D.r. Horton Realty Of Georgia, Inc.
- Office Info678.939.0385
Price Change History for 372 Sound Circle, Stockbridge, GA (MLS® #10541368)
| Date | Details | Price | Change |
|---|---|---|---|
| Active | – | – | |
| Price Change | – | – | |
| Price Reduced | $314,460 | $12,000 (3.68%) | |
| Active | – | – | |
| Price Change | – | – | |
| Show More (12) | |||
| Price Increased | $326,460 | $6,000 (1.87%) | |
| Active | – | – | |
| Price Change | – | – | |
| Price Reduced | $320,460 | $6,000 (1.84%) | |
| Active | – | – | |
| Price Change | – | – | |
| Price Increased | $326,460 | $14,060 (4.50%) | |
| Under Contract | – | – | |
| Active | – | – | |
| Price Change | – | – | |
| Price Increased (from $302,400) | $312,400 | $10,000 (3.31%) | |
| Active (from New) | – | – | |
The data relating to real estate for sale on this web site comes in part from the Broker Reciprocity Program of Georgia MLS. Real estate listings held by brokerage firms other than Go Realty Of Georgia & Alabam are marked with the Broker Reciprocity logo and detailed information about them includes the name of the listing brokers.
The information being provided is for consumers' personal, non-commercial use and may not be used for any purpose other than to identify prospective properties consumers may be interested in purchasing. Information Deemed Reliable But Not Guaranteed.
The broker providing this data believes it to be correct, but advises interested parties to confirm them before relying on them in a purchase decision.
Copyright 2026 Georgia MLS. All rights reserved.
Listing information last updated on March 15th, 2026 at 2:16pm CDT.




































