Hi There! Is this Your First Time?
Did you know if you Register you have access to free search tools including the ability to save listings and property searches? Did you know that you can bypass the search altogether and have listings sent directly to your email address? Check out our how-to page for more info.
- Price$198,000
- Beds3
- Baths2
- SQ. Feet1,454
- Acres0.26
- Built1955
3409 Hyland Drive, Decatur
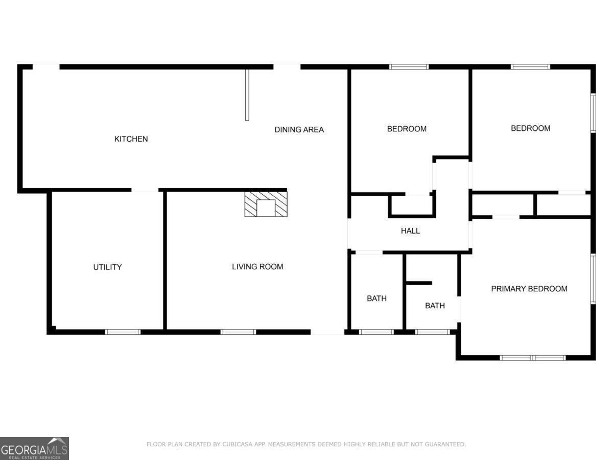
Nestled in the established Dunhill Acres neighborhood, this classic brick ranch offers comfortable one-level living with timeless appeal. The home features three bedrooms and two bathrooms, including a primary suite with its own bath. A spacious living room with a decorative fireplace opens into a dining area and eat-in kitchen, creating an inviting flow for everyday living. A bonus room adds flexibility for use as a home office, playroom, or den. Outside, enjoy a quiet, level lot with both a front porch and rear patio-ideal for relaxing or entertaining. Conveniently located in Decatur with easy access to local shops, major highways, and MARTA.
Essential Information
- MLS® #10541821
- Price$198,000
- Bedrooms3
- Bathrooms2.00
- Full Baths2
- Square Footage1,454
- Acres0.26
- Year Built1955
- TypeResidential
- Sub-TypeSingle Family Residence
- StyleRanch, Brick 4 Side
- StatusUnder Contract
Amenities
- UtilitiesCable Available, Electricity Available, Water Available, Sewer Available
- Parking Spaces1
- ParkingCarport
Exterior
- Lot DescriptionLevel
- RoofComposition
- ConstructionBrick, Other
- FoundationSlab
Additional Information
- Days on Market258
Community Information
- Address3409 Hyland Drive
- SubdivisionDunhill Acres
- CityDecatur
- CountyDeKalb
- StateGA
- Zip Code30032
Interior
- Interior FeaturesMaster On Main Level, Other
- AppliancesDisposal, Microwave, Oven/Range (Combo), Refrigerator
- HeatingNatural Gas
- CoolingCentral Air
- FireplaceYes
- # of Fireplaces1
- FireplacesLiving Room
- StoriesOne
School Information
- ElementaryOther
- MiddleOther
- HighOther
Listing Details
- Listing Provided Courtesy Of Mainstay Brokerage
Price Change History for 3409 Hyland Drive, Decatur, GA (MLS® #10541821)
| Date | Details | Price | Change |
|---|---|---|---|
| Under Contract | – | – | |
| Active | – | – | |
| Price Change | – | – | |
| Price Reduced | $198,000 | $6,000 (2.94%) | |
| Active | – | – | |
| Show More (36) | |||
| Price Change | – | – | |
| Price Reduced | $204,000 | $6,000 (2.86%) | |
| Active | – | – | |
| Price Change | – | – | |
| Price Reduced | $210,000 | $6,000 (2.78%) | |
| Active | – | – | |
| Price Change | – | – | |
| Price Reduced | $216,000 | $7,000 (3.14%) | |
| Active | – | – | |
| Price Change | – | – | |
| Price Reduced | $223,000 | $7,000 (3.04%) | |
| Active | – | – | |
| Price Change | – | – | |
| Price Reduced | $230,000 | $10,000 (4.17%) | |
| Active | – | – | |
| Price Change | – | – | |
| Price Reduced | $240,000 | $7,000 (2.83%) | |
| Active | – | – | |
| Price Change | – | – | |
| Price Reduced | $247,000 | $8,000 (3.14%) | |
| Active | – | – | |
| Price Change | – | – | |
| Price Reduced | $255,000 | $11,000 (4.14%) | |
| Active | – | – | |
| Price Change | – | – | |
| Price Reduced | $266,000 | $14,000 (5.00%) | |
| Active | – | – | |
| Price Change | – | – | |
| Price Reduced | $280,000 | $9,000 (3.11%) | |
| Active | – | – | |
| Price Change | – | – | |
| Price Reduced | $289,000 | $9,000 (3.02%) | |
| Active | – | – | |
| Price Change | – | – | |
| Price Reduced (from $314,000) | $298,000 | $16,000 (5.10%) | |
| Active (from New) | – | – | |
The data relating to real estate for sale on this web site comes in part from the Broker Reciprocity Program of Georgia MLS. Real estate listings held by brokerage firms other than Go Realty Of Georgia & Alabam are marked with the Broker Reciprocity logo and detailed information about them includes the name of the listing brokers.
The information being provided is for consumers' personal, non-commercial use and may not be used for any purpose other than to identify prospective properties consumers may be interested in purchasing. Information Deemed Reliable But Not Guaranteed.
The broker providing this data believes it to be correct, but advises interested parties to confirm them before relying on them in a purchase decision.
Copyright 2026 Georgia MLS. All rights reserved.
Listing information last updated on April 1st, 2026 at 1:02pm CDT.


































