Hi There! Is this Your First Time?
Did you know if you Register you have access to free search tools including the ability to save listings and property searches? Did you know that you can bypass the search altogether and have listings sent directly to your email address? Check out our how-to page for more info.
- Price$376,800
- Beds4
- Baths3
- SQ. Feet2,429
- Acres0.14
- Built2025
506 Outpost Way, Statesboro
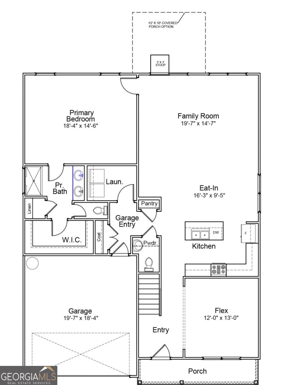
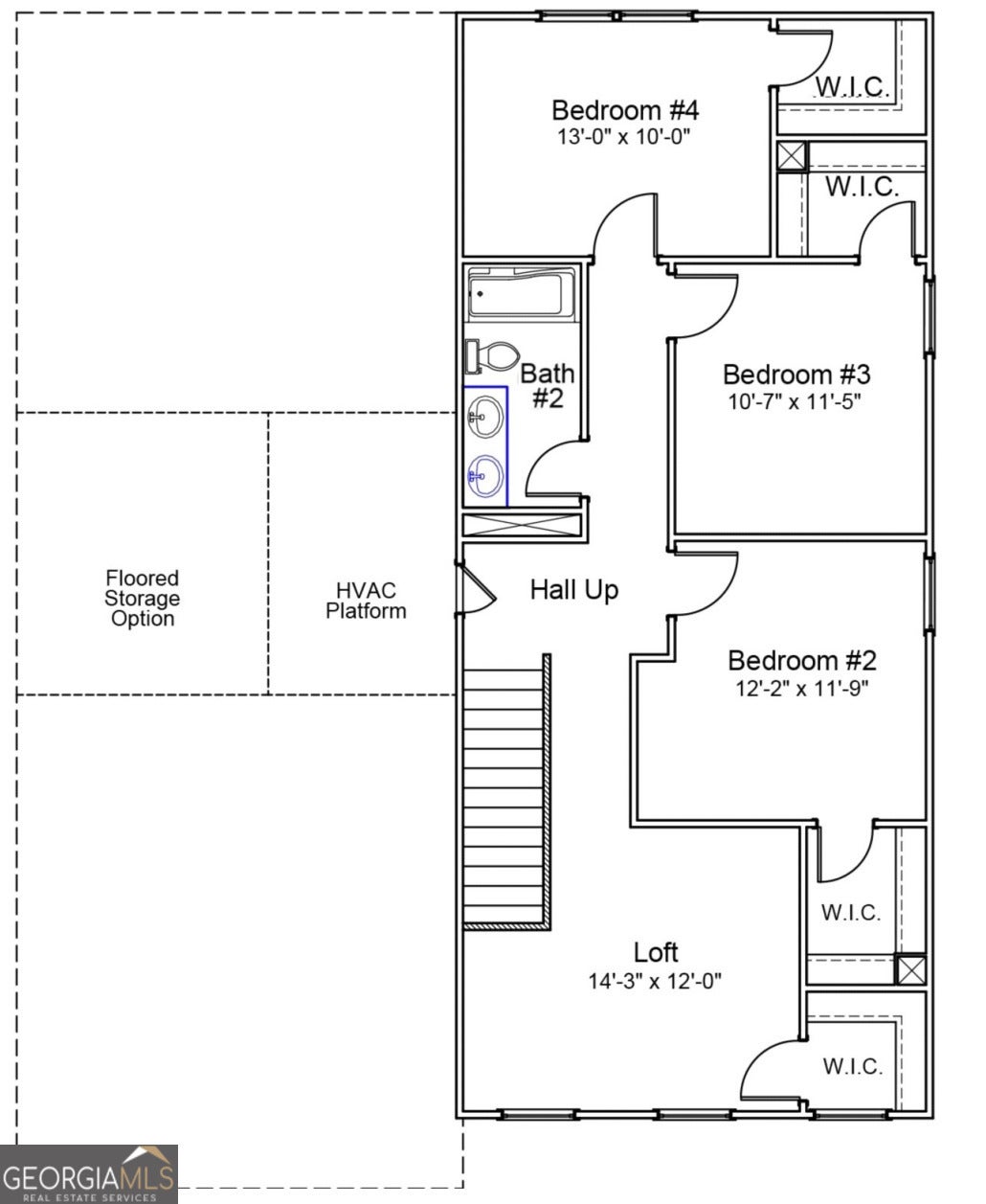
Welcome to The Outpost in Statesboro, GA. This beautifully crafted two-story Pickens floorplan by Mungo Homes, features 4 spacious bedrooms and 2.5 modern bathrooms. Luxury vinyl plank flooring flows through the main areas, with cozy carpet in each bedroom. Just off the entryway, a versatile flex space is perfect for a home office or study. The open-concept kitchen boasts granite countertops, a dining area, and a bright family room-ideal for entertaining. A covered back porch to enjoy sunsets is also a part of this thoughtful plan. The first-floor primary suite includes a spa-like bathroom and a generous walk-in closet. Upstairs, each bedroom has its own walk-in closet and shares a full bathroom, along with a spacious loft perfect for a media room, play area, or lounge. This home blends comfort, style, and functionality in every detail. Seller is offering 2% of base price towards closing cost plus $3500 from preferred lender.
Essential Information
- MLS® #10543940
- Price$376,800
- Bedrooms4
- Bathrooms3.00
- Full Baths2
- Half Baths1
- Square Footage2,429
- Acres0.14
- Year Built2025
- TypeResidential
- Sub-TypeSingle Family Residence
- StyleTraditional
- StatusActive
Amenities
- UtilitiesElectricity Available, Sewer Available, Underground Utilities, Water Available
- Parking Spaces2
- ParkingAttached
Exterior
- Exterior FeaturesSprinkler System
- Lot DescriptionNone
- RoofOther
- ConstructionConcrete
Additional Information
- Days on Market150
Community Information
- Address506 Outpost Way
- SubdivisionThe Outpost
- CityStatesboro
- CountyBulloch
- StateGA
- Zip Code30458
Interior
- Interior FeaturesMaster On Main Level, Pulldown Attic Stairs, Walk-In Closet(s)
- AppliancesDishwasher, Disposal, Electric Water Heater, Microwave, Oven/Range (Combo), Stainless Steel Appliance(s)
- HeatingCentral, Electric
- CoolingCentral Air, Electric
- StoriesTwo
School Information
- ElementarySallie Zetterower
- MiddleLangston Chapel
- HighStatesboro
Listing Details
- Listing Provided Courtesy Of Mungo Homes Realty
Price Change History for 506 Outpost Way, Statesboro, GA (MLS® #10543940)
| Date | Details | Price | Change |
|---|---|---|---|
| Active | – | – | |
| Price Change | – | – | |
| Price Reduced | $376,800 | $23,100 (5.78%) | |
| Active | – | – | |
| Price Change | – | – | |
| Show More (5) | |||
| Price Reduced | $399,900 | $6,000 (1.48%) | |
| Active | – | – | |
| Price Change | – | – | |
| Price Reduced (from $409,160) | $405,900 | $3,260 (0.80%) | |
| Active (from New) | – | – | |
The data relating to real estate for sale on this web site comes in part from the Broker Reciprocity Program of Georgia MLS. Real estate listings held by brokerage firms other than Go Realty Of Georgia & Alabam are marked with the Broker Reciprocity logo and detailed information about them includes the name of the listing brokers.
The information being provided is for consumers' personal, non-commercial use and may not be used for any purpose other than to identify prospective properties consumers may be interested in purchasing. Information Deemed Reliable But Not Guaranteed.
The broker providing this data believes it to be correct, but advises interested parties to confirm them before relying on them in a purchase decision.
Copyright 2025 Georgia MLS. All rights reserved.
Listing information last updated on November 15th, 2025 at 1:30pm CST.



































