Hi There! Is this Your First Time?
Did you know if you Register you have access to free search tools including the ability to save listings and property searches? Did you know that you can bypass the search altogether and have listings sent directly to your email address? Check out our how-to page for more info.
- Price$3,750,000
- Acres1.48
Pryor Street, Atlanta
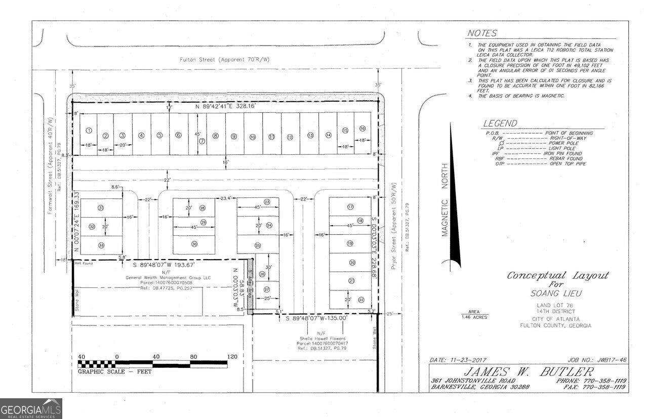
HOTT Location! This area is growing tremendously! This property is sold with the following parcels: 14 007600071035, 14 007600070391 & 14 007600070409. Located on the corner of Fulton, Pryor & Formwalt, ~1.46 acres for your builder's desire! Ideal location to build luxury townhomes/condos in the heart of Atlanta. Close to interstate 75/85 and I-20. Three parcels zoned C1 & one parcel zoned RG3. See conceptual layout of possible 33 townhome development.
Essential Information
- MLS® #10544319
- Price$3,750,000
- Bathrooms0.00
- Acres1.48
- TypeLand
- Sub-TypeUnimproved Land
- StatusActive
Amenities
- UtilitiesNone
School Information
- ElementaryDunbar
- MiddleKing
- HighMH Jackson Jr
Listing Details
- Listing Provided Courtesy Of Brick And Bloom Property Management
Community Information
- AddressPryor Street
- SubdivisionNone
- CityAtlanta
- CountyFulton
- StateGA
- Zip Code30312
Exterior
- Lot DescriptionOther
Additional Information
- Days on Market219
Price Change History for Pryor Street, Atlanta, GA (MLS® #10544319)
| Date | Details | Price | Change |
|---|---|---|---|
| Active | – | – | |
| Price Change | – | – | |
| Price Reduced (from $4,000,000) | $3,750,000 | $250,000 (6.25%) | |
| Active (from New) | – | – |
The data relating to real estate for sale on this web site comes in part from the Broker Reciprocity Program of Georgia MLS. Real estate listings held by brokerage firms other than Go Realty Of Georgia & Alabam are marked with the Broker Reciprocity logo and detailed information about them includes the name of the listing brokers.
The information being provided is for consumers' personal, non-commercial use and may not be used for any purpose other than to identify prospective properties consumers may be interested in purchasing. Information Deemed Reliable But Not Guaranteed.
The broker providing this data believes it to be correct, but advises interested parties to confirm them before relying on them in a purchase decision.
Copyright 2026 Georgia MLS. All rights reserved.
Listing information last updated on February 3rd, 2026 at 11:46am CST.









