Hi There! Is this Your First Time?
Did you know if you Register you have access to free search tools including the ability to save listings and property searches? Did you know that you can bypass the search altogether and have listings sent directly to your email address? Check out our how-to page for more info.
- Price$699,000
- Beds3
- Baths3
- SQ. Feet1,680
- Acres4.57
- Built1960
104 Road 3 South Sw, Cartersville
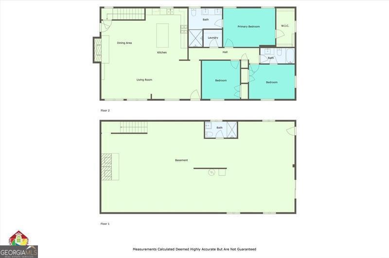
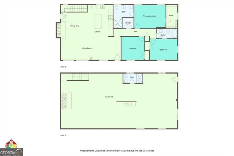
Welcome home to 104 Road No 3! This completely updated brick ranch is located on a nearly 5-acre mini-farm with barn! Two parcels are included in the sale (0050-0290-003 & 0050-0290-006). No detail was overlooked: from all NEW electrical, plumbing & HVAC to new architectural shingles, windows & spray foam insulation. All NEW cabinets, countertops, flooring & fixtures throughout. Everything is NEW. The huge country kitchen incorporates a tasteful blend of white & stained cabinets with new stone counters & stainless steel appliances. The primary bedroom en suite bathroom boasts new tile floors & walls with double sinks & a double walk-in shower with two shower heads & an additional rain can. Enjoy endless water with the brand new, tankless water heater or the efficiency of new HVAC coupled with spray foam insulation throughout! Whether you want animals or garden (or BOTH!), this property has been mostly cleared with beautiful pasture remaining & a NEW 3-board fence with 2x4 wire along the road frontage. A barn (with power & water) for animals &/or storage is located at the back of the property. New water piping was also ran from the road to the home & barn. There is nothing left to do! Please be sure to check out the virtual tour!
Essential Information
- MLS® #10547046
- Price$699,000
- Bedrooms3
- Bathrooms3.00
- Full Baths3
- Square Footage1,680
- Acres4.57
- Year Built1960
- TypeResidential
- Sub-TypeSingle Family Residence
- StyleBrick 4 Side, Ranch
- StatusActive
Amenities
- UtilitiesCable Available, High Speed Internet, Electricity Available, Natural Gas Available, Water Available
- Parking Spaces4
- ParkingCarport
Exterior
- Exterior FeaturesOther
- Lot DescriptionOpen Lot, Pasture, Private
- WindowsDouble Pane Windows
- RoofComposition
- ConstructionBrick
- FoundationBlock
Additional Information
- Days on Market141
Community Information
- Address104 Road 3 South Sw
- Subdivision400 -WEST OF CARTERSVILLE
- CityCartersville
- CountyBartow
- StateGA
- Zip Code30120
Interior
- Interior FeaturesBookcases, Master On Main Level, Tile Bath
- AppliancesDishwasher, Microwave, Oven/Range (Combo), Stainless Steel Appliance(s), Gas Water Heater, Tankless Water Heater
- HeatingCentral, Forced Air, Natural Gas
- CoolingCeiling Fan(s), Central Air
- FireplaceYes
- # of Fireplaces1
- FireplacesBasement, Family Room, Living Room, Masonry, Outside
- StoriesOne
School Information
- ElementaryMission Road
- MiddleWoodland
- HighWoodland
Listing Details
- Listing Provided Courtesy Of Keller Williams Realty Partners
Price Change History for 104 Road 3 South Sw, Cartersville, GA (MLS® #10547046)
| Date | Details | Price | Change |
|---|---|---|---|
| Active | – | – | |
| Price Change | – | – | |
| Price Reduced (from $750,000) | $699,000 | $51,000 (6.80%) | |
| Active (from New) | – | – |
The data relating to real estate for sale on this web site comes in part from the Broker Reciprocity Program of Georgia MLS. Real estate listings held by brokerage firms other than Go Realty Of Georgia & Alabam are marked with the Broker Reciprocity logo and detailed information about them includes the name of the listing brokers.
The information being provided is for consumers' personal, non-commercial use and may not be used for any purpose other than to identify prospective properties consumers may be interested in purchasing. Information Deemed Reliable But Not Guaranteed.
The broker providing this data believes it to be correct, but advises interested parties to confirm them before relying on them in a purchase decision.
Copyright 2025 Georgia MLS. All rights reserved.
Listing information last updated on December 22nd, 2025 at 6:00pm CST.












































































