Hi There! Is this Your First Time?
Did you know if you Register you have access to free search tools including the ability to save listings and property searches? Did you know that you can bypass the search altogether and have listings sent directly to your email address? Check out our how-to page for more info.
- Price$315,000
- Beds3
- Baths2
- SQ. Feet1,400
- Acres1.66
- Built2025
39b Omaha Drive, Elberton
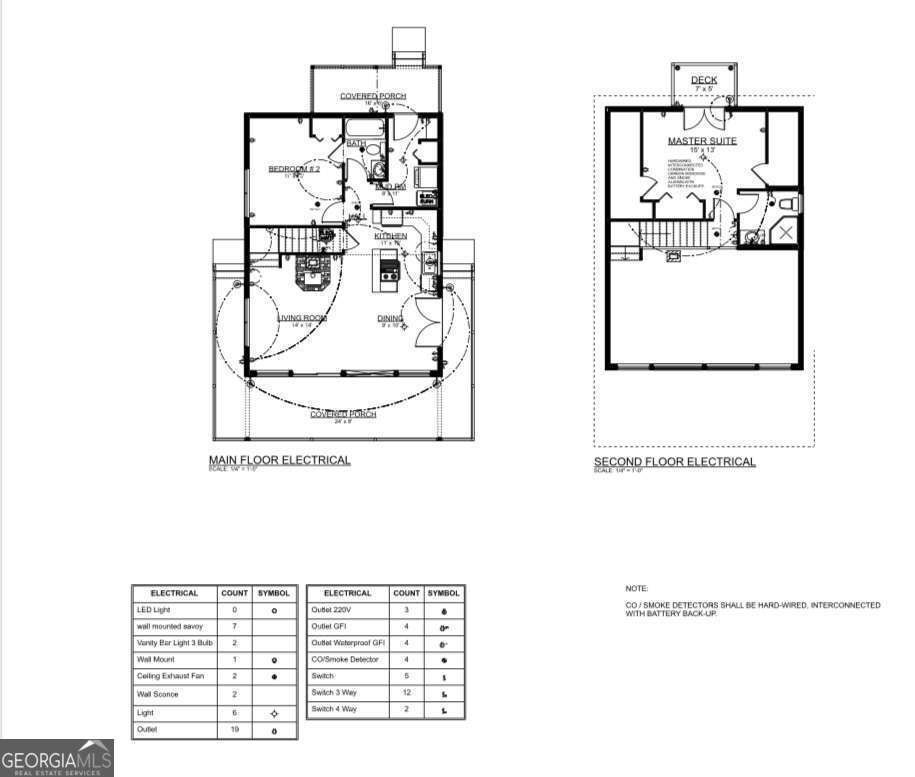
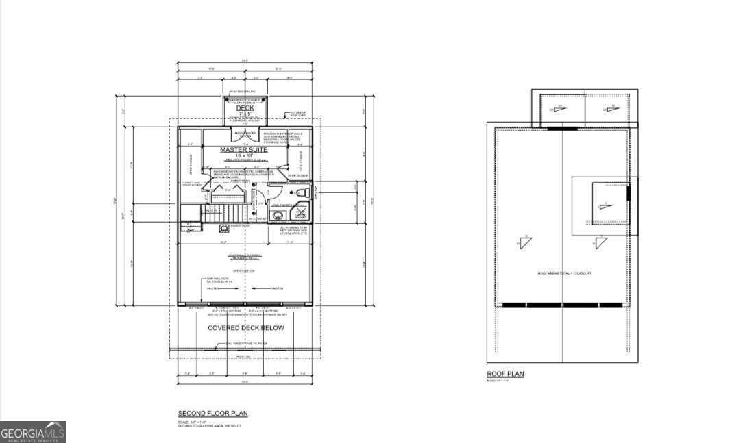
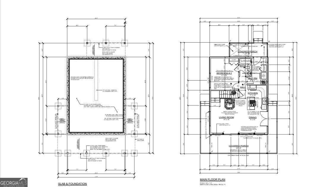
Discover serene living in this custom A frame-style 3BR/2BA home in gated Newtons Landing at Savannah Landings. Nestled on a wooded lot near Lake Russell, this home features a cozy gas log fireplace-well lit great room, open dining/kitchen and covered front and back porches. The spacious primary suite upstairs offers a quiet retreat with treetop views. Optional backyard pool upgrade available. Surrounded by Corps land, it's a peaceful escape for nature lovers and weekend hosts alike. Love the idea of escaping to nature -- this could be the perfect weekend getaway, ideal as a second home or full-time haven for those craving peace, privacy, and lake life.
Essential Information
- MLS® #10548370
- Price$315,000
- Bedrooms3
- Bathrooms2.00
- Full Baths2
- Square Footage1,400
- Acres1.66
- Year Built2025
- TypeResidential
- Sub-TypeSingle Family Residence
- StyleCraftsman, A-frame
- StatusActive
Amenities
- UtilitiesElectricity Available, Natural Gas Available
- Parking Spaces2
- ParkingCarport, Parking Pad
Exterior
- Lot DescriptionPrivate
- WindowsDouble Pane Windows
- RoofComposition
- ConstructionConcrete
- FoundationSlab
Additional Information
- Days on Market140
Community Information
- Address39b Omaha Drive
- SubdivisionNewton's Landing/ Savannah Landing
- CityElberton
- CountyElbert
- StateGA
- Zip Code30635
Interior
- Interior FeaturesHigh Ceilings
- AppliancesDishwasher, Microwave, Refrigerator
- HeatingNatural Gas
- CoolingCentral Air, Electric
- FireplaceYes
- # of Fireplaces1
- FireplacesLiving Room
- StoriesOne and One Half
School Information
- ElementaryElbert Co Primary/Elem
- MiddleElbert County
- HighElbert County
Listing Details
- Listing Provided Courtesy Of Coldwell Banker Realty
Price Change History for 39b Omaha Drive, Elberton, GA (MLS® #10548370)
| Date | Details | Price | Change |
|---|---|---|---|
| Active (from New) | – | – |
The data relating to real estate for sale on this web site comes in part from the Broker Reciprocity Program of Georgia MLS. Real estate listings held by brokerage firms other than Go Realty Of Georgia & Alabam are marked with the Broker Reciprocity logo and detailed information about them includes the name of the listing brokers.
The information being provided is for consumers' personal, non-commercial use and may not be used for any purpose other than to identify prospective properties consumers may be interested in purchasing. Information Deemed Reliable But Not Guaranteed.
The broker providing this data believes it to be correct, but advises interested parties to confirm them before relying on them in a purchase decision.
Copyright 2025 Georgia MLS. All rights reserved.
Listing information last updated on December 23rd, 2025 at 3:45am CST.


























