Hi There! Is this Your First Time?
Did you know if you Register you have access to free search tools including the ability to save listings and property searches? Did you know that you can bypass the search altogether and have listings sent directly to your email address? Check out our how-to page for more info.
- Price$3,250,000
- Built2025
100 New Cut Road 3, Braselton
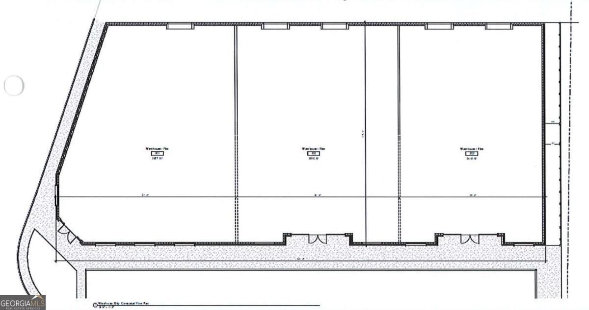
Building #3 is a flex space featuring 11,191 +/- square feet with endless possibilities. It could easily be finished out to feature showrooms, offices, counterspace, and will include loading docks in the rear for shipping and deliveries. This building can be split into three separate suites to accommodate multiple tenants. All interiors can be built to suit, or will be completed to a vanilla box finish. Please contact for details on build outs or pricing for individual buildings/suites. Square footage can be leased as well.
Essential Information
- MLS® #10549293
- Price$3,250,000
- Bathrooms0.00
- Acres0.00
- Year Built2025
- TypeCommercial Sale
- StatusActive
Amenities
- UtilitiesElectricity Available, High Speed Internet, Sewer Available, Underground Utilities, Water Available
- ParkingParking Lot, Paved
Exterior
- Lot DescriptionBusiness Park, Level
- RoofOther
- ConstructionOther
Listing Details
- Listing Provided Courtesy Of Poss Realty
Community Information
- Address100 New Cut Road 3
- SubdivisionBraselton Walk
- CityBraselton
- CountyJackson
- StateGA
- Zip Code30517
Interior
- HeatingCentral
- CoolingCentral Air, Electric
Additional Information
- Days on Market205
- ZoningCommercial
Price Change History for 100 New Cut Road 3, Braselton, GA (MLS® #10549293)
| Date | Details | Price | Change |
|---|---|---|---|
| Active | – | – | |
| Back On Market | – | – | |
| Active | – | – | |
| Price Increased | $3,250,000 | $15,000 (0.46%) | |
| Price Change | – | – | |
| Show More (5) | |||
| Price Reduced | $3,235,000 | $15,000 (0.46%) | |
| Active | – | – | |
| Price Change | – | – | |
| Price Increased (from $3,077,525) | $3,250,000 | $172,475 (5.60%) | |
| Active (from New) | – | – | |
The data relating to real estate for sale on this web site comes in part from the Broker Reciprocity Program of Georgia MLS. Real estate listings held by brokerage firms other than Go Realty Of Georgia & Alabam are marked with the Broker Reciprocity logo and detailed information about them includes the name of the listing brokers.
The information being provided is for consumers' personal, non-commercial use and may not be used for any purpose other than to identify prospective properties consumers may be interested in purchasing. Information Deemed Reliable But Not Guaranteed.
The broker providing this data believes it to be correct, but advises interested parties to confirm them before relying on them in a purchase decision.
Copyright 2026 Georgia MLS. All rights reserved.
Listing information last updated on February 18th, 2026 at 7:30am CST.


