Hi There! Is this Your First Time?
Did you know if you Register you have access to free search tools including the ability to save listings and property searches? Did you know that you can bypass the search altogether and have listings sent directly to your email address? Check out our how-to page for more info.
- Price$620,000
- Acres2.28
- Built1950
2365 County Line Road Sw, Atlanta
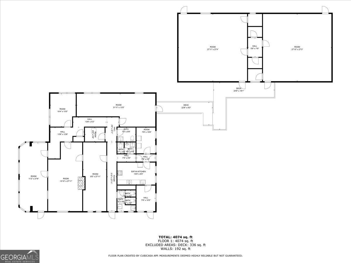
Seize this rare chance to own and operate a fully equipped daycare center in the heart of Southwest Atlanta! Whether you're an experienced childcare operator ready to expand, an entrepreneur eager to build your legacy, or an investor, this established facility offers everything you need to hit the ground running. This proven operation boasts a spacious layout to accommodate 86 children with room for future growth by increasing enrollment and introducing new programs. The property features a main school building, a well-maintained school trailer, and a dedicated turf playground that accommodates up to 61 kids at once-all thoughtfully designed to foster fun, safety, and learning. The expansive open green space at the front of the property offers endless possibilities for outdoor activities, school events, and creative expansion. All licensing and permits are current and in good standing, making for a smooth transition to new ownership. Please note: This sale includes real estate and furniture only. The business is not included. The property is fully operational and ready for its next chapter. For more details, contact the listing agent directly.
Essential Information
- MLS® #10549523
- Price$620,000
- Bathrooms0.00
- Acres2.28
- Year Built1950
- TypeCommercial Sale
- StatusActive
Amenities
- UtilitiesElectricity Available, Sewer Available, Water Available
- ParkingOn Street, Other
Exterior
- Lot DescriptionLevel
- ConstructionBrick
Listing Details
- Listing Provided Courtesy Of Real Broker Llc
Community Information
- Address2365 County Line Road Sw
- SubdivisionNone
- CityAtlanta
- CountyFulton
- StateGA
- Zip Code30331
Interior
- HeatingForced Air, Natural Gas
- CoolingCentral Air, Electric
Additional Information
- Days on Market152
- ZoningR4
Price Change History for 2365 County Line Road Sw, Atlanta, GA (MLS® #10549523)
| Date | Details | Price | Change |
|---|---|---|---|
| Active | – | – | |
| Back On Market | – | – | |
| Under Contract | – | – | |
| Active (from New) | – | – |
The data relating to real estate for sale on this web site comes in part from the Broker Reciprocity Program of Georgia MLS. Real estate listings held by brokerage firms other than Go Realty Of Georgia & Alabam are marked with the Broker Reciprocity logo and detailed information about them includes the name of the listing brokers.
The information being provided is for consumers' personal, non-commercial use and may not be used for any purpose other than to identify prospective properties consumers may be interested in purchasing. Information Deemed Reliable But Not Guaranteed.
The broker providing this data believes it to be correct, but advises interested parties to confirm them before relying on them in a purchase decision.
Copyright 2026 Georgia MLS. All rights reserved.
Listing information last updated on January 31st, 2026 at 9:30pm CST.







































































