Hi There! Is this Your First Time?
Did you know if you Register you have access to free search tools including the ability to save listings and property searches? Did you know that you can bypass the search altogether and have listings sent directly to your email address? Check out our how-to page for more info.
- Price$4,000
- Acres6.43
- Built1965
889 Wimpy Mill Road, Dahlonega
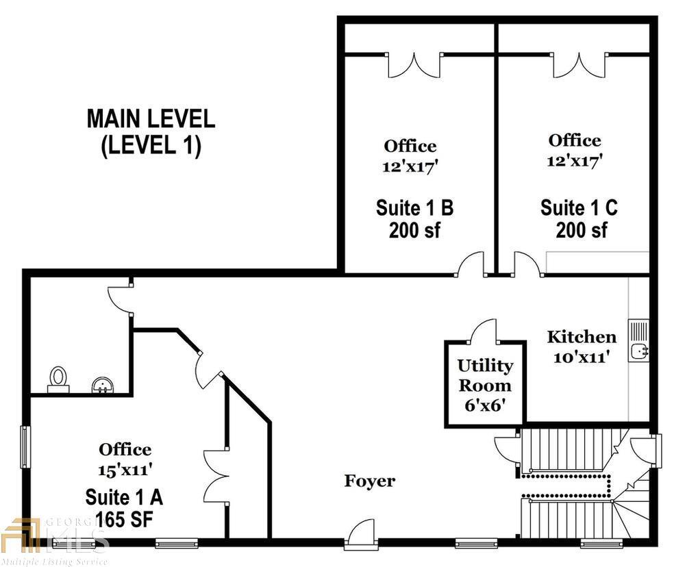
Reservoir Point is a Landmark office building optimally located less than one mile from Downtown Dahlonega and the rapidly expanding University of North Georgia. Having undergone a complete renovation into premium office suites and flex space from the former municipal water works building, this property offers unique characteristics boasting around 4200sf of office and 1460sf of flex space in the lower level. The property includes 12 private office suites, a break room, a large lobby, 3 bathrooms and 25+ parking spaces. The property delivers Lake Zwerner and tree lined views. Located adjacent to Dahlonega's premier residential neighborhood at Sky County Road. Offered at $8.50 per sf per year NNN ($4,000 per month) with Taxes and Insurance expenses estimated at $1.50 per sf per year. Large front monument sign available for tenant signage. Individual Suites may be available from $350 to $1,400 per month. Suites Located at the Intersection of Wimpy Mill Road & Sky Country Road.
Essential Information
- MLS® #10550988
- Price$4,000
- Bathrooms0.00
- Acres6.43
- Year Built1965
- TypeCommercial Lease
- StatusActive
Amenities
- UtilitiesCable Available, Electricity Available, High Speed Internet, Natural Gas Available, Phone Available, Water Available
- Parking Spaces30
- ParkingParking Lot
Exterior
- Lot DescriptionLevel
- RoofComposition
- ConstructionBrick, Concrete, Block, Frame, Glass
Listing Details
- Listing Provided Courtesy Of Keller Knapp, Inc
Community Information
- Address889 Wimpy Mill Road
- SubdivisionReservoir Point
- CityDahlonega
- CountyLumpkin
- StateGA
- Zip Code30533
Interior
- HeatingNatural Gas, Forced Air
- CoolingCentral Air
Additional Information
- Days on Market135
- Zoningc1
Price Change History for 889 Wimpy Mill Road, Dahlonega, GA (MLS® #10550988)
| Date | Details | Price | Change |
|---|---|---|---|
| Active (from New) | – | – |
The data relating to real estate for sale on this web site comes in part from the Broker Reciprocity Program of Georgia MLS. Real estate listings held by brokerage firms other than Go Realty Of Georgia & Alabam are marked with the Broker Reciprocity logo and detailed information about them includes the name of the listing brokers.
The information being provided is for consumers' personal, non-commercial use and may not be used for any purpose other than to identify prospective properties consumers may be interested in purchasing. Information Deemed Reliable But Not Guaranteed.
The broker providing this data believes it to be correct, but advises interested parties to confirm them before relying on them in a purchase decision.
Copyright 2025 Georgia MLS. All rights reserved.
Listing information last updated on December 27th, 2025 at 11:00pm CST.















































