Hi There! Is this Your First Time?
Did you know if you Register you have access to free search tools including the ability to save listings and property searches? Did you know that you can bypass the search altogether and have listings sent directly to your email address? Check out our how-to page for more info.
- Price$379,900
- Acres0.50
- Built1980
8535 Hiram Acworth Highway, Dallas
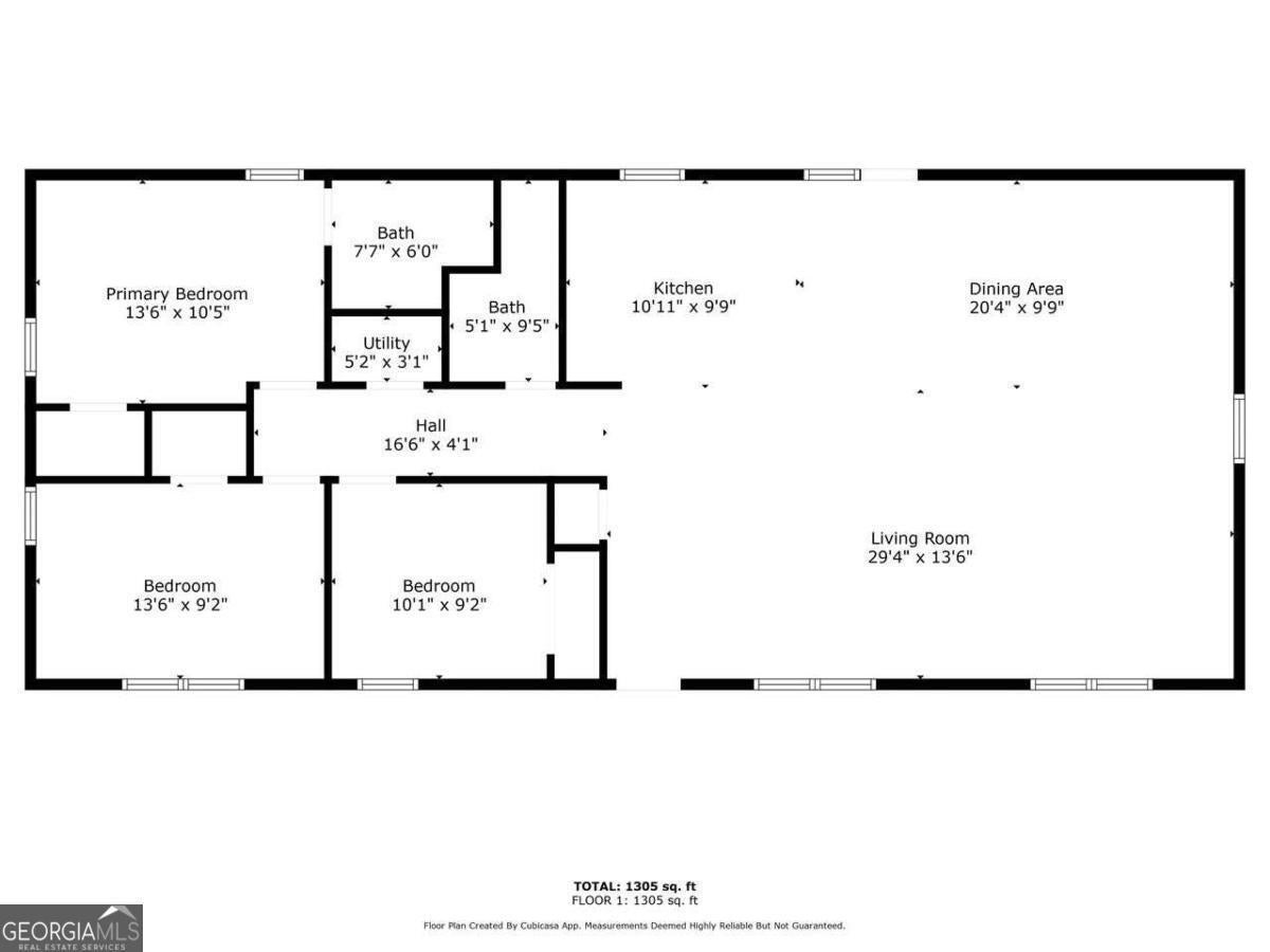
Prime commercial opportunity in Dallas, GA. Perfect for investors and business owners! Discover this beautifully remodeled property in the heart of Dallas, GA. An ideal location for your next business venture or a charming new home with immediate access to vibrant local amenities. Featuring a spacious, open-concept (floorplan) layout, this versatile property offers 3 bedrooms or (Individual offices.) 2 bathrooms with modern updates throughout. The kitchen boasts brand-new cabinets and countertops, creating a fresh and inviting space perfect for both work and leisure. The bathrooms have been thoughtfully upgraded to ensure comfort and style. Situated right across the street from supermarkets, coffee shops, gas stations, fast food eateries, and more. This property provides unmatched convenience and high visibility - perfect for a retail, office or service based business. Weather you're an investor seeking a lucrative opportunity or a business owner wanting a prime location, this property offers tremendous potential. Don't miss out on this exceptional chance to secure a strategic location in Dallas, GA. Schedule your viewing today and take the first step toward realizing your business or residential dreams!
Essential Information
- MLS® #10559916
- Price$379,900
- Bathrooms0.00
- Acres0.50
- Year Built1980
- TypeCommercial Sale
- StatusActive
Amenities
- UtilitiesCable Available, Electricity Available, Phone Available, Sewer Available, Underground Utilities, Water Available
- Parking Spaces1
- ParkingOther
Exterior
- Lot DescriptionLevel
- RoofComposition
- ConstructionFrame
Listing Details
- Listing Provided Courtesy Of Coldwell Banker Realty
Community Information
- Address8535 Hiram Acworth Highway
- SubdivisionNONE
- CityDallas
- CountyPaulding
- StateGA
- Zip Code30157
Interior
- HeatingCentral
- CoolingCentral Air
Additional Information
- Days on Market122
- ZoningR20
Price Change History for 8535 Hiram Acworth Highway, Dallas, GA (MLS® #10559916)
| Date | Details | Price | Change |
|---|---|---|---|
| Active (from New) | – | – |
The data relating to real estate for sale on this web site comes in part from the Broker Reciprocity Program of Georgia MLS. Real estate listings held by brokerage firms other than Go Realty Of Georgia & Alabam are marked with the Broker Reciprocity logo and detailed information about them includes the name of the listing brokers.
The information being provided is for consumers' personal, non-commercial use and may not be used for any purpose other than to identify prospective properties consumers may be interested in purchasing. Information Deemed Reliable But Not Guaranteed.
The broker providing this data believes it to be correct, but advises interested parties to confirm them before relying on them in a purchase decision.
Copyright 2026 Georgia MLS. All rights reserved.
Listing information last updated on January 9th, 2026 at 6:30am CST.
































