Hi There! Is this Your First Time?
Did you know if you Register you have access to free search tools including the ability to save listings and property searches? Did you know that you can bypass the search altogether and have listings sent directly to your email address? Check out our how-to page for more info.
- Price$415,000
- Beds4
- Baths2
- SQ. Feet2,200
- Acres4.69
- Built2025
1030 Grey Wolf Trail, Dublin
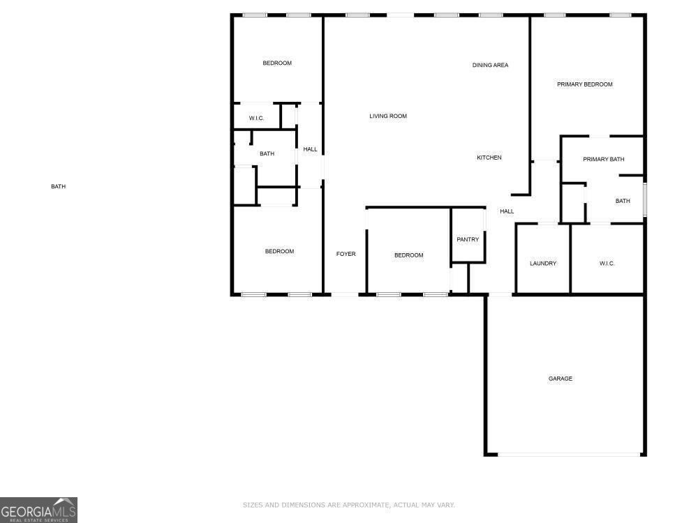
BRAND NEW CONSTRUCTION HOME located on 4.69 ACRES! Exquisite! This one is a must see with it's superb kitchen to it's abundance of crown molding throughout the home. The stunning Kitchen boast a large center island, granite countertops, beautiful tile backsplash, and stainless-steel appliances. Dining Area, Walk-In Pantry, and Spacious Living Room. LVP flooring throughout. With the split floor plan on one side of the home you will find two bedrooms and a hall bathroom with granite countertops, double sinks, toilet room, linen closet, and shower tub combo. Off from the entry way of the home you have your BONUS ROON that is a great flex space for an office, playroom, or even fourth bedroom. On the other side of home you have laundry room with cabinetry and granite countertops. As you continue down the hall you will find the spacious primary bedroom and ensuite bathroom with granite countertops, double sinks, walk-in tile shower, tub, toilet room, and oversized walk-in closet. Covered front and back porches. Private, paved driveway back to home. Great location in the county. Approximately 15 minute drive to Downtown Dublin. The subdivision offers gated access to boat ramp to access the Oconee River. Enjoy boating, fishing, kayaking, sunbathing, and all the perks the river and subdivision has to offer. Covenants do apply. Estimated completion date for home is: End of the year 2025. Pictures posted are very similar to what finished home will look like. Only differences are interior paint color of Linen and trim color is three shades darker to give a more designer look. The home is also on a wooded lot so there will be more trees surrounding the house. PLEASE BEWARE OF SCAMMERS, THIS HOME IS NOT FOR RENT!
Essential Information
- MLS® #10562145
- Price$415,000
- Bedrooms4
- Bathrooms2.00
- Full Baths2
- Square Footage2,200
- Acres4.69
- Year Built2025
- TypeResidential
- Sub-TypeSingle Family Residence
- StyleTraditional
- StatusActive
Amenities
- UtilitiesOther
- ParkingAttached, Garage
Exterior
- Lot DescriptionLevel
- RoofComposition
- ConstructionVinyl Siding
Additional Information
- Days on Market134
Community Information
- Address1030 Grey Wolf Trail
- SubdivisionRock Springs
- CityDublin
- CountyLaurens
- StateGA
- Zip Code31021
Interior
- Interior FeaturesMaster On Main Level
- AppliancesDishwasher, Microwave, Oven/Range (Combo), Refrigerator
- HeatingElectric, Heat Pump
- CoolingElectric, Heat Pump
- StoriesOne
School Information
- ElementarySouthwest Laurens
- MiddleWest Laurens
- HighWest Laurens
Listing Details
- Listing Provided Courtesy Of Premier Properties Of Dublin, Llc
Price Change History for 1030 Grey Wolf Trail, Dublin, GA (MLS® #10562145)
| Date | Details | Price | Change |
|---|---|---|---|
| Active | – | – | |
| Price Change | – | – | |
| Price Reduced (from $422,000) | $415,000 | $7,000 (1.66%) | |
| Active (from New) | – | – |
The data relating to real estate for sale on this web site comes in part from the Broker Reciprocity Program of Georgia MLS. Real estate listings held by brokerage firms other than Go Realty Of Georgia & Alabam are marked with the Broker Reciprocity logo and detailed information about them includes the name of the listing brokers.
The information being provided is for consumers' personal, non-commercial use and may not be used for any purpose other than to identify prospective properties consumers may be interested in purchasing. Information Deemed Reliable But Not Guaranteed.
The broker providing this data believes it to be correct, but advises interested parties to confirm them before relying on them in a purchase decision.
Copyright 2025 Georgia MLS. All rights reserved.
Listing information last updated on December 22nd, 2025 at 10:16am CST.





































