Hi There! Is this Your First Time?
Did you know if you Register you have access to free search tools including the ability to save listings and property searches? Did you know that you can bypass the search altogether and have listings sent directly to your email address? Check out our how-to page for more info.
- Price$338,900
- Beds4
- Baths3
- SQ. Feet2,000
- Acres0.23
- Built2025
492 Charleston Place, Villa Rica
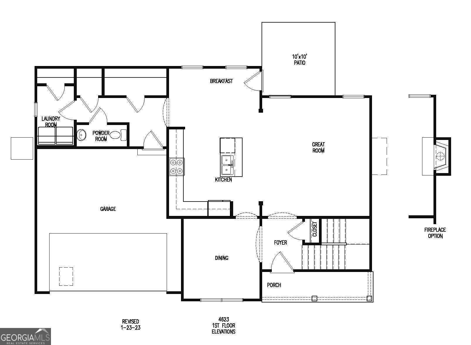
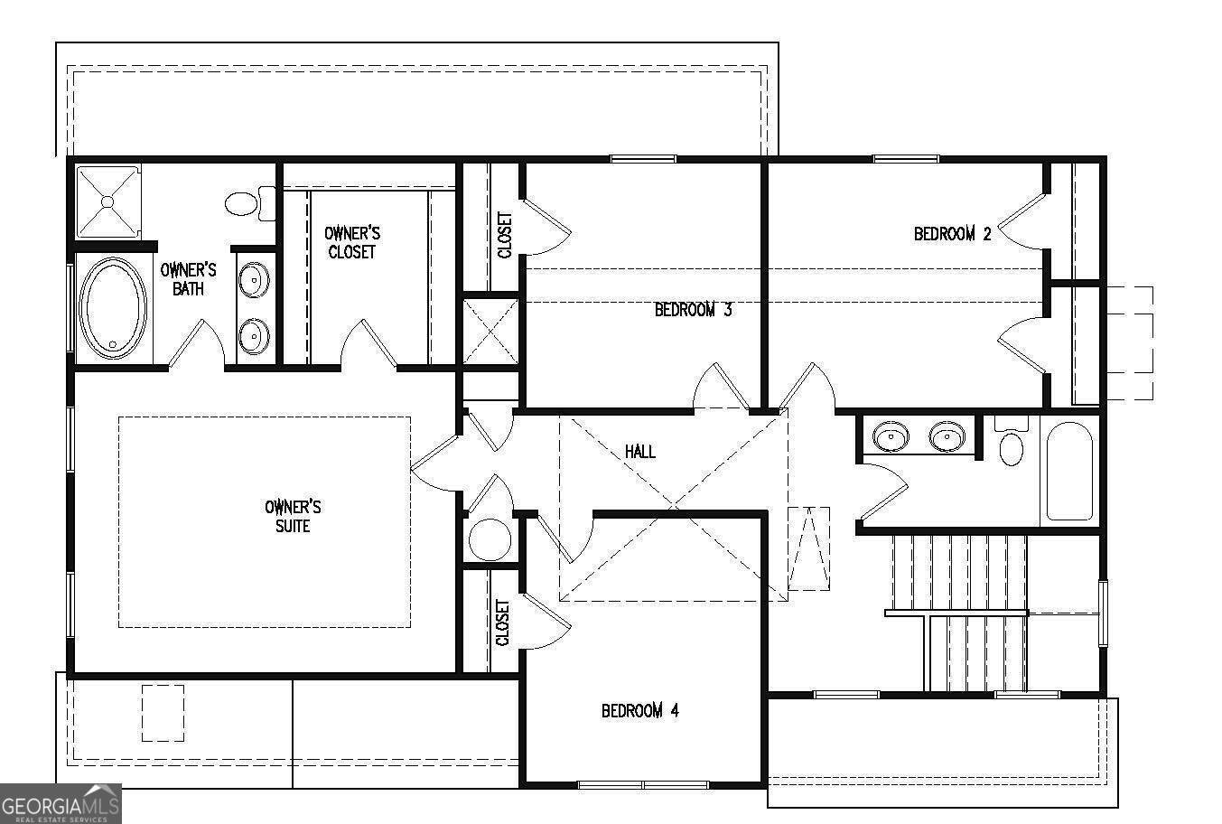
Home is move in ready and is USDA Eligible! Plan 4623 T / Features a Craftsman style exterior with a combination front elevation of stone, Hardiplank and board & batten. This plan includes 4 bedrooms and 2.5 baths with a 2-car garage, smooth ceilings throughout, and 9' second-floor ceilings. The main floor features a spacious great room with a fireplace, dining room, large kitchen with granite countertops, and stainless appliances. The upper floor features a spacious primary suite with dual sink vanity, garden tub, separate shower, and large walk-in closet, as well as 3 additional bedrooms and another full bathroom with dual sink vanity. Builder will contribute $10,000 toward closing costs. Blinds, Screens, Glass Shower Door in Owner's Suite and Garage Door Opener added at no charge to Buyer!
Essential Information
- MLS® #10566139
- Price$338,900
- Bedrooms4
- Bathrooms3.00
- Full Baths2
- Half Baths1
- Square Footage2,000
- Acres0.23
- Year Built2025
- TypeResidential
- Sub-TypeSingle Family Residence
- StyleCraftsman, Traditional
- StatusActive
Amenities
- UtilitiesUnderground Utilities
- Parking Spaces2
- ParkingGarage
Exterior
- Exterior FeaturesOther
- Lot DescriptionNone
- RoofComposition
- ConstructionConcrete, Other, Stone
- FoundationSlab
Additional Information
- Days on Market113
Community Information
- Address492 Charleston Place
- SubdivisionThe Trails at Charleston Place
- CityVilla Rica
- CountyCarroll
- StateGA
- Zip Code30180
Interior
- Interior FeaturesDouble Vanity, Other, Pulldown Attic Stairs, Separate Shower, Soaking Tub, Tray Ceiling(s), Vaulted Ceiling(s), Walk-In Closet(s)
- AppliancesDishwasher, Microwave, Oven/Range (Combo), Stainless Steel Appliance(s)
- HeatingElectric, Forced Air
- CoolingCentral Air, Electric
- FireplaceYes
- # of Fireplaces1
- FireplacesFamily Room
- StoriesTwo
School Information
- ElementaryIthica
- MiddleBay Springs
- HighVilla Rica
Listing Details
- Listing Provided Courtesy Of Clover Realty
Price Change History for 492 Charleston Place, Villa Rica, GA (MLS® #10566139)
| Date | Details | Price | Change |
|---|---|---|---|
| Active (from New) | – | – |
The data relating to real estate for sale on this web site comes in part from the Broker Reciprocity Program of Georgia MLS. Real estate listings held by brokerage firms other than Go Realty Of Georgia & Alabam are marked with the Broker Reciprocity logo and detailed information about them includes the name of the listing brokers.
The information being provided is for consumers' personal, non-commercial use and may not be used for any purpose other than to identify prospective properties consumers may be interested in purchasing. Information Deemed Reliable But Not Guaranteed.
The broker providing this data believes it to be correct, but advises interested parties to confirm them before relying on them in a purchase decision.
Copyright 2025 Georgia MLS. All rights reserved.
Listing information last updated on November 11th, 2025 at 4:00am CST.
































