Hi There! Is this Your First Time?
Did you know if you Register you have access to free search tools including the ability to save listings and property searches? Did you know that you can bypass the search altogether and have listings sent directly to your email address? Check out our how-to page for more info.
- Price$899,900
- Beds5
- Baths4
- SQ. Feet2,459
- Built2025
1010-b Boulevard Se, Atlanta
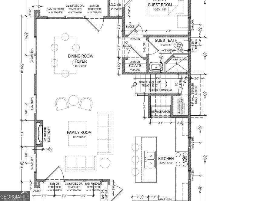
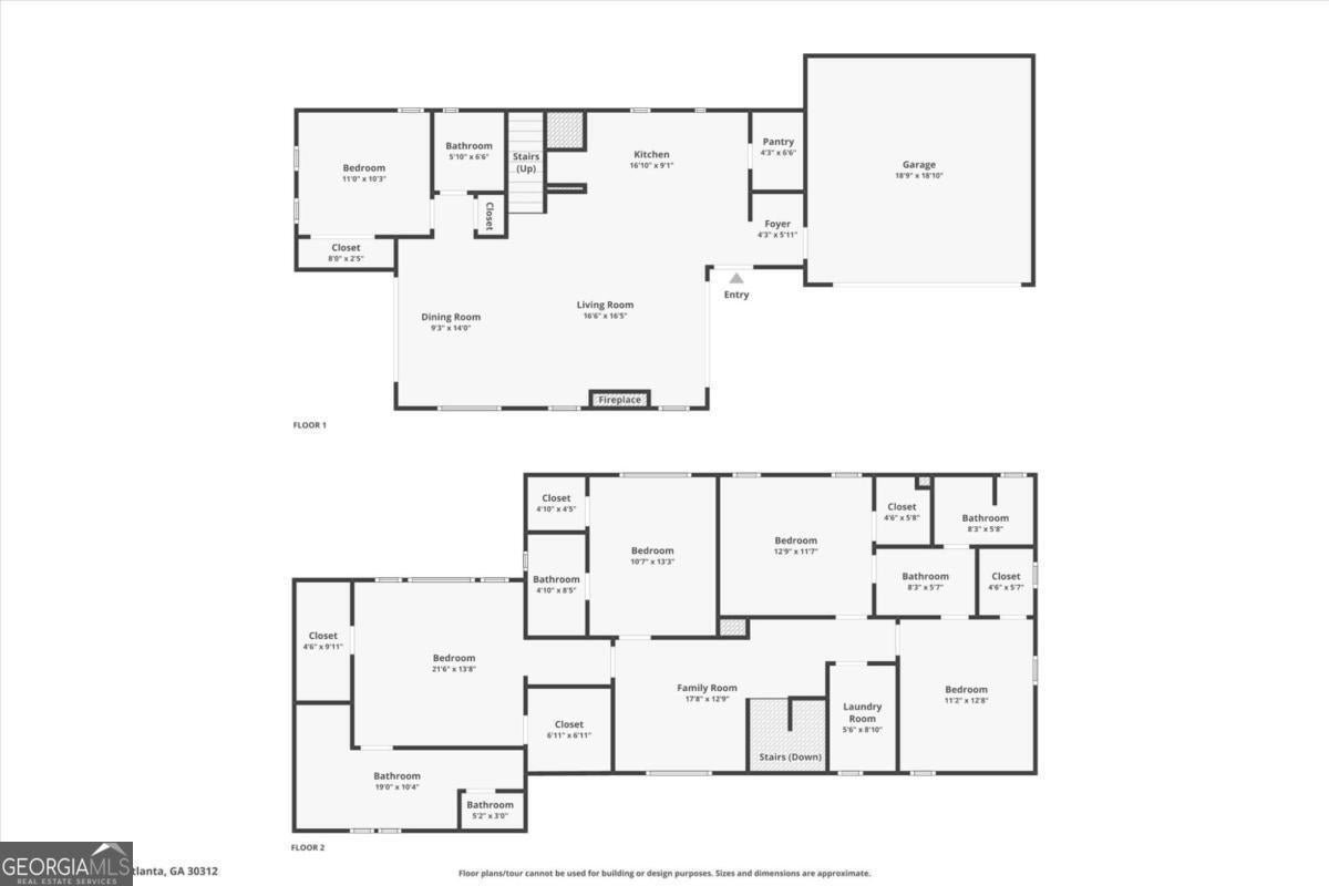
Scandinavian inspired Belt-Line adjacent 5 Bedroom/4 Bath home with white oak floors throughout in Grant Park built by Grit City. EcoChef Certified Kitchen includes Thermador appliances including an induction range, fully custom cabinetry, cambria countertops and large island. The main floor has 10' Ceilings and 8' doors with a large fireplace, open living and dining areas, large walk-in pantry with wine cooler, drop zone, office/bedroom, full bath, covered rear patio and fenced in rear yard area. The upstairs includes a den, primary suite with two walk-in closets and tiled Primary bath with Large Shower, free-standing tub, two vanities and Japanese style smart toilet, 3 additional bedrooms - one ensuite and the other two with a jack-n-jill bath, and laundry room. The two-car garage is EV Car Charger ready. This alley accessed home is two doors down from Beltline entrance.
Essential Information
- MLS® #10575103
- Price$899,900
- Bedrooms5
- Bathrooms4.00
- Full Baths4
- Square Footage2,459
- Acres0.00
- Year Built2025
- TypeResidential
- Sub-TypeTownhouse
- StyleContemporary
- StatusActive
Amenities
- UtilitiesCable Available, Electricity Available, High Speed Internet, Natural Gas Available, Sewer Connected, Water Available
- Parking Spaces2
- ParkingAttached, Garage, Side/Rear Entrance
Exterior
- Lot DescriptionLevel, Zero Lot Line
- WindowsDouble Pane Windows
- RoofComposition
- ConstructionConcrete
- FoundationSlab
Additional Information
- Days on Market50
Community Information
- Address1010-b Boulevard Se
- SubdivisionGrant Park
- CityAtlanta
- CountyFulton
- StateGA
- Zip Code30312
Interior
- Interior FeaturesDouble Vanity, High Ceilings, Separate Shower, Soaking Tub, Tile Bath, Walk-In Closet(s)
- AppliancesDishwasher, Disposal, Electric Water Heater, Microwave, Oven/Range (Combo), Refrigerator, Stainless Steel Appliance(s)
- HeatingElectric, Heat Pump
- CoolingCeiling Fan(s), Central Air, Electric
- FireplaceYes
- # of Fireplaces1
- FireplacesLiving Room
- StoriesTwo
School Information
- ElementaryParkside
- MiddleKing
- HighMH Jackson Jr
Listing Details
- Listing Provided Courtesy Of Avenue Realty, Inc.
Price Change History for 1010-b Boulevard Se, Atlanta, GA (MLS® #10575103)
| Date | Details | Price | Change |
|---|---|---|---|
| Active (from New) | – | – |
The data relating to real estate for sale on this web site comes in part from the Broker Reciprocity Program of Georgia MLS. Real estate listings held by brokerage firms other than Go Realty Of Georgia & Alabam are marked with the Broker Reciprocity logo and detailed information about them includes the name of the listing brokers.
The information being provided is for consumers' personal, non-commercial use and may not be used for any purpose other than to identify prospective properties consumers may be interested in purchasing. Information Deemed Reliable But Not Guaranteed.
The broker providing this data believes it to be correct, but advises interested parties to confirm them before relying on them in a purchase decision.
Copyright 2025 Georgia MLS. All rights reserved.
Listing information last updated on October 29th, 2025 at 9:01am CDT.

























































