Hi There! Is this Your First Time?
Did you know if you Register you have access to free search tools including the ability to save listings and property searches? Did you know that you can bypass the search altogether and have listings sent directly to your email address? Check out our how-to page for more info.
- Price$229,000
- Beds5
- Baths3
- SQ. Feet1,974
- Acres0.15
- Built1987
1104 To Lani Farm Road, Stone Mountain
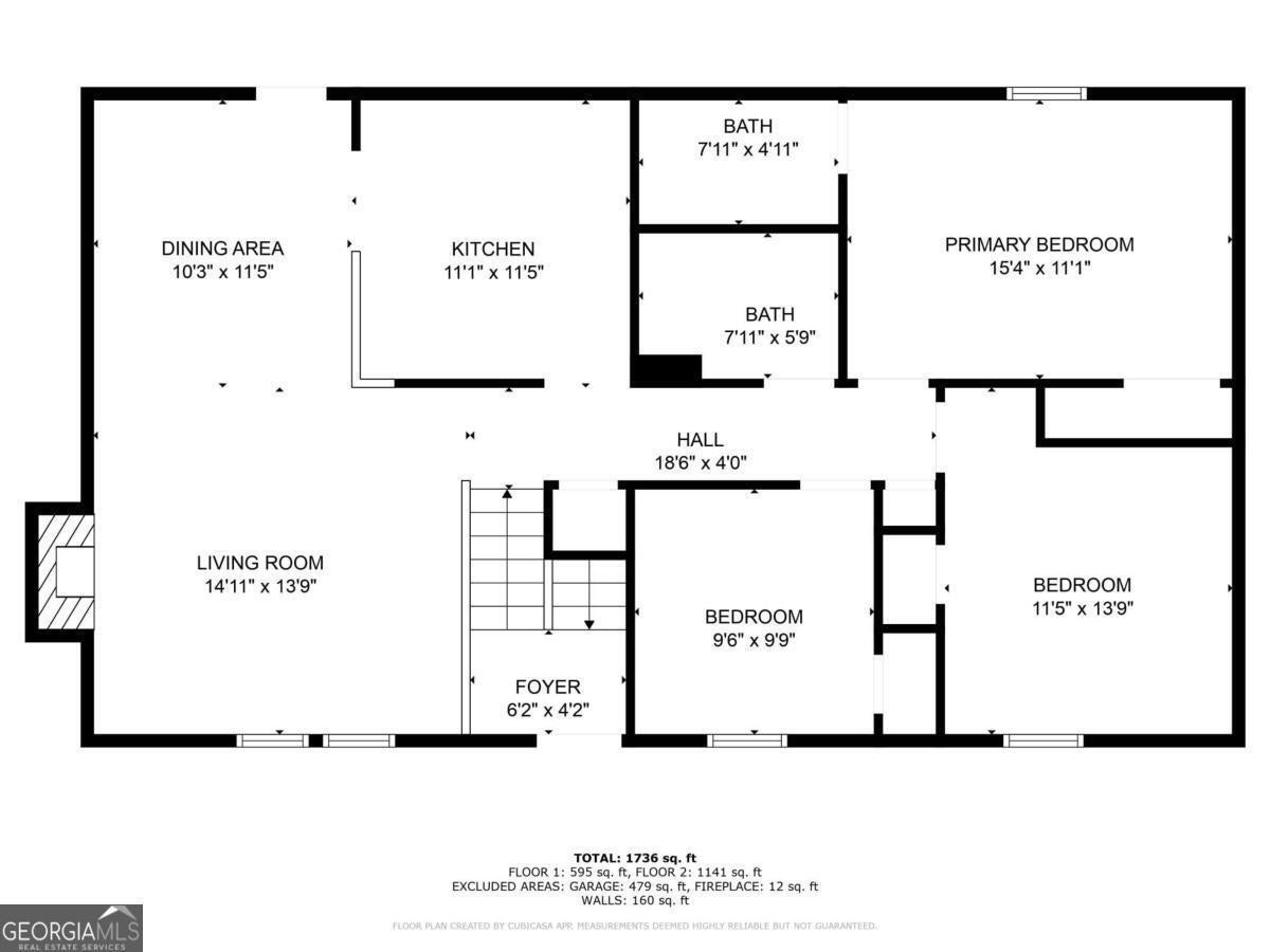
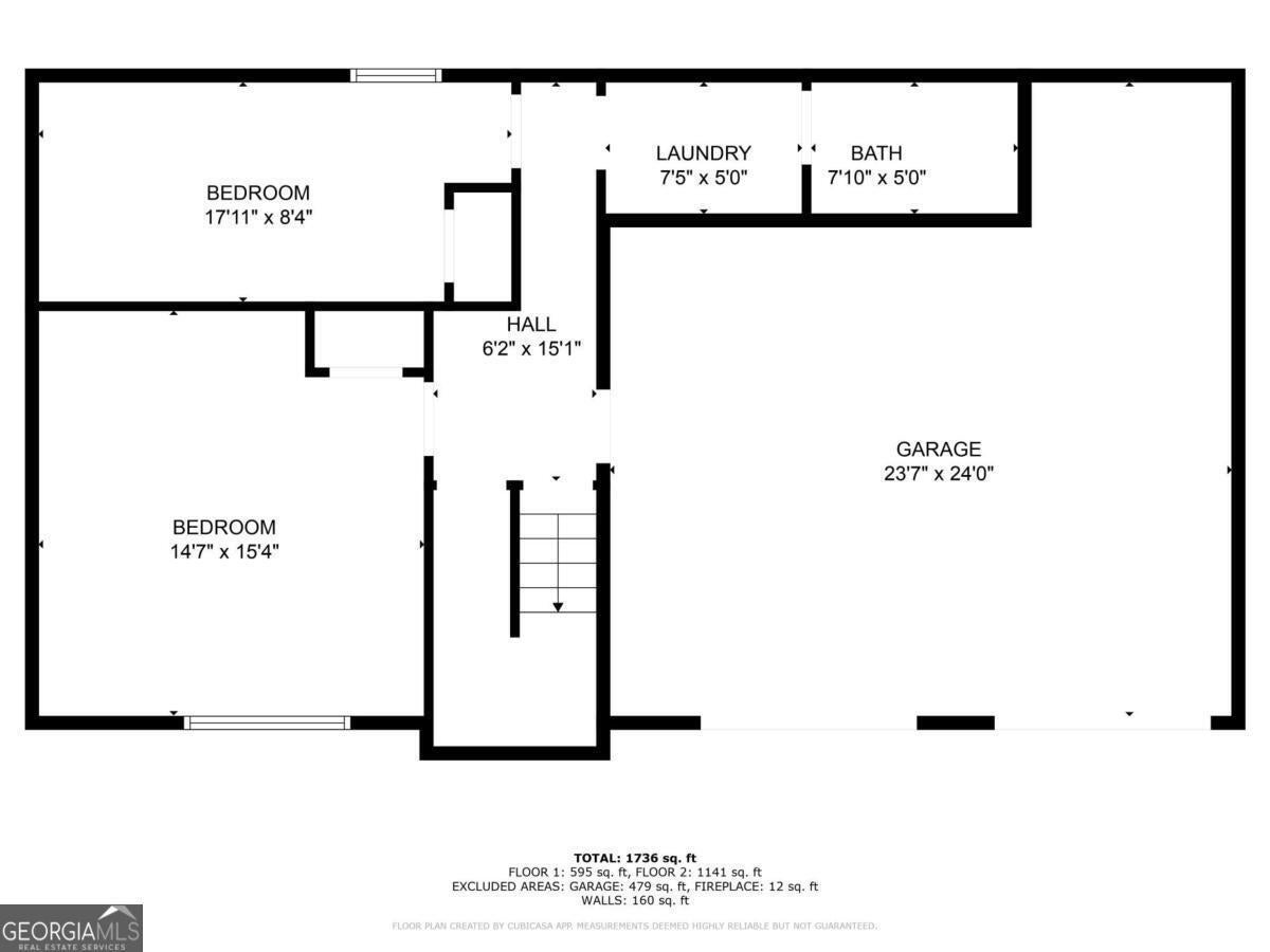
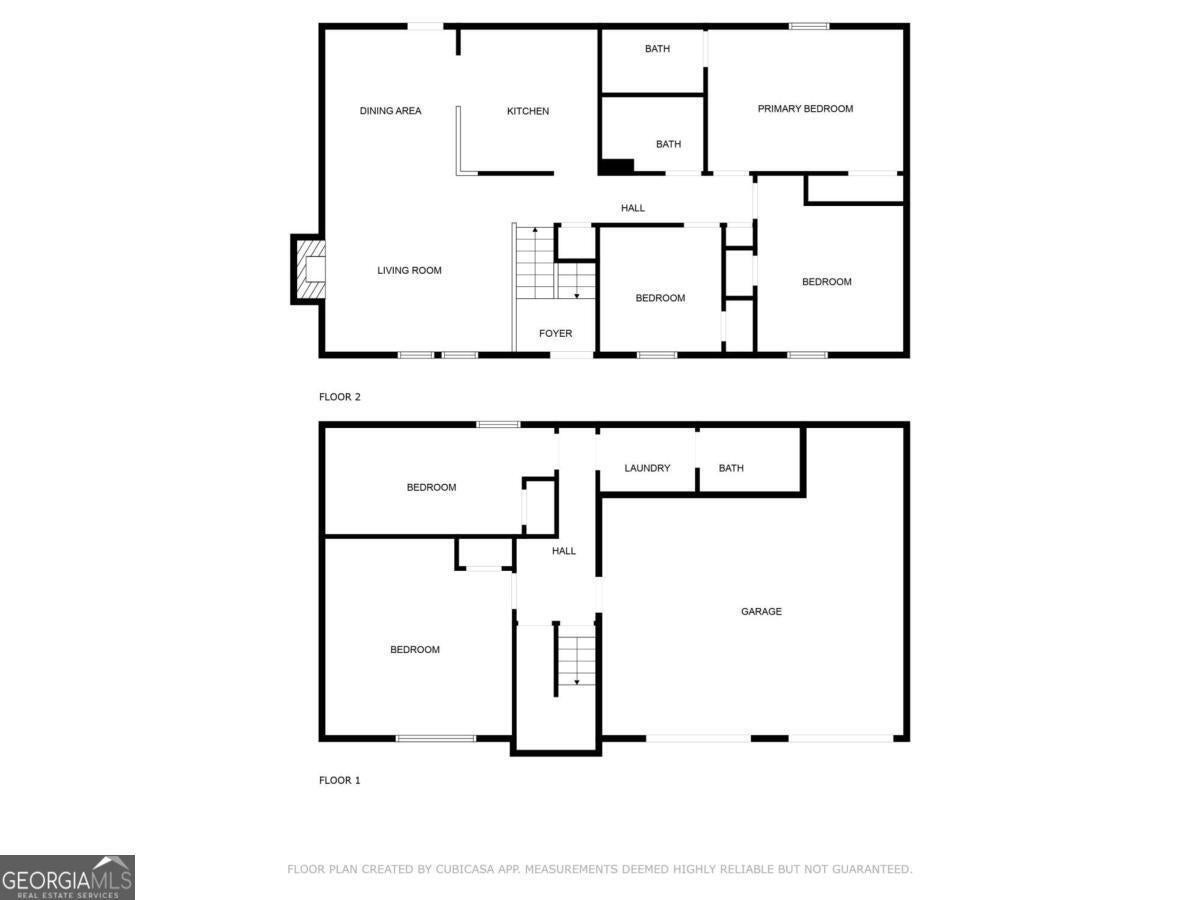
This spacious 5-bedroom, 3-bath split-level home offers flexible living across multiple levels - perfect for multigenerational families or those seeking room to grow. The open foyer leads to a large great room and family room, with a central fireplace adding warmth and charm. Tucked away on a private lot in the Crystal Lake community, you'll enjoy a quiet setting just minutes from major roads, public transportation, and shopping. With a built-in two-car garage, fenced yard, and back deck, this home delivers both function and comfort in a well-connected location.
Essential Information
- MLS® #10580193
- Price$229,000
- Bedrooms5
- Bathrooms3.00
- Full Baths3
- Square Footage1,974
- Acres0.15
- Year Built1987
- TypeResidential
- Sub-TypeSingle Family Residence
- StyleA-frame
- StatusUnder Contract
Amenities
- UtilitiesNone
- Parking Spaces2
- ParkingGarage
Exterior
- Lot DescriptionLevel
- RoofComposition
- ConstructionWood Siding
- FoundationSlab
Additional Information
- Days on Market179
Community Information
- Address1104 To Lani Farm Road
- SubdivisionNone
- CityStone Mountain
- CountyDeKalb
- StateGA
- Zip Code30083
Interior
- Interior FeaturesMaster On Main Level
- AppliancesDishwasher, Disposal, Gas Water Heater, Refrigerator
- HeatingNatural Gas
- CoolingCentral Air
- FireplaceYes
- # of Fireplaces1
- FireplacesGas Starter
- StoriesMulti/Split
School Information
- ElementaryAllgood
- MiddleFreedom
- HighClarkston
Listing Details
- Listing Provided Courtesy Of Mainstay Brokerage
Price Change History for 1104 To Lani Farm Road, Stone Mountain, GA (MLS® #10580193)
| Date | Details | Price | Change |
|---|---|---|---|
| Under Contract | – | – | |
| Active | – | – | |
| Price Change | – | – | |
| Price Reduced | $229,000 | $7,000 (2.97%) | |
| Active | – | – | |
| Show More (18) | |||
| Price Change | – | – | |
| Price Reduced | $236,000 | $5,000 (2.07%) | |
| Active | – | – | |
| Price Change | – | – | |
| Price Reduced | $241,000 | $7,000 (2.82%) | |
| Active | – | – | |
| Price Change | – | – | |
| Price Reduced | $248,000 | $8,000 (3.13%) | |
| Active | – | – | |
| Price Change | – | – | |
| Price Reduced | $256,000 | $11,000 (4.12%) | |
| Active | – | – | |
| Price Change | – | – | |
| Price Reduced | $267,000 | $7,000 (2.55%) | |
| Active | – | – | |
| Price Change | – | – | |
| Price Reduced (from $285,000) | $274,000 | $11,000 (3.86%) | |
| Active (from New) | – | – | |
The data relating to real estate for sale on this web site comes in part from the Broker Reciprocity Program of Georgia MLS. Real estate listings held by brokerage firms other than Go Realty Of Georgia & Alabam are marked with the Broker Reciprocity logo and detailed information about them includes the name of the listing brokers.
The information being provided is for consumers' personal, non-commercial use and may not be used for any purpose other than to identify prospective properties consumers may be interested in purchasing. Information Deemed Reliable But Not Guaranteed.
The broker providing this data believes it to be correct, but advises interested parties to confirm them before relying on them in a purchase decision.
Copyright 2026 Georgia MLS. All rights reserved.
Listing information last updated on March 14th, 2026 at 3:15pm CDT.










































