Hi There! Is this Your First Time?
Did you know if you Register you have access to free search tools including the ability to save listings and property searches? Did you know that you can bypass the search altogether and have listings sent directly to your email address? Check out our how-to page for more info.
- Price$1,530,000
- Acres1.07
- Built2008
29 Southern Court, Hiram
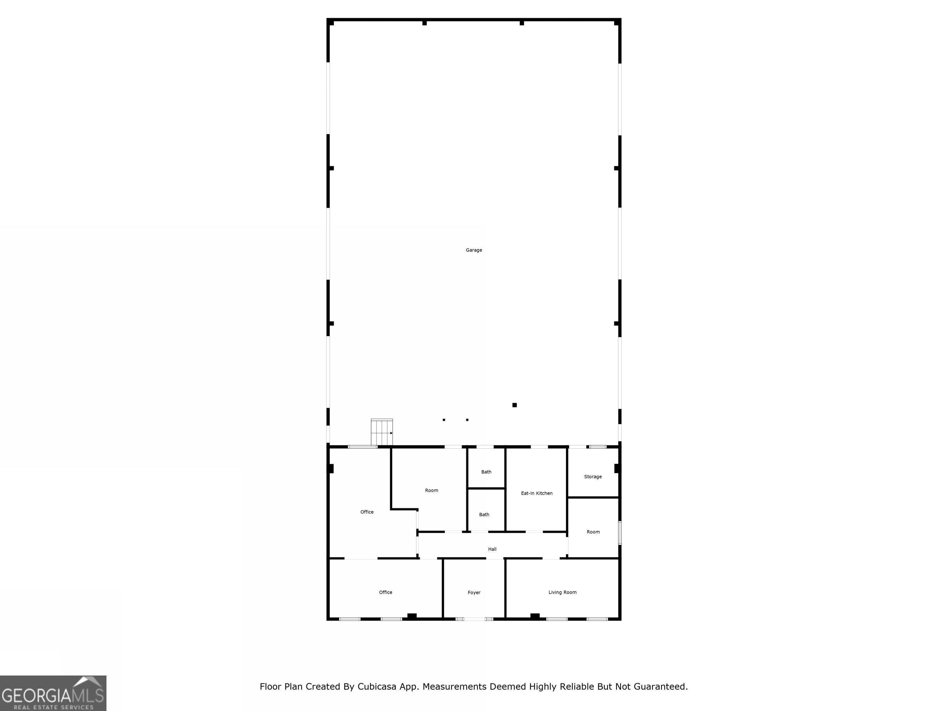
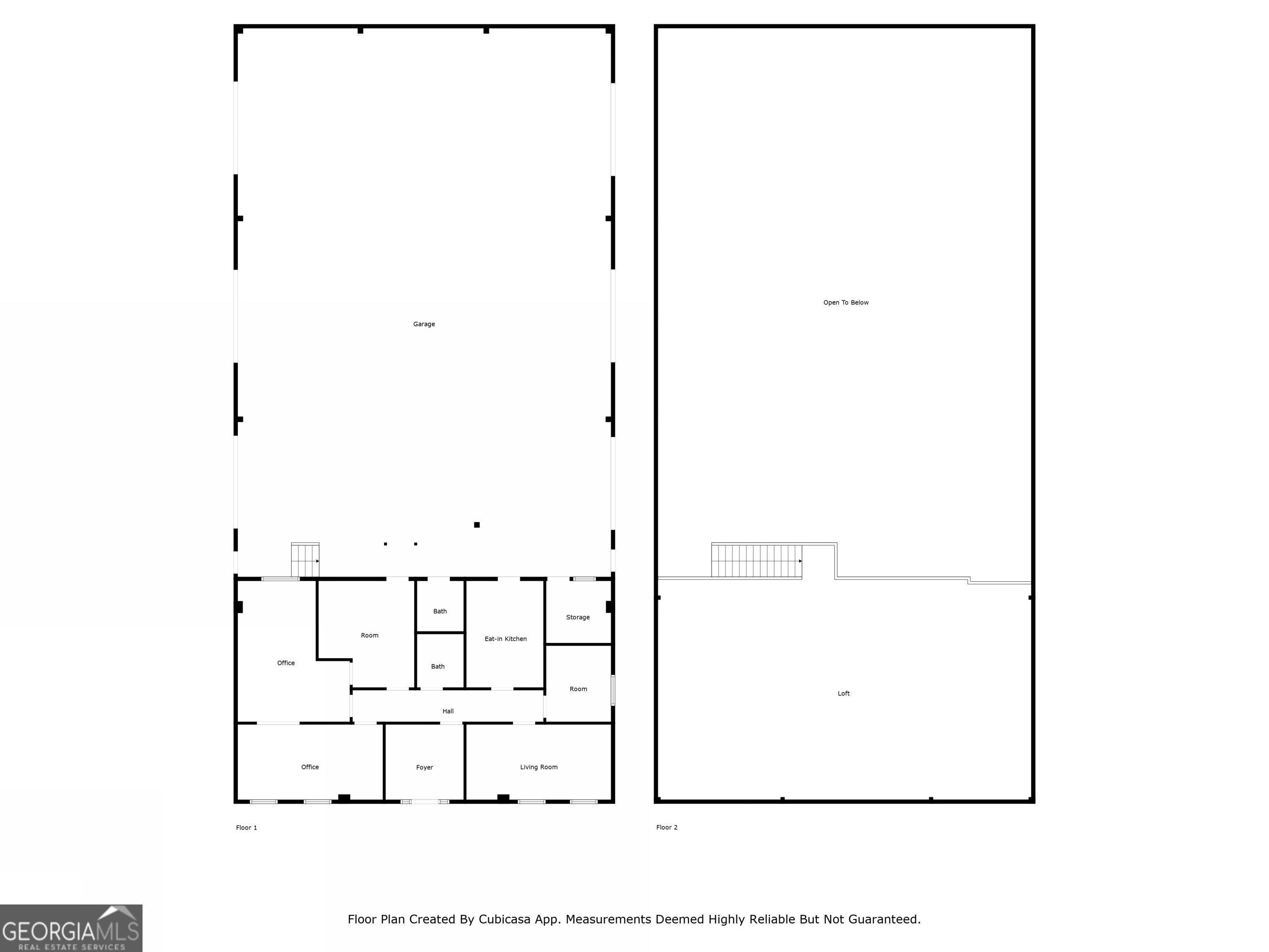
Amazing opportunity to own a rare commercial space in a great location! This property boasts several offices, a reception area, kitchen, bathroom, conference room, and a huge garage area. All flat work including driveway parking and shop space is industrial spec base. 10 inch 5000 psi concrete with fiber and rebar and wire mesh. Eve height is 16 feet and six rollup doors three on front and three on back, positioned to drive-through from front to rear. Rear yard is fenced in. Parking area for trucks or cars behind the building as well as guest parking out front. This property has numerous income possibilities for multiple businesses, allowing you to run your own business and no longer pay rent. Direct route to the airport and close to downtown Atlanta. Call today for a personal tour!
Essential Information
- MLS® #10580845
- Price$1,530,000
- Bathrooms0.00
- Acres1.07
- Year Built2008
- TypeCommercial Sale
- StatusActive
Amenities
- UtilitiesCable Available, Phone Available, Water Available
- Parking Spaces10
- ParkingCovered
Exterior
- Lot DescriptionBusiness Park, Industrial Park
- RoofOther
- ConstructionOther
Listing Details
- Listing Provided Courtesy Of Re/max Around Atlanta
Community Information
- Address29 Southern Court
- SubdivisionNone
- CityHiram
- CountyPaulding
- StateGA
- Zip Code30141
Interior
- HeatingOther
- CoolingCentral Air
Additional Information
- Days on Market91
- ZoningI-10 Industrial
Price Change History for 29 Southern Court, Hiram, GA (MLS® #10580845)
| Date | Details | Price | Change |
|---|---|---|---|
| Active (from New) | – | – |
The data relating to real estate for sale on this web site comes in part from the Broker Reciprocity Program of Georgia MLS. Real estate listings held by brokerage firms other than Go Realty Of Georgia & Alabam are marked with the Broker Reciprocity logo and detailed information about them includes the name of the listing brokers.
The information being provided is for consumers' personal, non-commercial use and may not be used for any purpose other than to identify prospective properties consumers may be interested in purchasing. Information Deemed Reliable But Not Guaranteed.
The broker providing this data believes it to be correct, but advises interested parties to confirm them before relying on them in a purchase decision.
Copyright 2025 Georgia MLS. All rights reserved.
Listing information last updated on December 25th, 2025 at 9:45pm CST.

































































