Hi There! Is this Your First Time?
Did you know if you Register you have access to free search tools including the ability to save listings and property searches? Did you know that you can bypass the search altogether and have listings sent directly to your email address? Check out our how-to page for more info.
- Price$1,835
- Beds4
- Baths3
- SQ. Feet2,421
- Acres0.23
- Built2019
243 Augusta Woods Drive, Villa Rica
Looking for your dream home? Through our seamless leasing process, this beautifully designed home is move-in ready. Our spacious layout is perfect for comfortable living that you can enjoy with your pets too; we're proud to be pet friendly. Our homes are built using high-quality, eco-friendly materials with neutral paint colors, updated fixtures, and energy-efficient appliances. Enjoy the backyard and community to unwind after a long day, or simply greet neighbors, enjoy the fresh air, and gather for fun-filled activities. Ready to make your next move your best move? Apply now. Take a tour today. We'll never ask you to wire money or request funds through a payment app via mobile. The fixtures and finishes of this property may differ slightly from what is pictured.
Essential Information
- MLS® #10581850
- Price$1,835
- Bedrooms4
- Bathrooms3.00
- Full Baths2
- Half Baths1
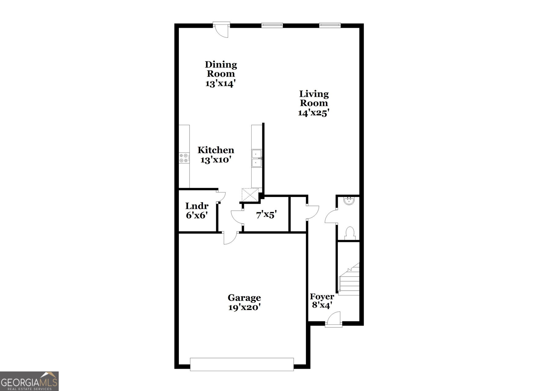
- Square Footage2,421
- Acres0.23
- Year Built2019
- TypeResidential Lease
- Sub-TypeSingle Family Residence
- StyleTraditional
- StatusActive
Amenities
- UtilitiesOther
- ParkingGarage, Attached
Exterior
- Lot DescriptionOther
- RoofComposition
- ConstructionVinyl Siding, Brick
Additional Information
- Days on Market88
Community Information
- Address243 Augusta Woods Drive
- SubdivisionAUGUSTA WOODS
- CityVilla Rica
- CountyCarroll
- StateGA
- Zip Code30180
Interior
- Interior FeaturesOther
- AppliancesRefrigerator
- HeatingOther
- CoolingOther
- StoriesTwo
School Information
- ElementaryIthica
- MiddleBay Springs
- HighVilla Rica
Listing Details
- Listing Provided Courtesy Of Main Street Renewal Llc
- Office Info855-206-8983
Price Change History for 243 Augusta Woods Drive, Villa Rica, GA (MLS® #10581850)
| Date | Details | Price | Change |
|---|---|---|---|
| Active | – | – | |
| Price Change | – | – | |
| Price Reduced | $1,835 | $40 (2.13%) | |
| Active | – | – | |
| Price Change | – | – | |
| Show More (19) | |||
| Price Reduced | $1,875 | $100 (5.06%) | |
| Active | – | – | |
| Price Change | – | – | |
| Price Reduced | $1,975 | $25 (1.25%) | |
| Active | – | – | |
| Price Change | – | – | |
| Price Reduced | $2,000 | $25 (1.23%) | |
| Active | – | – | |
| Price Change | – | – | |
| Price Reduced | $2,025 | $50 (2.41%) | |
| Active | – | – | |
| Price Change | – | – | |
| Price Reduced | $2,075 | $25 (1.19%) | |
| Active | – | – | |
| Price Change | – | – | |
| Price Reduced | $2,100 | $50 (2.33%) | |
| Active | – | – | |
| Price Change (from New) | – | – | |
| Price Reduced (from $2,270) | $2,150 | $120 (5.29%) | |
The data relating to real estate for sale on this web site comes in part from the Broker Reciprocity Program of Georgia MLS. Real estate listings held by brokerage firms other than Go Realty Of Georgia & Alabam are marked with the Broker Reciprocity logo and detailed information about them includes the name of the listing brokers.
The information being provided is for consumers' personal, non-commercial use and may not be used for any purpose other than to identify prospective properties consumers may be interested in purchasing. Information Deemed Reliable But Not Guaranteed.
The broker providing this data believes it to be correct, but advises interested parties to confirm them before relying on them in a purchase decision.
Copyright 2025 Georgia MLS. All rights reserved.
Listing information last updated on November 10th, 2025 at 5:31pm CST.
















