Hi There! Is this Your First Time?
Did you know if you Register you have access to free search tools including the ability to save listings and property searches? Did you know that you can bypass the search altogether and have listings sent directly to your email address? Check out our how-to page for more info.
- Price$465,000
- Acres0.04
- Built2025
1060 Garland Drive 500, Bogart
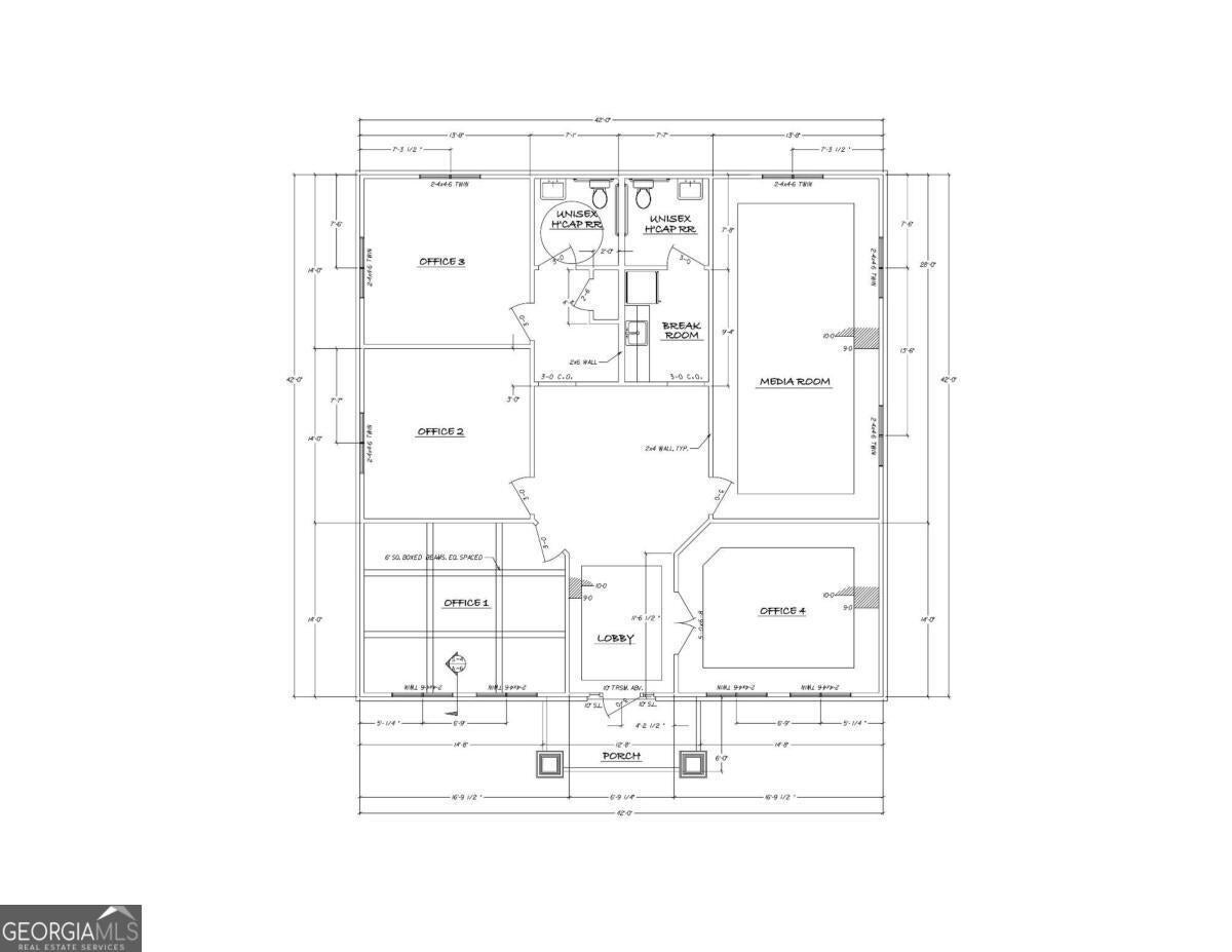
Coming in February 2026- A custom-designed office building featuring upscale interior finishes and brick and stacked stone exterior. This building offers approximately 1,769 square feet, including private offices, a conference room, restrooms, and a kitchenette-ideal for a variety of professional uses. Strategically located in the heart of Oconee County-one of Georgia's fastest-growing business hubs- this property provides convenient access to both Athens and Atlanta, making it an excellent opportunity for investors or owner-occupants alike. Note: Seller is a licensed real estate broker in the state of Georgia. Location Description: Located on Highway 78, just minutes away from Hwy 53 and Hwy 316, this property is convenient to both Athens and Atlanta. Downtown Atlanta is less than 60 miles away, and downtown Athens and The University of Georgia are only 12 miles from the property. This property is minutes from The Georgia Club, Lane Creek Golf Club, and Oconee County Parks. There are seven schools within a 5-minute radius, and the shopping and dining in the Epps Bridge are only 10 minutes away.
Essential Information
- MLS® #10582016
- Price$465,000
- Bathrooms0.00
- Acres0.04
- Year Built2025
- TypeCommercial Sale
- StatusActive
Amenities
- UtilitiesCable Available, Electricity Available, Phone Available, Sewer Available, Water Available
- Parking Spaces5
- ParkingParking Lot, Paved
Exterior
- Lot DescriptionBusiness Park
- RoofComposition
- ConstructionBrick
Listing Details
- Listing Provided Courtesy Of Nai Elrod Group
Community Information
- Address1060 Garland Drive 500
- SubdivisionBeacon Pointe
- CityBogart
- CountyOconee
- StateGA
- Zip Code30622
Interior
- HeatingCentral, Electric
- CoolingCentral Air, Electric
Additional Information
- Days on Market14
- ZoningO-I-P
Price Change History for 1060 Garland Drive 500, Bogart, GA (MLS® #10582016)
| Date | Details | Price | Change |
|---|---|---|---|
| Active (from New) | – | – |
The data relating to real estate for sale on this web site comes in part from the Broker Reciprocity Program of Georgia MLS. Real estate listings held by brokerage firms other than Go Realty Of Georgia & Alabam are marked with the Broker Reciprocity logo and detailed information about them includes the name of the listing brokers.
The information being provided is for consumers' personal, non-commercial use and may not be used for any purpose other than to identify prospective properties consumers may be interested in purchasing. Information Deemed Reliable But Not Guaranteed.
The broker providing this data believes it to be correct, but advises interested parties to confirm them before relying on them in a purchase decision.
Copyright 2025 Georgia MLS. All rights reserved.
Listing information last updated on October 25th, 2025 at 4:45am CDT.





















