Hi There! Is this Your First Time?
Did you know if you Register you have access to free search tools including the ability to save listings and property searches? Did you know that you can bypass the search altogether and have listings sent directly to your email address? Check out our how-to page for more info.
- Price$312,500
- Beds3
- Baths2
- SQ. Feet1,693
- Acres0.66
- Built2025
310 Parkersburg Lane 50, Statesboro
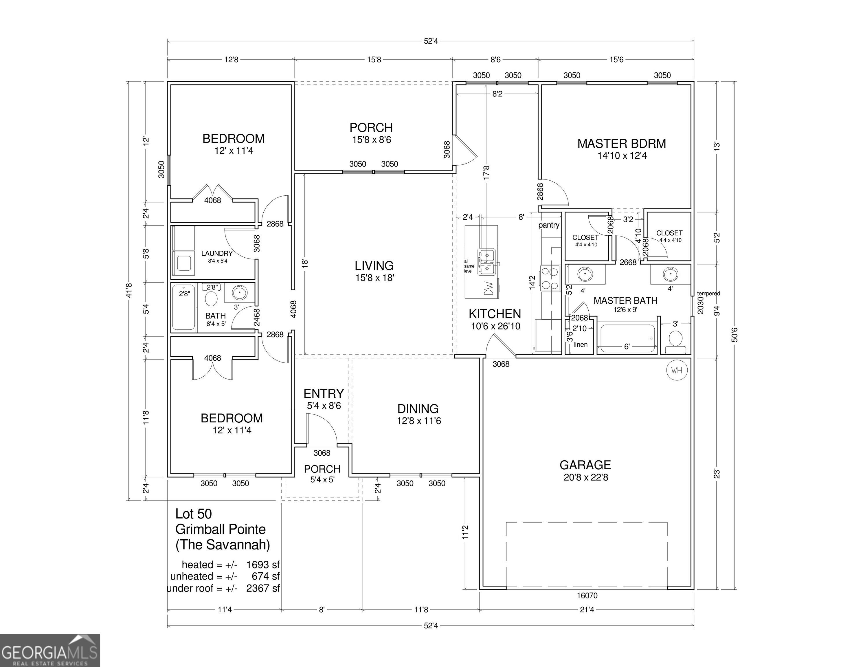
Call Today to see this SPECTACULAR SAVANNAH Plan in Statesboro's most sought after new residential neighborhood-GRIMBALL POINTE!! Dont' Miss our Builders Incentive $8000!! This home checks ALL the Boxes! Designed for Comfort & Built with Quality by LOCAL Builder NeSmith Construction Company! This Stunning 3 BR/2 BA design w/ lofty 9' Ceiling Throughout, Full Brick Skirting, Large Covered Back Porch, .66 acre lot, Bright Kitchen, Sleek Granite Kitchen Counter tops, HUGE island/bar top seating, Breakfast Nook, Pantry, & Formal DR/flex space. Private owners suite w/TWO walk-in closets, Double Vanities, & luxurious 72" Tub/Shower combo w/ Tile surround. Plus, Two Large Bedrooms w/ hall bath with Double Vanities & Tub/Shower Combo. LVP FLOORING IN ALL COMMON AREAS! Highly sought after SOUTHEAST BULLOCH SCHOOLS! Energy efficient homes include architectural shingles, energy efficient systems, low-e windows, & a full one-year warranty included! Call today to Make this your Home Sweet Home! Plans/specs subject to and will change at builder discretion. One time $600 mailbox fee paid by buyer. $250 HOA/annually.
Essential Information
- MLS® #10585592
- Price$312,500
- Bedrooms3
- Bathrooms2.00
- Full Baths2
- Square Footage1,693
- Acres0.66
- Year Built2025
- TypeResidential
- Sub-TypeSingle Family Residence
- StyleRanch
- StatusActive
Amenities
- UtilitiesSewer Connected, Underground Utilities
- ParkingGarage, Garage Door Opener, Kitchen Level
Exterior
- Lot DescriptionLevel, Open Lot
- RoofComposition
- ConstructionVinyl Siding
- FoundationSlab
Additional Information
- Days on Market89
Community Information
- Address310 Parkersburg Lane 50
- SubdivisionGrimball Pointe
- CityStatesboro
- CountyBulloch
- StateGA
- Zip Code30458
Interior
- Interior FeaturesMaster On Main Level, Pulldown Attic Stairs
- AppliancesDishwasher, Electric Water Heater, Microwave, Oven/Range (Combo), Stainless Steel Appliance(s)
- HeatingElectric, Heat Pump
- CoolingElectric, Heat Pump
- StoriesOne
School Information
- ElementaryNevils
- MiddleSoutheast Bulloch
- HighSoutheast Bulloch
Listing Details
- Listing Provided Courtesy Of Coldwell Banker Conner Realty
Price Change History for 310 Parkersburg Lane 50, Statesboro, GA (MLS® #10585592)
| Date | Details | Price | Change |
|---|---|---|---|
| Active (from New) | – | – |
The data relating to real estate for sale on this web site comes in part from the Broker Reciprocity Program of Georgia MLS. Real estate listings held by brokerage firms other than Go Realty Of Georgia & Alabam are marked with the Broker Reciprocity logo and detailed information about them includes the name of the listing brokers.
The information being provided is for consumers' personal, non-commercial use and may not be used for any purpose other than to identify prospective properties consumers may be interested in purchasing. Information Deemed Reliable But Not Guaranteed.
The broker providing this data believes it to be correct, but advises interested parties to confirm them before relying on them in a purchase decision.
Copyright 2025 Georgia MLS. All rights reserved.
Listing information last updated on November 15th, 2025 at 6:46am CST.




















