Hi There! Is this Your First Time?
Did you know if you Register you have access to free search tools including the ability to save listings and property searches? Did you know that you can bypass the search altogether and have listings sent directly to your email address? Check out our how-to page for more info.
- Price$695,000
- Beds3
- Baths3
- SQ. Feet3,000
- Acres19.00
- Built2004
19 Acres 6536 Luthersville Road 19 Acres, Gay
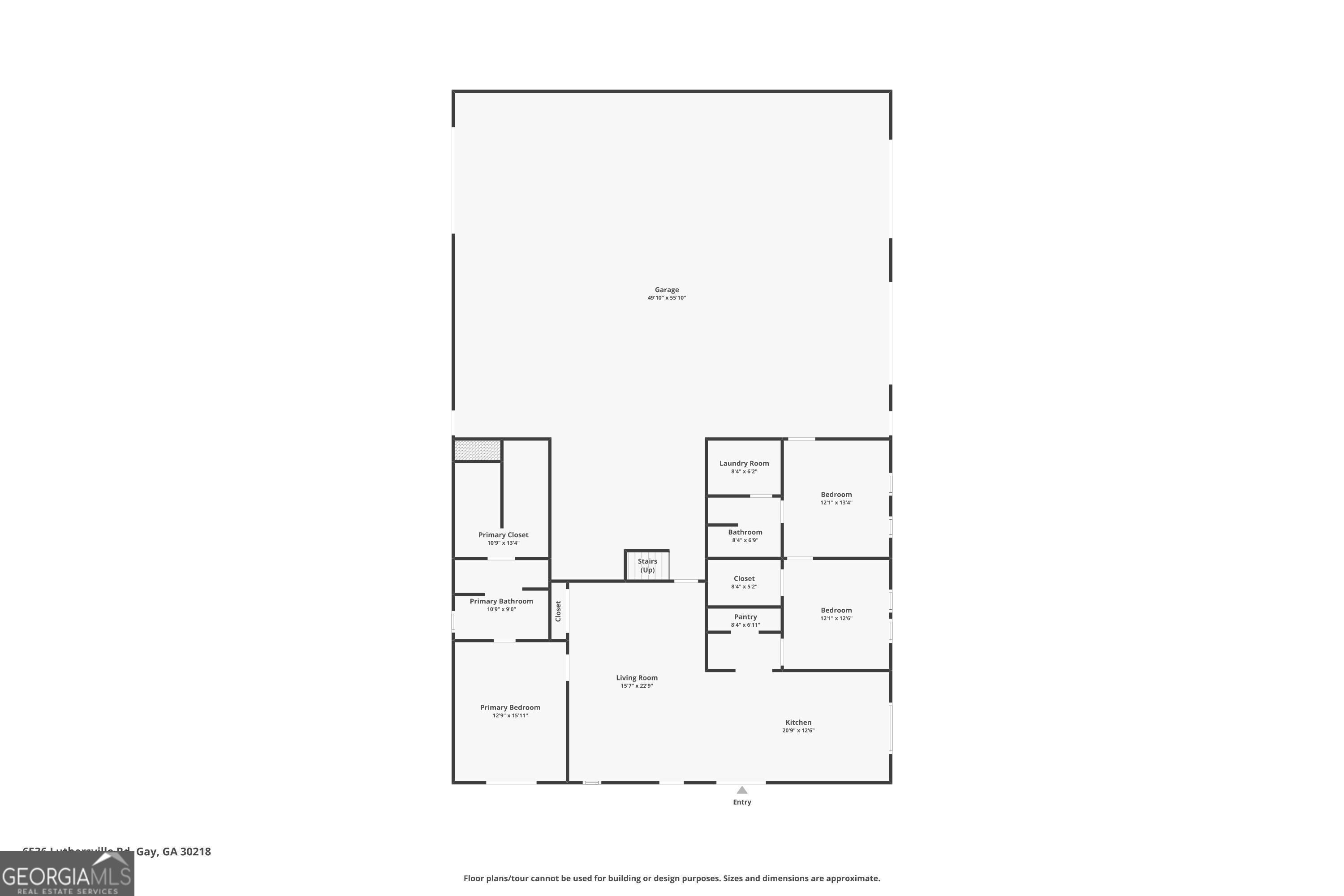
Welcome to a one-of-a-kind opportunity to own a beautifully built, steel-framed custom home set on 19 pristine acres. Featuring peach trees, plum trees, fig trees, apple trees, blueberry bushes and muscadine vine. This 3-bedroom, 3-bath property offers privacy, durability, and exceptional value, with a spring-fed lake, two shops, and income potential. Step inside to find solid oak cabinets, 9 ft ceilings, and spacious, thoughtfully designed living areas. The home features premium construction throughout - including 8x12 steel beams buried 7inch into the concert slab (9-inch in the shop), spray foam insulation in all walls. Outdoors, enjoy a spring-fed lake stocked with catfish and bream that has never run dry. Two large electric roll up shop doors (14 ft on the home and 12 ft on the second shop) offer ample covered parking for boats, equipment, or RVs. The property includes full 50amp RV hookups (power and water) for up to 5 campers. Built to withstand 162 mph winds, this home is as strong as it is beautiful. It features reclaimed bricks sourced from the historic Studebaker factory in Atlanta, and both the home and shops are wired for a generator. Appliances including the washer, dryer, and refrigerators (in both the kitchen and garage) are included. Call today for a private tour! Option to purchase cell phone tower lease available. The property also benefits from an existing 30-year land lease for an AT&T tower offering a rare passive income stream of potentially over 300,000 at the end of its contract period.
Essential Information
- MLS® #10586178
- Price$695,000
- Bedrooms3
- Bathrooms3.00
- Full Baths3
- Square Footage3,000
- Acres19.00
- Year Built2004
- TypeResidential
- Sub-TypeSingle Family Residence
- StyleBrick 4 Side
- StatusActive
Amenities
- UtilitiesCable Available, Electricity Available
- ParkingGarage, Garage Door Opener, Kitchen Level, Parking Pad, RV/Boat Parking, Side/Rear Entrance, Storage
- ViewSeasonal View
Exterior
- Lot DescriptionPasture
- RoofMetal
- ConstructionBrick
- FoundationSlab
Additional Information
- Days on Market82
Community Information
- Address19 Acres 6536 Luthersville Road 19 Acres
- SubdivisionNone
- CityGay
- CountyMeriwether
- StateGA
- Zip Code30218
Interior
- Interior FeaturesDouble Vanity, In-Law Floorplan, Master On Main Level, Separate Shower, Split Bedroom Plan, Tile Bath, Walk-In Closet(s), Central Vacuum
- AppliancesCooktop, Dishwasher, Stainless Steel Appliance(s), Double Oven
- HeatingCentral, Heat Pump
- CoolingCeiling Fan(s), Central Air, Heat Pump
- FireplaceYes
- # of Fireplaces1
- FireplacesWood Burning Stove
- StoriesTwo
School Information
- ElementaryOther
- MiddleOther
- HighOther
Listing Details
- Listing Provided Courtesy Of Go Realty
Price Change History for 19 Acres 6536 Luthersville Road 19 Acres, Gay, GA (MLS® #10586178)
| Date | Details | Price | Change |
|---|---|---|---|
| Active (from New) | – | – |
The data relating to real estate for sale on this web site comes in part from the Broker Reciprocity Program of Georgia MLS. Real estate listings held by brokerage firms other than Go Realty Of Georgia & Alabam are marked with the Broker Reciprocity logo and detailed information about them includes the name of the listing brokers.
The information being provided is for consumers' personal, non-commercial use and may not be used for any purpose other than to identify prospective properties consumers may be interested in purchasing. Information Deemed Reliable But Not Guaranteed.
The broker providing this data believes it to be correct, but advises interested parties to confirm them before relying on them in a purchase decision.
Copyright 2025 Georgia MLS. All rights reserved.
Listing information last updated on December 3rd, 2025 at 1:31pm CST.























































































