Hi There! Is this Your First Time?
Did you know if you Register you have access to free search tools including the ability to save listings and property searches? Did you know that you can bypass the search altogether and have listings sent directly to your email address? Check out our how-to page for more info.
- Price$1,366,831
- Beds3
- Baths3
- Acres1.93
- Built2025
455a Bates Road, Cartersville
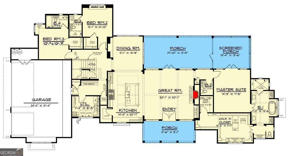
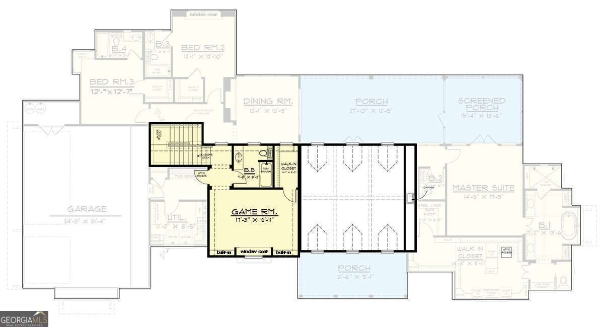
Build this home on this lot to your own specifications. Stunning 3-Bedroom Modern Farmhouse with Game Room & 3-Car Garage - 3,156 Sq Ft. Enjoy the best of both worlds - tucked away in the tranquil, wooded enclave of Bates Road, Cartersville, yet just minutes from I-75 for effortless access to shopping, schools, and Lake Allatoona. Nestled in one of Bartow County's premier neighborhoods, this property offers rare privacy, spacious acreage, and coveted southern charm. Plus, you're close to Cartersville's finest cultural destinations, including Smithsonian-affiliate museums, scenic parks, and a vibrant community lifestyle. Step inside and fall in love with this architecturally stunning modern farmhouse, where timeless style meets today's most sought-after features. From the charming board-and-batten siding to the welcoming centered French doors, this home radiates curb appeal before you even step inside. Once through the door, you're greeted by soaring vaulted ceilings in the great room, anchored by a grand fireplace flanked with custom built-ins. The space flows effortlessly into the gourmet kitchen - featuring a massive island with seating, walk-in pantry, and an adjacent formal dining room ready for your next dinner party. The private owner's suite is a retreat of its own with a luxurious spa bath, huge walk-in closet, and a hidden steel-lined safe room for peace of mind. Step out to the screened porch for your morning coffee and enjoy the serenity. On the opposite side of the home, two spacious bedrooms each offer their own en-suite baths, walk-in closets, and cozy window seats. Upstairs, a versatile game room with full bath and closet can easily serve as a fourth bedroom, media lounge, or home office. A 3-car garage with separate bays ensures plenty of room for vehicles, tools, and toys. Location Highlights - Bates Rd, Cartersville, GA. Premier Address in Bartow County Bates Road is widely regarded as one of the area's most desirable locales. The properties here often sit on spacious, wooded lots-sometimes 2 acres or more-making it perfect for a private, custom-built home. Peaceful, Friendly Community. It's a quiet, residential street known for its well-maintained homes and strong sense of neighborhood. The community is a mix of families and retirees, with about 82% homeownership, and an average resident age of 58. Convenient Access, Serene Setting. Easy access to I-75 means you're just minutes away from commuting routes, shopping, schools, and Lake Allatoona-yet tucked away in peaceful wooded surroundings. Cultural & Recreational Access Nearby. Cartersville offers standout cultural attractions like the Booth Western Art Museum and the Tellus Science Museum-both Smithsonian affiliates-as well as historic sites and museums throughout Bartow County. This is more than a home - it's a lifestyle upgrade waiting to happen. Homes like this don't come along often... and when they do, they go fast.
Essential Information
- MLS® #10586265
- Price$1,366,831
- Bedrooms3
- Bathrooms3.00
- Full Baths2
- Half Baths1
- Acres1.93
- Year Built2025
- TypeResidential
- Sub-TypeSingle Family Residence
- StyleRanch
- StatusActive
Amenities
- UtilitiesElectricity Available, Sewer Available, Water Available
- Parking Spaces3
- ParkingGarage, Garage Door Opener, Kitchen Level
- ViewSeasonal View
Exterior
- Lot DescriptionSloped
- WindowsDouble Pane Windows
- RoofComposition
- ConstructionConcrete
Additional Information
- Days on Market82
Community Information
- Address455a Bates Road
- SubdivisionNone
- CityCartersville
- CountyBartow
- StateGA
- Zip Code30120
Interior
- Interior FeaturesBeamed Ceilings, Double Vanity, High Ceilings, Master On Main Level, Split Bedroom Plan
- AppliancesDishwasher, Microwave
- HeatingCentral, Electric, Heat Pump
- CoolingCeiling Fan(s), Central Air, Electric, Heat Pump, Zoned
- FireplaceYes
- # of Fireplaces1
- FireplacesFactory Built, Family Room
- StoriesOne and One Half
School Information
- ElementaryEmerson
- MiddleSouth Central
- HighWoodland
Listing Details
- Listing Provided Courtesy Of Keller Williams Northwest
Price Change History for 455a Bates Road, Cartersville, GA (MLS® #10586265)
| Date | Details | Price | Change |
|---|---|---|---|
| Active (from New) | – | – |
The data relating to real estate for sale on this web site comes in part from the Broker Reciprocity Program of Georgia MLS. Real estate listings held by brokerage firms other than Go Realty Of Georgia & Alabam are marked with the Broker Reciprocity logo and detailed information about them includes the name of the listing brokers.
The information being provided is for consumers' personal, non-commercial use and may not be used for any purpose other than to identify prospective properties consumers may be interested in purchasing. Information Deemed Reliable But Not Guaranteed.
The broker providing this data believes it to be correct, but advises interested parties to confirm them before relying on them in a purchase decision.
Copyright 2025 Georgia MLS. All rights reserved.
Listing information last updated on December 18th, 2025 at 3:16pm CST.













