Hi There! Is this Your First Time?

Did you know if you Register you have access to free search tools including the ability to save listings and property searches? Did you know that you can bypass the search altogether and have listings sent directly to your email address? Check out our how-to page for more info.

  • Price$2,200,000
  • Acres2.58
  • Built2008

55 Alston Court, Forest Park

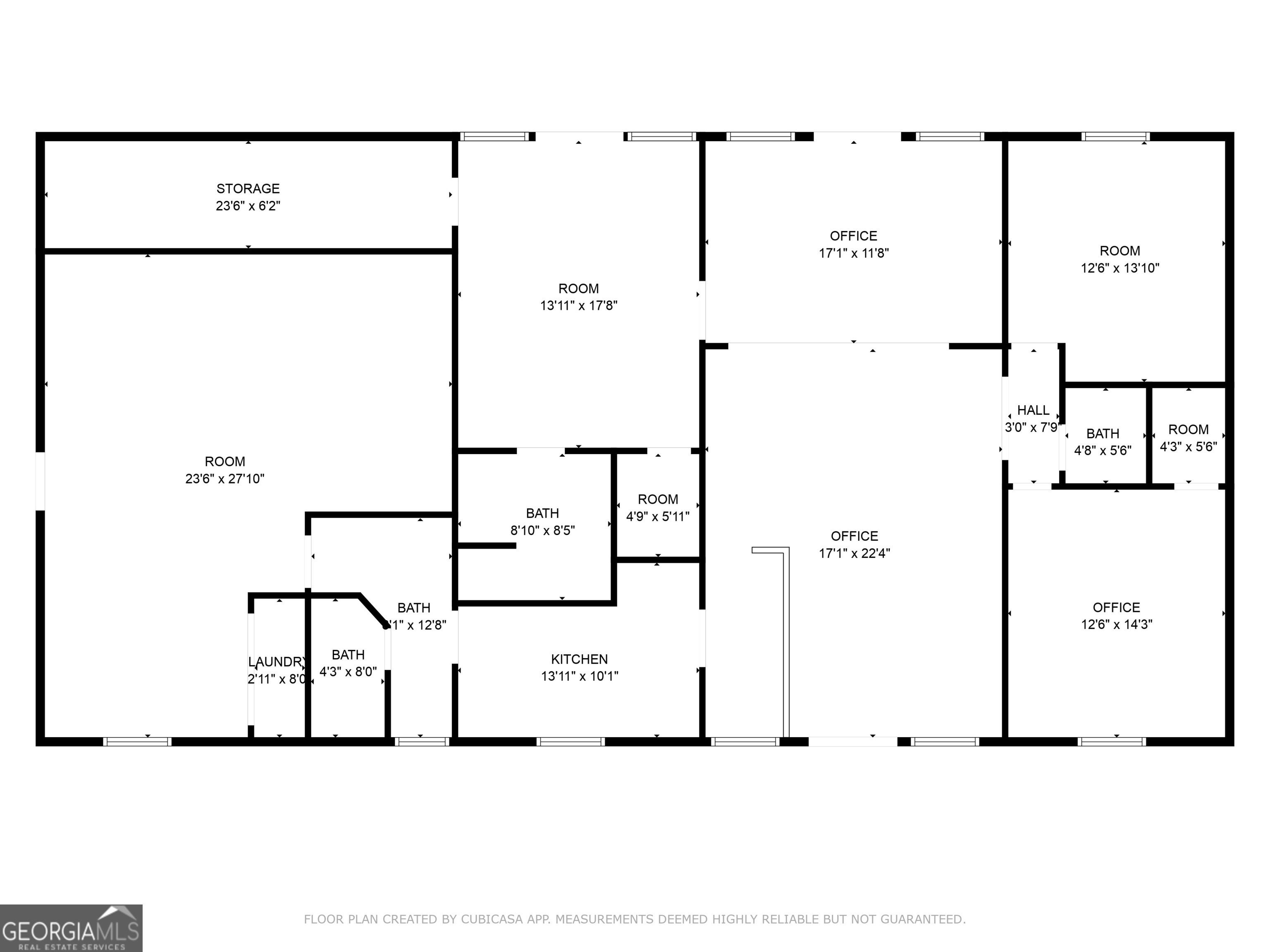
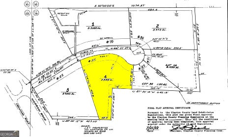
Situated in the heart of South 75 Park, this 2.5-acre trucking lot offers prime access to major transportation routes, including I-75, I-85, I-285, and the Atlanta Airport, all just minutes away. Zoned for Heavy Industrial use, the property is ideal for a variety of industrial applications such as distribution centers, construction supply hubs, utility companies, truck space rentals, truck or bus supply yards, and heavy equipment rental or storage. The property includes a 2,380 sq. ft. single-level, 4-sided brick office building designed for business efficiency. It is equipped to accommodate up to seven offices, along with a general work area, three bathrooms, a full kitchen, laundry facilities, and a large training room. The building also features a front porch, two back porches, and a separate entrance to the training room, offering potential for multi-tenant use. Additionally, the office can serve as a place for overnight stays when working extended hours. The expansive lot includes three designated areas for tractor-trailer and truck parking, making it ideal for truck yard rentals. The yard is fully fenced and includes both a paved section and a gravel area, with a double pass-through entrance providing easy access and circulation for large vehicles. Currently an operating trucking business, this property is shown by appointment only and presents a unique opportunity for businesses seeking a flexible, well-located industrial site in the Atlanta area.

Essential Information

  • MLS® #10591142
  • Price$2,200,000
  • Bathrooms0.00
  • Acres2.58
  • Year Built2008
  • TypeCommercial Sale
  • StatusActive

Amenities

  • UtilitiesElectricity Available, High Speed Internet, Sewer Available, Water Available
  • Parking Spaces50
  • ParkingPaved

Exterior

  • Lot DescriptionIndustrial Park, Level, Semi Turning Available, Interior Lot
  • RoofComposition
  • ConstructionBrick

Listing Details

  • Listing Provided Courtesy Of Bhhs Georgia Properties

Community Information

  • Address55 Alston Court
  • SubdivisionSouth 75 Park
  • CityForest Park
  • CountyClayton
  • StateGA
  • Zip Code30297

Interior

  • HeatingCentral, Electric, Forced Air
  • CoolingCentral Air, Electric

Additional Information

  • Days on Market3
  • ZoningHi-Heavy Industrial

Price Change History for 55 Alston Court, Forest Park, GA (MLS® #10591142)

Date Details Price Change
Active
Price Change (from New)
Price Increased (from $1,800,000) $2,200,000 $400,000 (22.22%)
Please provide a valid email address.

Georgia MLS Logo The data relating to real estate for sale on this web site comes in part from the Broker Reciprocity Program of Georgia MLS. Real estate listings held by brokerage firms other than Go Realty Of Georgia & Alabam are marked with the Broker Reciprocity logo and detailed information about them includes the name of the listing brokers.

The information being provided is for consumers' personal, non-commercial use and may not be used for any purpose other than to identify prospective properties consumers may be interested in purchasing. Information Deemed Reliable But Not Guaranteed.

The broker providing this data believes it to be correct, but advises interested parties to confirm them before relying on them in a purchase decision.

Copyright 2025 Georgia MLS. All rights reserved.

Listing information last updated on October 1st, 2025 at 8:16am CDT.