Hi There! Is this Your First Time?
Did you know if you Register you have access to free search tools including the ability to save listings and property searches? Did you know that you can bypass the search altogether and have listings sent directly to your email address? Check out our how-to page for more info.
- Price$1,390,000
- Beds5
- Baths6
- SQ. Feet4,171
- Acres2.59
- Built2025
242 Carriage Avenue, Jefferson
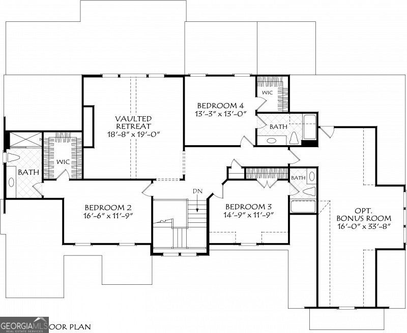
Welcome to The Manors, a prestigious and highly desirable gated community located within the acclaimed Jefferson City School district. Situated less than 10 minutes from I-85 and Highway 129, this custom-built home brings luxury to a whole new extreme, exemplifying exceptional craftsmanship and timeless design. Thoughtfully designed for both everyday living and elegant entertaining, the footprint of the home offers a spacious owner's suite on the main level with direct access to the covered patio.The luxurious primary bath includes separate walk-in closets, dual vanities, a soaking tub, and a zero-entry walk-in shower to suit accessibility needs. A private guest suite is also located on the main floor, along with an expansive open-concept kitchen with an oversized island and soaring 10-foot ceilings with an abundance of natural light creating a warm and inviting atmosphere throughout the living spaces. Upstairs, you'll find three generously-sized additional bedrooms, each with its own en-suite bath. A second level master suite is available for early buyers, offering an additional layer of comfort and flexibility. The oversized bonus room serves as a versatile retreat-perfect for an office, media room, or game area for family and guests. Set on a sprawling 2.59-acre lot, with an unfinished basement offering room for the imagination. Walk out from the basement into tranquility and an expansive greenspace with plenty of room for outdoor entertainment. Standout features include: EV chargers in the 3-car garage, spray-foam insulation, and Low-E Windows for energy efficiency. This home is adorned with opulent finishes and thoughtful details at every turn. From its stunning architectural elements to its functional layout, every inch has been carefully curated to blend sophistication with comfort. The possibilities are endless in this exceptional home-designed to elevate your lifestyle!
Essential Information
- MLS® #10591618
- Price$1,390,000
- Bedrooms5
- Bathrooms6.00
- Full Baths5
- Half Baths1
- Square Footage4,171
- Acres2.59
- Year Built2025
- TypeResidential
- Sub-TypeSingle Family Residence
- StyleColonial
- StatusActive
Amenities
- UtilitiesUnderground Utilities
- Parking Spaces5
- ParkingAttached, Garage Door Opener
Exterior
- Exterior FeaturesOther
- Lot DescriptionSloped
- WindowsDouble Pane Windows
- RoofComposition
- ConstructionConcrete
Additional Information
- Days on Market104
Community Information
- Address242 Carriage Avenue
- SubdivisionThe Manors
- CityJefferson
- CountyJackson
- StateGA
- Zip Code30549
Interior
- Interior FeaturesDouble Vanity, High Ceilings, Master On Main Level, Separate Shower, Soaking Tub, Split Bedroom Plan, Tile Bath, Tray Ceiling(s), Two Story Foyer, Split Foyer
- AppliancesDishwasher, Microwave, Oven/Range (Combo)
- HeatingNatural Gas, Floor Furnace
- CoolingCentral Air, Electric
- FireplaceYes
- # of Fireplaces1
- FireplacesOther
- StoriesTwo
School Information
- ElementaryJefferson
- MiddleJefferson
- HighJefferson
Listing Details
- Listing Provided Courtesy Of Coldwell Banker Upchurch Realty
Price Change History for 242 Carriage Avenue, Jefferson, GA (MLS® #10591618)
| Date | Details | Price | Change |
|---|---|---|---|
| Active (from New) | – | – |
The data relating to real estate for sale on this web site comes in part from the Broker Reciprocity Program of Georgia MLS. Real estate listings held by brokerage firms other than Go Realty Of Georgia & Alabam are marked with the Broker Reciprocity logo and detailed information about them includes the name of the listing brokers.
The information being provided is for consumers' personal, non-commercial use and may not be used for any purpose other than to identify prospective properties consumers may be interested in purchasing. Information Deemed Reliable But Not Guaranteed.
The broker providing this data believes it to be correct, but advises interested parties to confirm them before relying on them in a purchase decision.
Copyright 2025 Georgia MLS. All rights reserved.
Listing information last updated on December 24th, 2025 at 8:15am CST.


