Hi There! Is this Your First Time?
Did you know if you Register you have access to free search tools including the ability to save listings and property searches? Did you know that you can bypass the search altogether and have listings sent directly to your email address? Check out our how-to page for more info.
- Price$1,295,000
- Acres0.31
- Built2003
743 Church Street, Buford
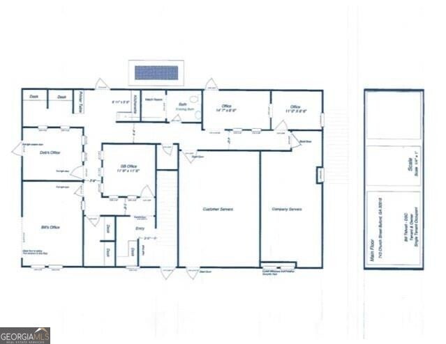
Here is a RARE opportunity to own commercial Real Estate in Downtown Buford! This 5,400 sq ft building is less than a minute from Buford HWY and slightly over a 1 mile radius of 985. Situated near downtown amenities and major highways. Features 12 offices (4 of which are executive), 2 conference rooms, restrooms on both floors, multiple storage rooms, kitchen and Break room! Building is equipped with unique upgrades such as : Upgraded Electrical System to 800 Amp service MANY additional HVAC systems to support server rooms (5 ton units and 2 ton Mitsubishi mini splits) Extensive overhead ladder system for electrical in server rooms 100KW Backup Power Generator (Generac) Natural Gas Fed 2 Separate Server Rooms - 1 with separate exterior entrance with keycode Fenced in rear yard Extensive Interior and Exterior camera system with 24x7 recording Alarm system with several different zones and multiple keypads for tenants Listing Agent must be present for all showings! Alarm is on at all times.
Essential Information
- MLS® #10596751
- Price$1,295,000
- Bathrooms0.00
- Acres0.31
- Year Built2003
- TypeCommercial Sale
- StatusActive
Amenities
- UtilitiesCable Available, Electricity Available, Natural Gas Available, Phone Available, Sewer Available, Underground Utilities, Water Available
- Parking Spaces12
- ParkingParking Lot
Exterior
- Lot DescriptionLevel
- RoofMetal
- ConstructionBrick
Listing Details
- Listing Provided Courtesy Of Re/max Legends
Community Information
- Address743 Church Street
- SubdivisionNone
- CityBuford
- CountyGwinnett
- StateGA
- Zip Code30518
Interior
- HeatingCentral
- CoolingCentral Air
Additional Information
- Days on Market65
- ZoningC2
Price Change History for 743 Church Street, Buford, GA (MLS® #10596751)
| Date | Details | Price | Change |
|---|---|---|---|
| Active (from New) | – | – |
The data relating to real estate for sale on this web site comes in part from the Broker Reciprocity Program of Georgia MLS. Real estate listings held by brokerage firms other than Go Realty Of Georgia & Alabam are marked with the Broker Reciprocity logo and detailed information about them includes the name of the listing brokers.
The information being provided is for consumers' personal, non-commercial use and may not be used for any purpose other than to identify prospective properties consumers may be interested in purchasing. Information Deemed Reliable But Not Guaranteed.
The broker providing this data believes it to be correct, but advises interested parties to confirm them before relying on them in a purchase decision.
Copyright 2025 Georgia MLS. All rights reserved.
Listing information last updated on December 16th, 2025 at 11:01am CST.






















































