Hi There! Is this Your First Time?
Did you know if you Register you have access to free search tools including the ability to save listings and property searches? Did you know that you can bypass the search altogether and have listings sent directly to your email address? Check out our how-to page for more info.
- Price$225,000
- Beds3
- Baths3
- SQ. Feet1,750
- Acres0.28
- Built1972
5158 Rock Eagle Drive, Stone Mountain
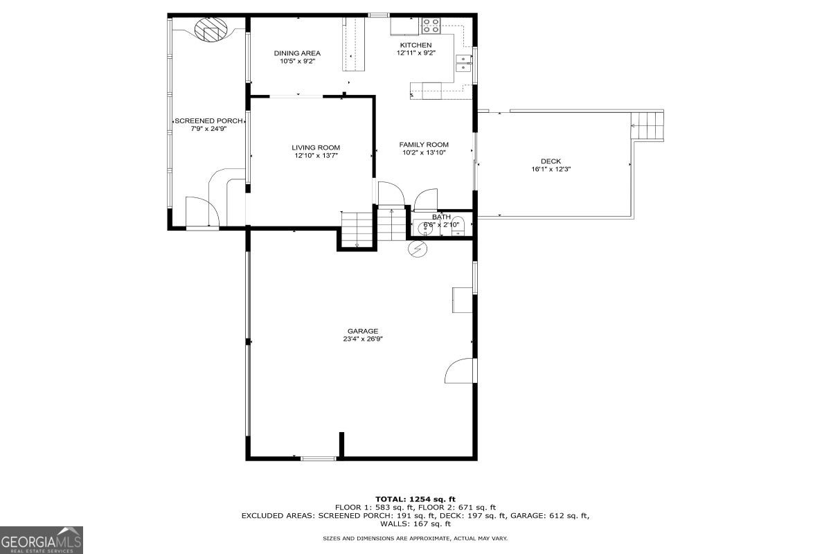
Enjoy this large, open layout contemporary home in a rustic environment. The 3 Bdrm with 2-1/2 upgraded bathrooms is on a large lot next to the Dekalb County rustic field for privacy. Lots of open areas in the house. Great Cul de sac to safely play and explore the area. Fenced off backyard area ideal for setting up a barbeque and sitting area in addition to the rear porch and waterfall Large fenced off dog area with dog house for your pets. The home features fans throughout, clean interior paint, new LVP downstairs and wall-to-wall carpet upstairs. Black kitchen appliances, new engineered countertop, washer/dryer hook-ups, security system, and 2 car garage. Upgraded bathrooms. Room adjacent to kitchen, living room, dining room, and kitchen nook with a very open floor plan provide ample space for gathering, relaxing and making this home comfortable for everyone. Easy access to route 78 and I-285 for an easy commute to downtown or shopping centers. Stone Mountain Park is nearby for the outdoor experience. Quaint downtown redeveloped attracting new attractions and visitors.
Essential Information
- MLS® #10609774
- Price$225,000
- Bedrooms3
- Bathrooms3.00
- Full Baths2
- Half Baths1
- Square Footage1,750
- Acres0.28
- Year Built1972
- TypeResidential
- Sub-TypeSingle Family Residence
- StyleBrick 4 Side, Brick Front, Contemporary, Other
- StatusActive
Amenities
- UtilitiesElectricity Available, Natural Gas Available, Phone Available, Sewer Available, Water Available
- Parking Spaces2
- ParkingAttached, Garage, Garage Door Opener, Storage
- ViewCity
Exterior
- Lot DescriptionCorner Lot, Cul-De-Sac, Private
- RoofComposition
- ConstructionBrick, Wood Siding
- FoundationPillar/Post/Pier
Additional Information
- Days on Market84
Community Information
- Address5158 Rock Eagle Drive
- SubdivisionNone
- CityStone Mountain
- CountyDeKalb
- StateGA
- Zip Code30083
Interior
- Interior FeaturesOther, Rear Stairs, Vaulted Ceiling(s)
- AppliancesDishwasher, Disposal, Gas Water Heater, Microwave, Refrigerator
- HeatingCentral, Forced Air, Natural Gas
- CoolingAttic Fan, Ceiling Fan(s), Central Air
- StoriesMulti/Split
School Information
- ElementaryStone Mill
- MiddleStone Mountain
- HighStone Mountain
Listing Details
- Listing Provided Courtesy Of Clickit Realty Inc.
Price Change History for 5158 Rock Eagle Drive, Stone Mountain, GA (MLS® #10609774)
| Date | Details | Price | Change |
|---|---|---|---|
| Active | – | – | |
| Back On Market | – | – | |
| Under Contract | – | – | |
| Active | – | – | |
| Price Change | – | – | |
| Show More (5) | |||
| Price Reduced | $225,000 | $24,000 (9.64%) | |
| Active | – | – | |
| Price Change | – | – | |
| Price Reduced (from $250,000) | $249,000 | $1,000 (0.40%) | |
| Active (from New) | – | – | |
The data relating to real estate for sale on this web site comes in part from the Broker Reciprocity Program of Georgia MLS. Real estate listings held by brokerage firms other than Go Realty Of Georgia & Alabam are marked with the Broker Reciprocity logo and detailed information about them includes the name of the listing brokers.
The information being provided is for consumers' personal, non-commercial use and may not be used for any purpose other than to identify prospective properties consumers may be interested in purchasing. Information Deemed Reliable But Not Guaranteed.
The broker providing this data believes it to be correct, but advises interested parties to confirm them before relying on them in a purchase decision.
Copyright 2026 Georgia MLS. All rights reserved.
Listing information last updated on January 1st, 2026 at 11:00pm CST.


































