Hi There! Is this Your First Time?
Did you know if you Register you have access to free search tools including the ability to save listings and property searches? Did you know that you can bypass the search altogether and have listings sent directly to your email address? Check out our how-to page for more info.
- Price$480,000
- Beds4
- Baths3
- SQ. Feet2,288
- Acres0.27
- Built2015
511 Autumn Echo, Canton
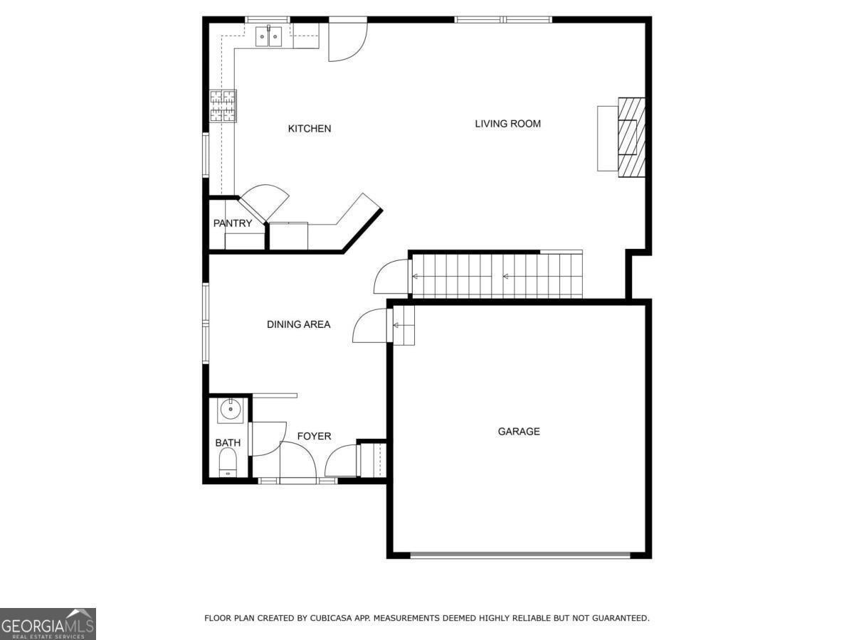
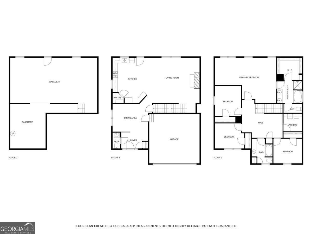
Welcome to 511 Autumn Echo in the desirable Iris Park subdivision! This beautifully maintained 4 bedroom, 2.5 bath home, built in 2015, offers 2,250 sq. ft. of updated living space plus a huge unfinished basement stubbed for a bath that walks out to the flat backyard and enlarged patio. The bright, open-concept family room with gas fireplace flows into a modern kitchen featuring an oversized island, granite countertops, stainless steel appliances, convection oven, tile backsplash, 42? cabinets, and a walk-in pantry. All appliances remain. Formal and casual dining areas provide flexibility, including a formal dining room with wainscoting and updated lighting. Upstairs, the oversized primary suite includes a sitting room and en-suite bath with dual vanities, soaking tub, and separate shower. The laundry is conveniently located near the bedrooms, and a spacious loft offers flex space for desks or gaming. From the upper level, enjoy mountain views. Set on a private cul-de-sac lot backing to woods, this home also features a covered front porch, welcoming foyer, high ceilings, and abundant natural light. Recent updates include a new A/C unit (2024), smart switches, hardwired Ring cameras, a smart garage door, and ceiling fans in every bedroom. Outdoor living shines with a large deck and poured patio (2023). Owner will replace carpet at closing, with buyer's choice of color (up to $1,800 allowance). The location is ideal-close to top schools, shopping, and recreation, with sidewalks throughout the neighborhood. The YMCA, Cherokee Aquatic Center, and Blankets Creek Mountain Bike Trails are minutes away, and both Downtown Woodstock and Downtown Canton are just a short drive. With low HOA dues, plenty of community amenities, and a welcoming neighborhood feel, this home truly has it all.
Essential Information
- MLS® #10613056
- Price$480,000
- Bedrooms4
- Bathrooms3.00
- Full Baths2
- Half Baths1
- Square Footage2,288
- Acres0.27
- Year Built2015
- TypeResidential
- Sub-TypeSingle Family Residence
- StyleTraditional
- StatusActive
Amenities
- UtilitiesCable Available, Electricity Available, Sewer Available, Water Available, Natural Gas Available, Underground Utilities
- Parking Spaces2
- ParkingGarage, Garage Door Opener, Kitchen Level
- ViewCity, Mountain(s)
- WaterfrontNo Dock Or Boathouse
Exterior
- Lot DescriptionLevel
- WindowsDouble Pane Windows, Window Treatments
- RoofComposition
- ConstructionConcrete, Stone
- FoundationBlock
Additional Information
- Days on Market69
Community Information
- Address511 Autumn Echo
- SubdivisionIris Park
- CityCanton
- CountyCherokee
- StateGA
- Zip Code30114
Interior
- Interior FeaturesWalk-In Closet(s), Pulldown Attic Stairs, Double Vanity, Soaking Tub, Separate Shower, Tray Ceiling(s), Vaulted Ceiling(s)
- AppliancesDishwasher, Dryer, Oven/Range (Combo), Refrigerator, Washer, Convection Oven, Disposal, Electric Water Heater, Microwave, Stainless Steel Appliance(s)
- HeatingCentral, Forced Air, Natural Gas, Zoned
- CoolingCeiling Fan(s), Central Air, Zoned
- FireplaceYes
- # of Fireplaces1
- FireplacesGas Log, Living Room
- StoriesTwo
School Information
- ElementaryHasty
- MiddleTeasley
- HighCherokee
Listing Details
- Listing Provided Courtesy Of Keller Williams Realty
Price Change History for 511 Autumn Echo, Canton, GA (MLS® #10613056)
| Date | Details | Price | Change |
|---|---|---|---|
| Active | – | – | |
| Price Change | – | – | |
| Price Reduced | $480,000 | $5,000 (1.03%) | |
| Active | – | – | |
| Price Change | – | – | |
| Show More (5) | |||
| Price Reduced | $485,000 | $4,900 (1.00%) | |
| Active | – | – | |
| Price Change | – | – | |
| Price Reduced (from $499,900) | $489,900 | $10,000 (2.00%) | |
| Active (from New) | – | – | |
The data relating to real estate for sale on this web site comes in part from the Broker Reciprocity Program of Georgia MLS. Real estate listings held by brokerage firms other than Go Realty Of Georgia & Alabam are marked with the Broker Reciprocity logo and detailed information about them includes the name of the listing brokers.
The information being provided is for consumers' personal, non-commercial use and may not be used for any purpose other than to identify prospective properties consumers may be interested in purchasing. Information Deemed Reliable But Not Guaranteed.
The broker providing this data believes it to be correct, but advises interested parties to confirm them before relying on them in a purchase decision.
Copyright 2025 Georgia MLS. All rights reserved.
Listing information last updated on December 17th, 2025 at 6:00pm CST.






















































