Hi There! Is this Your First Time?
Did you know if you Register you have access to free search tools including the ability to save listings and property searches? Did you know that you can bypass the search altogether and have listings sent directly to your email address? Check out our how-to page for more info.
- Price$2,575
- Acres0.60
- Built2008
1930 Powder Springs Road Sw, Marietta
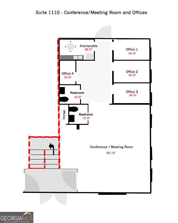
Position your practice or professional firm in a highly functional office suite designed to support healthcare providers, training groups, and professional service firms. This 1,471 RSF second-floor suite features four private offices, a large open meeting/training room, two restrooms, and a kitchenette, providing both private workspace and collaborative areas. The flexible floor plan is well-suited for counseling and therapy practices, family and social assistance organizations, professional training and business schools, and administrative support or back-office operations. The property offers convenient access to major corridors and nearby amenities. On-site parking and a professional building environment make this suite ideal for organizations seeking a well-located, cost-effective workspace. Highlights * 1,471 RSF second-floor office suite * Four private offices + 861 SF conference/training room * Two restrooms, kitchenette, and storage * Functional layout ideal for therapy, training, education, and administrative firms * No elevator
Essential Information
- MLS® #10614128
- Price$2,575
- Bathrooms0.00
- Acres0.60
- Year Built2008
- TypeCommercial Lease
- StatusActive
Amenities
- UtilitiesCable Available, Electricity Available, Phone Available, Sewer Available, Underground Utilities, Water Available
- Parking Spaces24
- ParkingParking Lot
Exterior
- Lot DescriptionLevel
- RoofOther
- ConstructionBrick, Stone
Listing Details
- Listing Provided Courtesy Of Bhhs Georgia Properties
- Office InfoWillie F. Smith
Community Information
- Address1930 Powder Springs Road Sw
- SubdivisionApex Office Center
- CityMarietta
- CountyCobb
- StateGA
- Zip Code30064
Interior
- HeatingCentral
- CoolingCentral Air
Additional Information
- Days on Market14
- ZoningMulti-Unit Professional
Price Change History for 1930 Powder Springs Road Sw, Marietta, GA (MLS® #10614128)
| Date | Details | Price | Change | 
|---|---|---|---|
| Active (from New) | – | – | 
 The data relating to real estate for sale on this web site comes in part from the Broker Reciprocity Program of Georgia MLS. Real estate listings held by brokerage firms other than Go Realty Of Georgia & Alabam are marked with the Broker Reciprocity logo and detailed information about them includes the name of the listing brokers.
 The data relating to real estate for sale on this web site comes in part from the Broker Reciprocity Program of Georgia MLS. Real estate listings held by brokerage firms other than Go Realty Of Georgia & Alabam are marked with the Broker Reciprocity logo and detailed information about them includes the name of the listing brokers.
The information being provided is for consumers' personal, non-commercial use and may not be used for any purpose other than to identify prospective properties consumers may be interested in purchasing. Information Deemed Reliable But Not Guaranteed.
The broker providing this data believes it to be correct, but advises interested parties to confirm them before relying on them in a purchase decision.
Copyright 2025 Georgia MLS. All rights reserved.
Listing information last updated on October 30th, 2025 at 11:00pm CDT.
 
								





















