Hi There! Is this Your First Time?
Did you know if you Register you have access to free search tools including the ability to save listings and property searches? Did you know that you can bypass the search altogether and have listings sent directly to your email address? Check out our how-to page for more info.
- Price$375,000
- Beds3
- Baths2
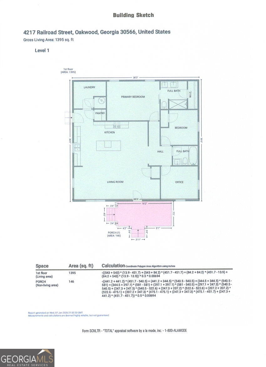
- SQ. Feet1,400
- Acres0.22
- Built1900
4217 Railroad Street, Oakwood
Welcome to 4217 Railroad Street, Oakwood, GA! This charming 1900s home has been fully renovated in 2025, offering approximately 1,400 square feet of modern living space. Featuring three bedrooms, two full bathrooms, and an open-concept layout, this home seamlessly blends historic charm with contemporary updates. The kitchen is equipped with brand-new Frigidaire appliances, including a dishwasher, microwave, and stove, along with a spacious pantry and walk-in laundry room. It also features soft-close cabinets and cabinet under-lighting to set the mood, making it both functional and inviting. The master suite offers a private retreat with a spa-inspired bathroom, featuring a large stand-up shower and modern finishes. The exterior has been equally transformed, boasting a new driveway, carport, fresh sod, and proper grading. This home is brand-new everything: HVAC, water heater, septic tank - fully updated from top to bottom. And let's not forget location! This home is conveniently located near HWY 985, Walmart, the University of North Georgia, the Atlanta Falcons Training Camp, and the City of Oakwood Park and splash pad within walking distance - plus, plenty of dining options within a mile radius. This home offers quick and convenient access to some of North Georgia's most sought-after cities: Buford, Sugar Hill, Flowery Branch, Gainesville, and Braselton. Whether you're commuting for work, heading out for a day of shopping or dining, or looking to enjoy the outdoors, this central location puts everything within reach.
Essential Information
- MLS® #10615458
- Price$375,000
- Bedrooms3
- Bathrooms2.00
- Full Baths2
- Square Footage1,400
- Acres0.22
- Year Built1900
- TypeResidential
- Sub-TypeSingle Family Residence
- StyleTraditional
- StatusActive
Amenities
- UtilitiesCable Available, Electricity Available, Underground Utilities, Water Available
- Parking Spaces2
- ParkingCarport, Detached
Exterior
- Lot DescriptionCorner Lot, Level, Private
- RoofOther
- ConstructionOther
Additional Information
- Days on Market127
Community Information
- Address4217 Railroad Street
- SubdivisionNONE
- CityOakwood
- CountyHall
- StateGA
- Zip Code30566
Interior
- Interior FeaturesHigh Ceilings, Rear Stairs
- AppliancesDishwasher, Electric Water Heater, Microwave, Oven/Range (Combo)
- HeatingElectric
- CoolingCeiling Fan(s), Central Air, Electric
- StoriesOne
School Information
- ElementaryOther
- MiddleWest Hall
- HighWest Hall
Listing Details
- Listing Provided Courtesy Of Keller Williams Realty Atl. Partners
Price Change History for 4217 Railroad Street, Oakwood, GA (MLS® #10615458)
| Date | Details | Price | Change |
|---|---|---|---|
| Active | – | – | |
| Price Change | – | – | |
| Price Reduced | $375,000 | $5,000 (1.32%) | |
| Active | – | – | |
| Price Change | – | – | |
| Show More (4) | |||
| Price Reduced | $380,000 | $9,900 (2.54%) | |
| Active | – | – | |
| Price Change (from New) | – | – | |
| Price Reduced (from $399,900) | $389,900 | $10,000 (2.50%) | |
The data relating to real estate for sale on this web site comes in part from the Broker Reciprocity Program of Georgia MLS. Real estate listings held by brokerage firms other than Go Realty Of Georgia & Alabam are marked with the Broker Reciprocity logo and detailed information about them includes the name of the listing brokers.
The information being provided is for consumers' personal, non-commercial use and may not be used for any purpose other than to identify prospective properties consumers may be interested in purchasing. Information Deemed Reliable But Not Guaranteed.
The broker providing this data believes it to be correct, but advises interested parties to confirm them before relying on them in a purchase decision.
Copyright 2026 Georgia MLS. All rights reserved.
Listing information last updated on March 27th, 2026 at 6:16am CDT.



























































