Hi There! Is this Your First Time?
Did you know if you Register you have access to free search tools including the ability to save listings and property searches? Did you know that you can bypass the search altogether and have listings sent directly to your email address? Check out our how-to page for more info.
- Price$2,895
- Acres0.22
- Built1985
8215 Roswell Road 310, Atlanta
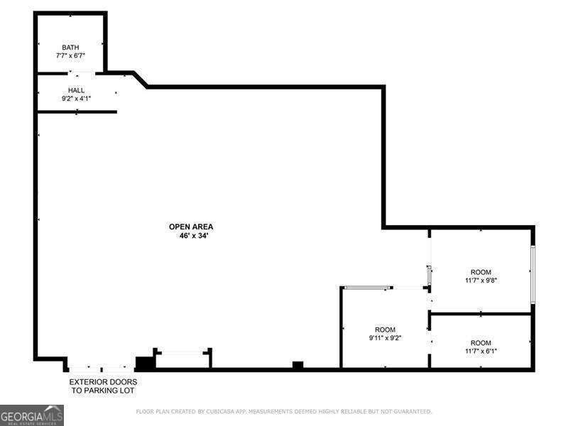
Unbeatable location and opportunity for this Creative Space. Perfect space for your growing business, flex office, studio, distribution center, warehouse, business base, etc. Flexible zoning allows for many uses and open floorplan provides ample opportunity from office to assembly; tenant may customize the space to suit their needs as well. Currently White Boxed and Ready. Rent includes Utilities; tenant responsible for Internet and Phone System if applicable (Utility coverage carveout for some manufacturing, or food industry needs; inquire with listing broker).
Essential Information
- MLS® #10617374
- Price$2,895
- Bathrooms0.00
- Acres0.22
- Year Built1985
- TypeCommercial Lease
- StatusActive
Amenities
- UtilitiesCable Available
- Parking Spaces5
- ParkingParking Lot
Exterior
- Lot DescriptionBusiness Park, Level
- RoofOther
- ConstructionBrick, Concrete
Listing Details
- Listing Provided Courtesy Of Atlanta Communities
Community Information
- Address8215 Roswell Road 310
- SubdivisionNONE
- CityAtlanta
- CountyFulton
- StateGA
- Zip Code30350
Interior
- HeatingCentral
- CoolingCentral Air
Additional Information
- Days on Market36
- ZoningM1
Price Change History for 8215 Roswell Road 310, Atlanta, GA (MLS® #10617374)
| Date | Details | Price | Change |
|---|---|---|---|
| Active (from New) | – | – |
The data relating to real estate for sale on this web site comes in part from the Broker Reciprocity Program of Georgia MLS. Real estate listings held by brokerage firms other than Go Realty Of Georgia & Alabam are marked with the Broker Reciprocity logo and detailed information about them includes the name of the listing brokers.
The information being provided is for consumers' personal, non-commercial use and may not be used for any purpose other than to identify prospective properties consumers may be interested in purchasing. Information Deemed Reliable But Not Guaranteed.
The broker providing this data believes it to be correct, but advises interested parties to confirm them before relying on them in a purchase decision.
Copyright 2025 Georgia MLS. All rights reserved.
Listing information last updated on December 9th, 2025 at 4:01pm CST.



























