Hi There! Is this Your First Time?
Did you know if you Register you have access to free search tools including the ability to save listings and property searches? Did you know that you can bypass the search altogether and have listings sent directly to your email address? Check out our how-to page for more info.
- Price$562,900
- Beds3
- Baths3
- Acres0.03
- Built2025
124 Waterview Court, Waleska
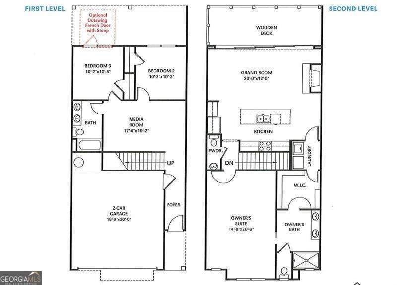
Move in Ready April 2026. 3 Bed 2.5 Bath Townhome. Seamlessly integrated into the pristine and natural fabric of the picturesque setting of Lake Arrowhead. Trend setting design and high-end appointments complement the extraordinary views from these handsome homes overlooking the Marina. Quick access to Red Cloud Park, Marina & the South Gate.
Essential Information
- MLS® #10619369
- Price$562,900
- Bedrooms3
- Bathrooms3.00
- Full Baths2
- Half Baths1
- Acres0.03
- Year Built2025
- TypeResidential
- Sub-TypeTownhouse
- StyleCraftsman
- StatusActive
Amenities
- UtilitiesCable Available, Electricity Available, High Speed Internet, Phone Available, Sewer Available, Underground Utilities, Water Available
- Parking Spaces2
- ParkingGarage
- ViewLake
- WaterfrontNo Dock Or Boathouse
Exterior
- Lot DescriptionOther
- WindowsDouble Pane Windows
- RoofComposition
- ConstructionOther
- FoundationSlab
Additional Information
- Days on Market33
Community Information
- Address124 Waterview Court
- SubdivisionLake Arrowhead
- CityWaleska
- CountyCherokee
- StateGA
- Zip Code30183
Interior
- Interior FeaturesDouble Vanity, High Ceilings, Walk-In Closet(s)
- AppliancesDishwasher, Disposal, Electric Water Heater, Microwave
- HeatingCentral, Electric, Heat Pump, Zoned
- CoolingCentral Air, Electric, Zoned
- FireplaceYes
- # of Fireplaces1
- FireplacesFactory Built, Family Room
- StoriesTwo
School Information
- ElementaryR M Moore
- MiddleTeasley
- HighCherokee
Listing Details
- Listing Provided Courtesy Of Atlanta Communities
Price Change History for 124 Waterview Court, Waleska, GA (MLS® #10619369)
| Date | Details | Price | Change |
|---|---|---|---|
| Active (from New) | – | – |
The data relating to real estate for sale on this web site comes in part from the Broker Reciprocity Program of Georgia MLS. Real estate listings held by brokerage firms other than Go Realty Of Georgia & Alabam are marked with the Broker Reciprocity logo and detailed information about them includes the name of the listing brokers.
The information being provided is for consumers' personal, non-commercial use and may not be used for any purpose other than to identify prospective properties consumers may be interested in purchasing. Information Deemed Reliable But Not Guaranteed.
The broker providing this data believes it to be correct, but advises interested parties to confirm them before relying on them in a purchase decision.
Copyright 2025 Georgia MLS. All rights reserved.
Listing information last updated on November 10th, 2025 at 1:48pm CST.



































