Hi There! Is this Your First Time?
Did you know if you Register you have access to free search tools including the ability to save listings and property searches? Did you know that you can bypass the search altogether and have listings sent directly to your email address? Check out our how-to page for more info.
- Price$349,999
- Beds3
- Baths2
- SQ. Feet1,859
- Acres0.68
- Built1970
1440 Compton Drive Sw, Mableton
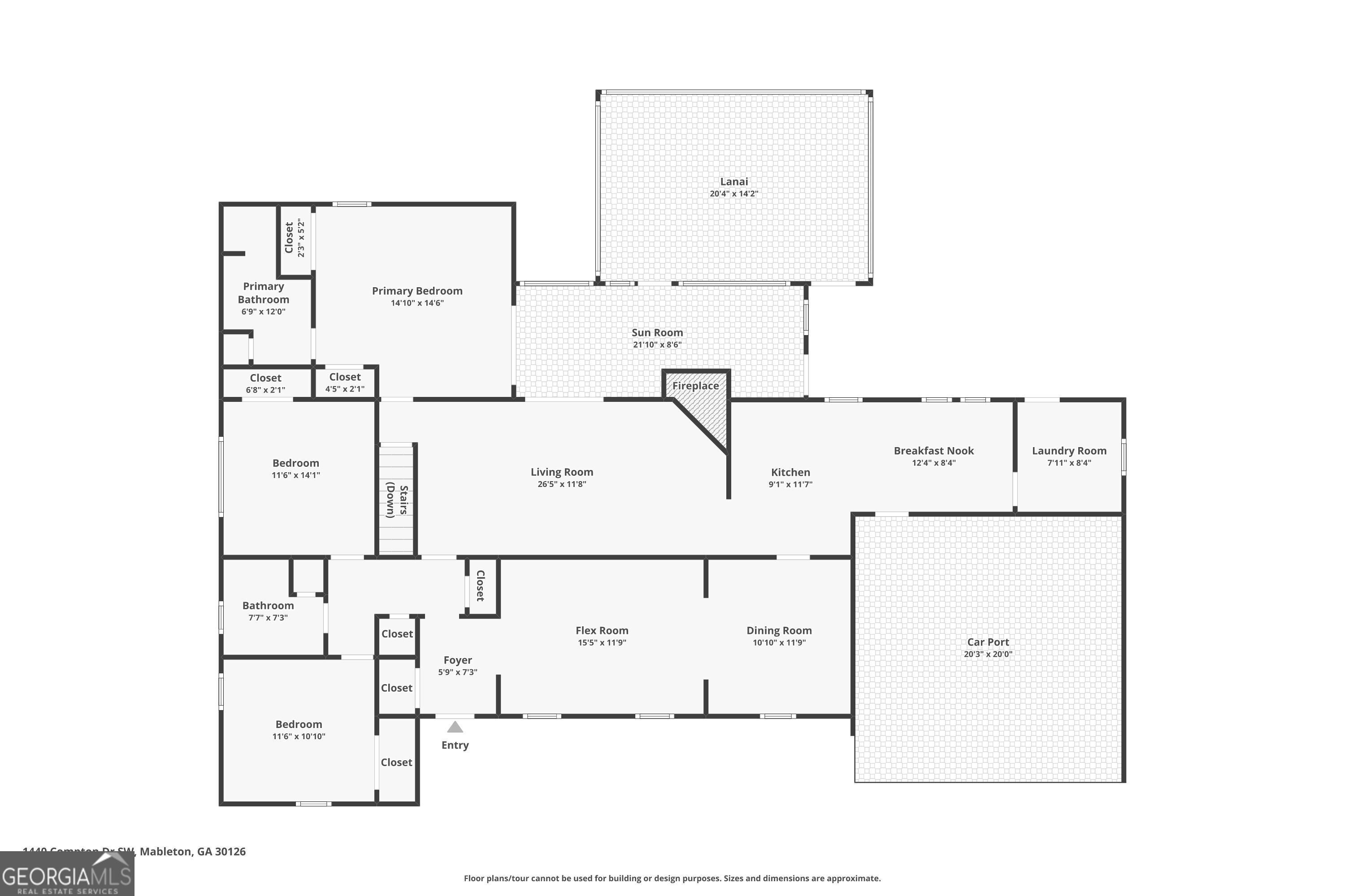
Charming Brick Home with Basement, Sunroom & No HOA in Mableton! Welcome to this beautifully maintained 3-bedroom, 2-bath brick home nestled on nearly half an acre in desirable Cobb County. Offering 1,859 square feet of living space plus a spacious basement, this home provides plenty of room to grow, relax, and entertain. Inside, you'll find an inviting living area with a cozy fireplace, updated flooring, and an abundance of natural light. The bright sunroom-accessible from both the living room and the primary suite-creates the perfect space for morning coffee or unwinding at sunset. Step out to the screened-in back porch overlooking the peaceful, private backyard, ideal for enjoying quiet Georgia evenings. The unfinished basement offers endless possibilities, whether you envision a family room, home office, gym, or media space, and it includes its own second fireplace for added warmth and charm. Recent updates include new flooring, a new sump pump, new pipes in the basement, new windows, and an HVAC system that was replaced in 2016 and serviced annually. The seller is also offering a credit toward a brand-new dishwasher. Conveniently located just 8 miles from The Battery Atlanta and close to shopping, dining, parks, and so many more Cobb county amenities, this home combines comfort, convenience, and value. With no HOA and priced below market value, it's move-in ready and full of potential-perfect for anyone seeking a home with character, space, and style in a fantastic location.
Essential Information
- MLS® #10620899
- Price$349,999
- Bedrooms3
- Bathrooms2.00
- Full Baths2
- Square Footage1,859
- Acres0.68
- Year Built1970
- TypeResidential
- Sub-TypeSingle Family Residence
- StyleRanch
- StatusActive
Amenities
- UtilitiesSewer Connected, Water Available
- Parking Spaces2
- ParkingCarport
Exterior
- Lot DescriptionPrivate
- RoofComposition
- ConstructionBrick
Additional Information
- Days on Market14
Community Information
- Address1440 Compton Drive Sw
- SubdivisionBrookwood Forest
- CityMableton
- CountyCobb
- StateGA
- Zip Code30126
Interior
- Interior FeaturesMaster On Main Level, Tile Bath
- AppliancesCooktop, Oven (Wall), Refrigerator
- HeatingCentral
- CoolingCentral Air
- FireplaceYes
- # of Fireplaces2
- FireplacesBasement, Family Room
- StoriesOne
School Information
- ElementarySanders
- MiddleFloyd
- HighSouth Cobb
Listing Details
- Listing Provided Courtesy Of Ga Realty Llc
Price Change History for 1440 Compton Drive Sw, Mableton, GA (MLS® #10620899)
| Date | Details | Price | Change |
|---|---|---|---|
| Active | – | – | |
| New (from Coming Soon) | – | – |
The data relating to real estate for sale on this web site comes in part from the Broker Reciprocity Program of Georgia MLS. Real estate listings held by brokerage firms other than Go Realty Of Georgia & Alabam are marked with the Broker Reciprocity logo and detailed information about them includes the name of the listing brokers.
The information being provided is for consumers' personal, non-commercial use and may not be used for any purpose other than to identify prospective properties consumers may be interested in purchasing. Information Deemed Reliable But Not Guaranteed.
The broker providing this data believes it to be correct, but advises interested parties to confirm them before relying on them in a purchase decision.
Copyright 2025 Georgia MLS. All rights reserved.
Listing information last updated on November 5th, 2025 at 10:45pm CST.


































