Hi There! Is this Your First Time?
Did you know if you Register you have access to free search tools including the ability to save listings and property searches? Did you know that you can bypass the search altogether and have listings sent directly to your email address? Check out our how-to page for more info.
- Price$439,000
- Beds4
- Baths3
- Acres1.47
- Built1977
19 Hickory Terrace, Blairsville
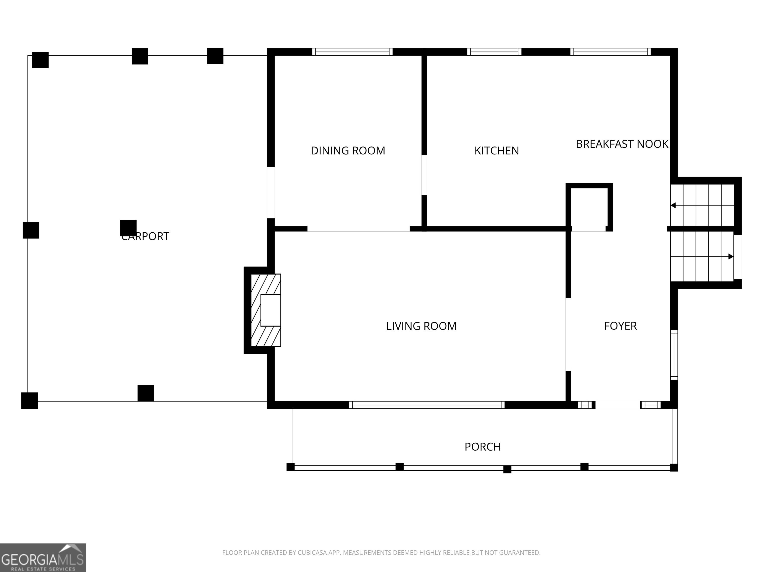
Charming split-level home less than 2 miles from downtown Blairsville! This South facing 4BR/3BA home was built in 1977 and partially remodeled in 2014. Updated kitchen, newer windows, drywall, and zoned HVAC. Metal Roof installed 2014/2015. LVP flooring installed in 2021. Enjoy a gas fireplace with brick surround in the living room and a pellet stove in the lower-level bonus room. Large laundry area with a full bathroom and newer washer/dryer (2025). Some furnishings stay with home. Outdoor living options include a screened porch, deck, front porch, and covered carport seating. Level lot with RV parking, 12x20 concrete block Workshop, and 10x12 shed. Convenient to shopping, dining, and all Blairsville amenities!
Essential Information
- MLS® #10621596
- Price$439,000
- Bedrooms4
- Bathrooms3.00
- Full Baths3
- Acres1.47
- Year Built1977
- TypeResidential
- Sub-TypeSingle Family Residence
- StyleBrick Front, Traditional, Cape Cod, Country/Rustic
- StatusActive
Amenities
- UtilitiesElectricity Available, High Speed Internet, Underground Utilities, Water Available, Propane
- Parking Spaces2
- ParkingGarage, Kitchen Level, Off Street, Side/Rear Entrance, Carport, Detached, RV/Boat Parking
Exterior
- Lot DescriptionCorner Lot, Level, Sloped
- RoofMetal
- ConstructionBrick, Vinyl Siding
- FoundationSlab
Additional Information
- Days on Market104
Community Information
- Address19 Hickory Terrace
- SubdivisionHickory Heights
- CityBlairsville
- CountyUnion
- StateGA
- Zip Code30512
Interior
- Interior FeaturesRoommate Plan, Separate Shower, Soaking Tub, Split Bedroom Plan, Tile Bath, Split Foyer, Two Story Foyer
- AppliancesDishwasher, Dryer, Electric Water Heater, Microwave, Oven/Range (Combo), Refrigerator, Washer
- HeatingCentral, Dual
- CoolingCentral Air, Electric
- FireplaceYes
- # of Fireplaces2
- FireplacesGas Log, Living Room, Basement, Other
- StoriesMulti/Split
School Information
- ElementaryUnion County Primary/Elementar
- MiddleUnion County
- HighUnion County
Listing Details
- Listing Provided Courtesy Of Coldwell Banker High Country
- Office Info7067453500
Price Change History for 19 Hickory Terrace, Blairsville, GA (MLS® #10621596)
| Date | Details | Price | Change |
|---|---|---|---|
| Active | – | – | |
| Price Change | – | – | |
| Price Reduced (from $459,000) | $439,000 | $20,000 (4.36%) | |
| Active (from New) | – | – |
The data relating to real estate for sale on this web site comes in part from the Broker Reciprocity Program of Georgia MLS. Real estate listings held by brokerage firms other than Go Realty Of Georgia & Alabam are marked with the Broker Reciprocity logo and detailed information about them includes the name of the listing brokers.
The information being provided is for consumers' personal, non-commercial use and may not be used for any purpose other than to identify prospective properties consumers may be interested in purchasing. Information Deemed Reliable But Not Guaranteed.
The broker providing this data believes it to be correct, but advises interested parties to confirm them before relying on them in a purchase decision.
Copyright 2026 Georgia MLS. All rights reserved.
Listing information last updated on February 16th, 2026 at 11:31am CST.




















































