Hi There! Is this Your First Time?
Did you know if you Register you have access to free search tools including the ability to save listings and property searches? Did you know that you can bypass the search altogether and have listings sent directly to your email address? Check out our how-to page for more info.
- Price$359,900
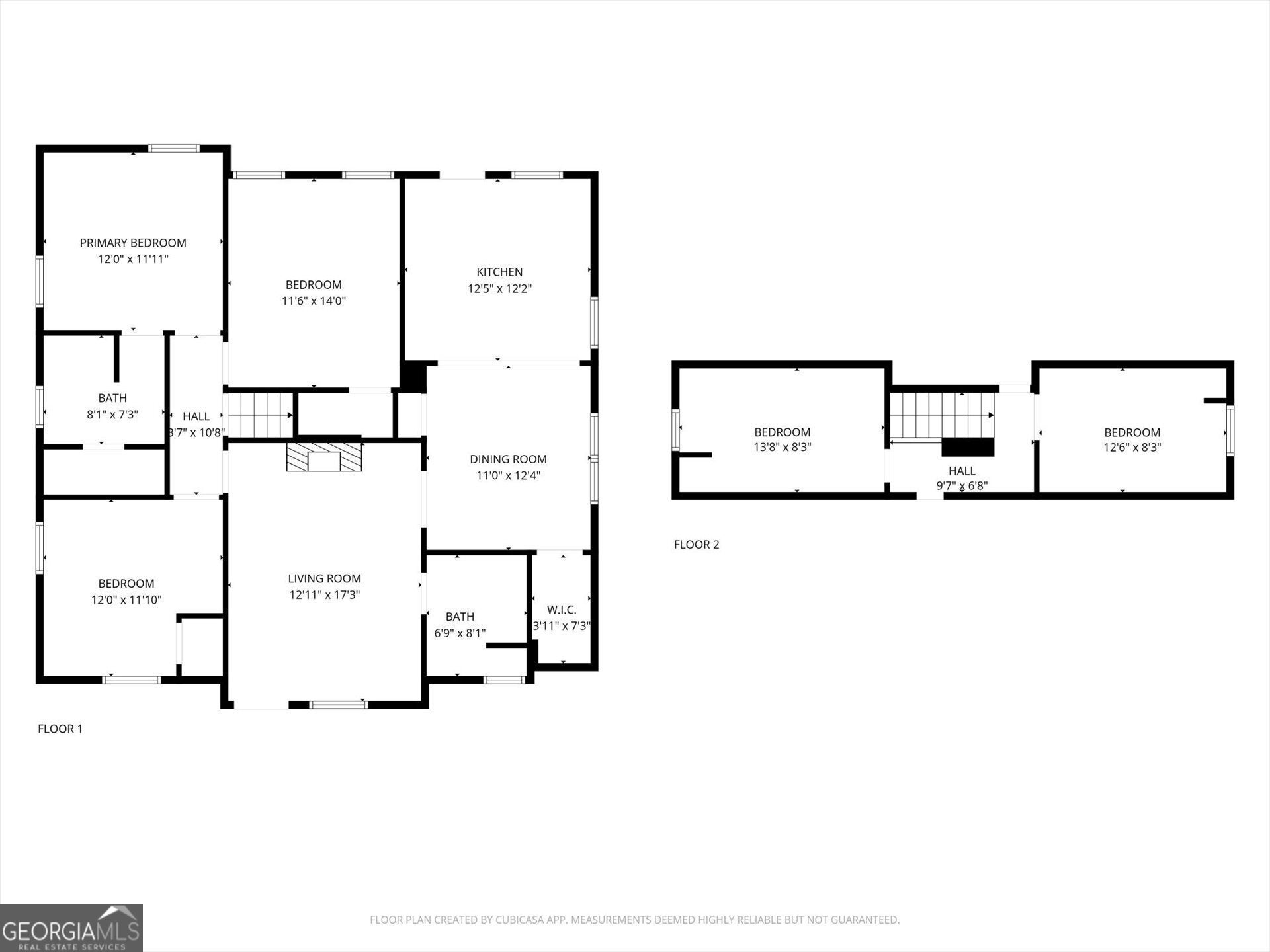
- Beds5
- Baths2
- SQ. Feet2,020
- Acres0.26
- Built1946
1439 Westboro Drive Sw, Atlanta
Price Improvement! Historic Charm Meets Modern Comfort Just Minutes from the BeltLine! Fall in love with this beautifully remodeled West End bungalow, now offered at $379,900. Located on a quiet, tree-lined street near Lee + White, Downtown, and Cascade, this home offers the perfect blend of style, convenience, and move-in-ready comfort. Step inside to a bright, open layout featuring luxury plank flooring, designer lighting, and an easy flow between living, dining, and kitchen spaces-perfect for entertaining. The chef's kitchen impresses with granite countertops, shaker cabinetry, and a large island for gathering. The primary suite on the main provides privacy and ease, complemented by two spacious guest rooms. Upstairs, discover two versatile bonus spaces ideal for a home office, studio, or playroom. Outside, unwind on your new deck overlooking a fully fenced backyard-ready for pets, play, or peaceful evenings under the trees. Every inch of this home reflects thoughtful updates and timeless bungalow charm-just minutes from Atlanta's BeltLine and the best of the West End.
Essential Information
- MLS® #10621625
- Price$359,900
- Bedrooms5
- Bathrooms2.00
- Full Baths2
- Square Footage2,020
- Acres0.26
- Year Built1946
- TypeResidential
- Sub-TypeSingle Family Residence
- StyleBungalow/Cottage
- StatusActive
Amenities
- UtilitiesCable Available, Electricity Available, Natural Gas Available, Phone Available, Sewer Connected
- ParkingOff Street
Exterior
- Lot DescriptionCity Lot
- RoofComposition
- ConstructionBrick
Additional Information
- Days on Market60
Community Information
- Address1439 Westboro Drive Sw
- SubdivisionNone
- CityAtlanta
- CountyFulton
- StateGA
- Zip Code30310
Interior
- Interior FeaturesMaster On Main Level, Tile Bath
- AppliancesDishwasher, Oven/Range (Combo), Refrigerator
- HeatingHeat Pump
- CoolingHeat Pump
- StoriesOne and One Half
School Information
- ElementaryTuskegee Airmen Global Academy
- MiddleHerman J. Russell
- HighWashington
Listing Details
- Listing Provided Courtesy Of Keller Williams Realty Atl. Partners
Price Change History for 1439 Westboro Drive Sw, Atlanta, GA (MLS® #10621625)
| Date | Details | Price | Change |
|---|---|---|---|
| Active | – | – | |
| Price Change | – | – | |
| Price Reduced | $359,900 | $10,100 (2.73%) | |
| Active | – | – | |
| Price Change | – | – | |
| Show More (7) | |||
| Price Reduced | $370,000 | $9,900 (2.61%) | |
| Active | – | – | |
| Price Change | – | – | |
| Price Reduced | $379,900 | $100 (0.03%) | |
| Active | – | – | |
| Price Change (from New) | – | – | |
| Price Reduced (from $395,000) | $380,000 | $15,000 (3.80%) | |
The data relating to real estate for sale on this web site comes in part from the Broker Reciprocity Program of Georgia MLS. Real estate listings held by brokerage firms other than Go Realty Of Georgia & Alabam are marked with the Broker Reciprocity logo and detailed information about them includes the name of the listing brokers.
The information being provided is for consumers' personal, non-commercial use and may not be used for any purpose other than to identify prospective properties consumers may be interested in purchasing. Information Deemed Reliable But Not Guaranteed.
The broker providing this data believes it to be correct, but advises interested parties to confirm them before relying on them in a purchase decision.
Copyright 2025 Georgia MLS. All rights reserved.
Listing information last updated on December 16th, 2025 at 7:15am CST.





























