Hi There! Is this Your First Time?
Did you know if you Register you have access to free search tools including the ability to save listings and property searches? Did you know that you can bypass the search altogether and have listings sent directly to your email address? Check out our how-to page for more info.
- Price$309,000
- Beds4
- Baths4
- SQ. Feet3,485
- Acres1.45
- Built1978
99 Janie Beth Drive Sw, Rome
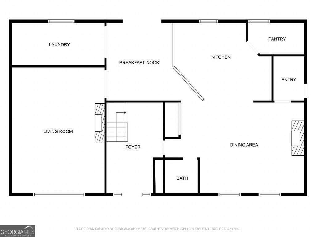
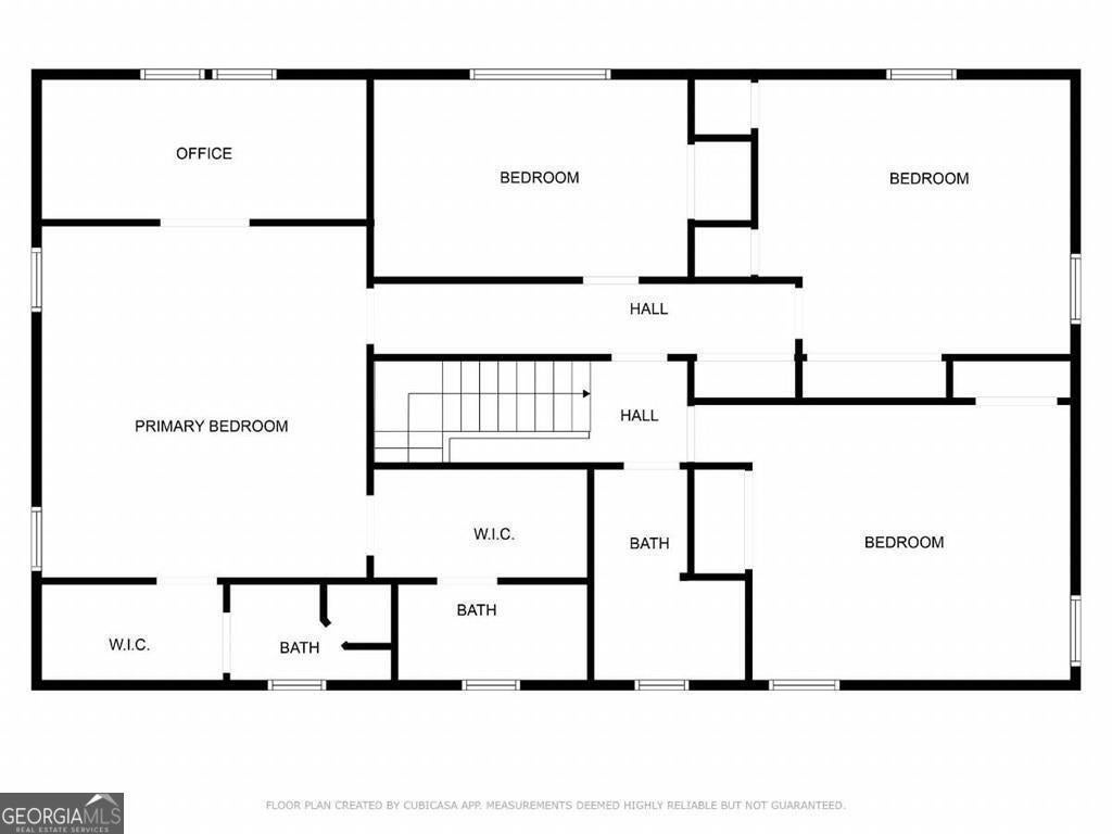
This home has been updated throughout the main level with a custom kitchen that includes a cup washer, pot filler, soft close cabinets, and built in storage! Spacious flow with a large living room, stacked stone and stained wood accents, and more. Large office space has been converted to laundry but easily converted back. Original laundry hook ups are still in place in the mud room by the breezeway! Upstairs you will find four bedrooms, including an oversized primary suite with his and her full bathrooms and walk in closets. The primary also includes another room currently used as an office but could be used as a LARGE walk in closet. Located at the end of the road you are surrounded by woods on three sides with almost the entire property fenced. In the back yard you will find a raised garden bed area as well as dog kennels with water access. So much square footage for the price!!!
Essential Information
- MLS® #10622735
- Price$309,000
- Bedrooms4
- Bathrooms4.00
- Full Baths3
- Half Baths1
- Square Footage3,485
- Acres1.45
- Year Built1978
- TypeResidential
- Sub-TypeSingle Family Residence
- StyleTraditional
- StatusActive
Amenities
- UtilitiesCable Available, Natural Gas Available
- Parking Spaces2
- ParkingGarage
- WaterfrontNo Dock Or Boathouse
Exterior
- Exterior FeaturesGarden
- Lot DescriptionCul-De-Sac, Level, Private
- WindowsDouble Pane Windows
- RoofComposition
- ConstructionVinyl Siding
- FoundationBlock
Additional Information
- Days on Market28
Community Information
- Address99 Janie Beth Drive Sw
- SubdivisionNone
- CityRome
- CountyFloyd
- StateGA
- Zip Code30165
Interior
- Interior FeaturesWalk-In Closet(s)
- AppliancesDishwasher, Gas Water Heater, Tankless Water Heater
- HeatingCentral, Natural Gas
- CoolingCentral Air, Electric
- FireplaceYes
- # of Fireplaces2
- FireplacesFamily Room, Gas Starter, Living Room, Other
- StoriesOne
School Information
- ElementaryAlto Park
- MiddleCoosa
- HighCoosa
Listing Details
- Listing Provided Courtesy Of Keller Williams Northwest
Price Change History for 99 Janie Beth Drive Sw, Rome, GA (MLS® #10622735)
| Date | Details | Price | Change |
|---|---|---|---|
| Active | – | – | |
| Price Change | – | – | |
| Price Reduced (from $324,900) | $309,000 | $15,900 (4.89%) | |
| Active (from New) | – | – |
The data relating to real estate for sale on this web site comes in part from the Broker Reciprocity Program of Georgia MLS. Real estate listings held by brokerage firms other than Go Realty Of Georgia & Alabam are marked with the Broker Reciprocity logo and detailed information about them includes the name of the listing brokers.
The information being provided is for consumers' personal, non-commercial use and may not be used for any purpose other than to identify prospective properties consumers may be interested in purchasing. Information Deemed Reliable But Not Guaranteed.
The broker providing this data believes it to be correct, but advises interested parties to confirm them before relying on them in a purchase decision.
Copyright 2025 Georgia MLS. All rights reserved.
Listing information last updated on November 10th, 2025 at 2:47pm CST.











































