Hi There! Is this Your First Time?
Did you know if you Register you have access to free search tools including the ability to save listings and property searches? Did you know that you can bypass the search altogether and have listings sent directly to your email address? Check out our how-to page for more info.
- Price$339,000
- Beds4
- Baths3
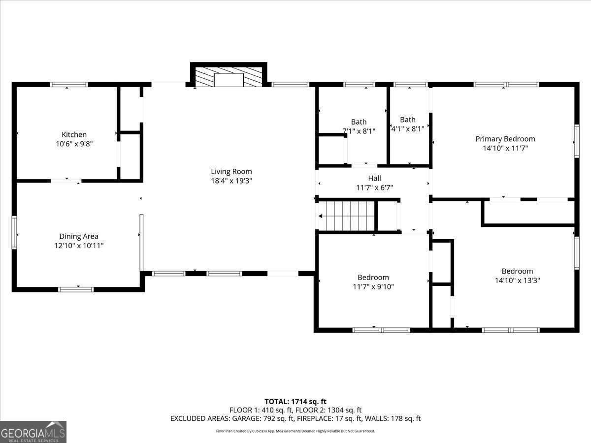
- SQ. Feet1,714
- Acres0.49
- Built1976
2936 Cheryl Court, Acworth
Welcome to 2936 Cheryl Court, your private retreat tucked within the sought-after Salem Woods Estates! This is a rare find, a beautifully cared-for property with no HOA restrictions, offering complete freedom for how you live and use your space. Step inside to discover a layout that balances comfort and practicality. The sunlit living room welcomes you with rich hardwood floors, a warm brick fireplace, and plenty of room for family gatherings. The kitchen's retro flair shines through its red and white cabinetry and classic checkerboard floor, a cheerful backdrop for cooking and conversation. The primary suite offers a peaceful escape, while two additional bedrooms on the main level provide flexibility for family, guests, or a home office. Downstairs, a finished basement with a full bath opens endless possibilities, from an in-law suite to a media room or creative workspace. Outside, the fully fenced yard feels like a personal park. Professional landscaping, mature trees, and multiple outdoor living areas, including a welcoming front porch and a generous back deck, make relaxing or entertaining effortless. The extended driveway and roomy garage offer abundant parking and storage, ideal for RVs, work vehicles, or a hobbyist's workshop. Major updates are already handled, including a newer HVAC (4 years), water heater (5 years), and roof (8 years), giving you confidence and comfort for years to come. Located within the top-rated Cherokee County School District, and offering easy access to I-75, this home combines tranquility, convenience, and timeless charm in one exceptional package.
Essential Information
- MLS® #10623032
- Price$339,000
- Bedrooms4
- Bathrooms3.00
- Full Baths3
- Square Footage1,714
- Acres0.49
- Year Built1976
- TypeResidential
- Sub-TypeSingle Family Residence
- StyleRanch
- StatusPrice Change
Amenities
- UtilitiesCable Available, Electricity Available, Natural Gas Available, Phone Available, Underground Utilities, Water Available
- Parking Spaces2
- ParkingGarage, Garage Door Opener, Side/Rear Entrance
Exterior
- Exterior FeaturesOther
- Lot DescriptionLevel
- WindowsWindow Treatments
- RoofComposition
- ConstructionBrick, Wood Siding
- FoundationBlock
Additional Information
- Days on Market59
Community Information
- Address2936 Cheryl Court
- SubdivisionSalem Woods Estates
- CityAcworth
- CountyCherokee
- StateGA
- Zip Code30102
Interior
- Interior FeaturesMaster On Main Level, Other
- AppliancesDishwasher, Oven/Range (Combo), Refrigerator
- HeatingCentral
- CoolingCeiling Fan(s), Central Air
- FireplaceYes
- # of Fireplaces1
- FireplacesFamily Room
- StoriesTwo
School Information
- ElementaryClark Creek
- MiddleBooth
- HighEtowah
Listing Details
- Listing Provided Courtesy Of Atlanta Communities
- Office Info4049525020
Price Change History for 2936 Cheryl Court, Acworth, GA (MLS® #10623032)
| Date | Details | Price | Change |
|---|---|---|---|
| Price Change | – | – | |
| Price Reduced | $339,000 | $10,900 (3.12%) | |
| Active | – | – | |
| Back On Market | – | – | |
| Active | – | – | |
| Show More (7) | |||
| Price Change | – | – | |
| Price Reduced | $349,900 | $5,100 (1.44%) | |
| Active | – | – | |
| Price Change | – | – | |
| Price Reduced (from $364,900) | $355,000 | $9,900 (2.71%) | |
| Active | – | – | |
| New (from Coming Soon) | – | – | |
The data relating to real estate for sale on this web site comes in part from the Broker Reciprocity Program of Georgia MLS. Real estate listings held by brokerage firms other than Go Realty Of Georgia & Alabam are marked with the Broker Reciprocity logo and detailed information about them includes the name of the listing brokers.
The information being provided is for consumers' personal, non-commercial use and may not be used for any purpose other than to identify prospective properties consumers may be interested in purchasing. Information Deemed Reliable But Not Guaranteed.
The broker providing this data believes it to be correct, but advises interested parties to confirm them before relying on them in a purchase decision.
Copyright 2025 Georgia MLS. All rights reserved.
Listing information last updated on December 12th, 2025 at 10:46am CST.
















































