Hi There! Is this Your First Time?
Did you know if you Register you have access to free search tools including the ability to save listings and property searches? Did you know that you can bypass the search altogether and have listings sent directly to your email address? Check out our how-to page for more info.
- Price$775,000
- Beds5
- Baths3
- SQ. Feet4,500
- Acres0.90
- Built1843
174 Cherry Street, Commerce
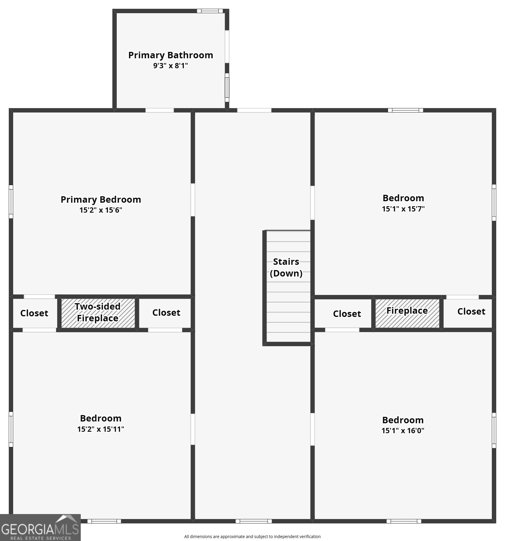
New to Market! They just do not build homes like this anymore! Listed on the National Historic Registry, the Seaborn M. Shankle house is thought to be the oldest building in Commerce, GA. Located in the Central Business District and zoned Residential/Commercial, this historic home offers a myriad of potential uses. Only an hour from Atlanta via I-85N, convenient to Athens, Lake Hartwell, Lavonia, Braselton and more. The original structure was built by Eli Shankle, one of the first pioneers of the area. He established a trading post and with his wife Rebecca built a two-room cabin c. 1843. In the mid-1870s, their son Seaborn Shankle added the larger Italianate-influenced house around the existing structure. Both the original cabin and the 19th-century addition comprise the existing house you see today. With modern updates, many original details, and a beautiful pool, the next caretaker can easily transition into carrying on the home's legacy. The grand central hallway is flanked by a parlor and dining room, as well as two additional spaces to be utilized as bedrooms or additional living spaces. At the end of the hallway is a spacious, updated bathroom and laundry room. At the rear of the home you'll find the kitchen and walk-in pantry. The natural beauty of the property is further enhanced by the newly added hardscaping by Smith Planning Group, perennial plantings, irrigation system, and pool. A wrap-around porch provides the perfect perch for enjoying the home's surroundings. Upstairs are four bedrooms and a central bathroom with clawfoot tub and access to a Juliet balcony overlooking the rear yard. Shankle House is also known for being the childhood home of the author Olive Ann Burns, famous for her novel Cold Sassy Tree, which she based on characters and stories from her family's time living there. There is so much to love about this property - from the high ceilings, original moldings, hardwood flooring, and pool to the walkable location near restaurants, a brewery, and local parks.
Essential Information
- MLS® #10623161
- Price$775,000
- Bedrooms5
- Bathrooms3.00
- Full Baths3
- Square Footage4,500
- Acres0.90
- Year Built1843
- TypeResidential
- Sub-TypeSingle Family Residence
- StyleTraditional, Victorian
- StatusActive
Amenities
- UtilitiesUnderground Utilities, Cable Available, Sewer Connected
- Parking Spaces3
- ParkingGuest, Off Street, Parking Pad
- ViewCity
- Has PoolYes
- PoolIn Ground
Exterior
- Exterior FeaturesBalcony, Garden
- Lot DescriptionLevel, Private
- RoofComposition
- ConstructionOther
Additional Information
- Days on Market33
Community Information
- Address174 Cherry Street
- SubdivisionHistoric Downtown
- CityCommerce
- CountyJackson
- StateGA
- Zip Code30529
Interior
- Interior FeaturesHigh Ceilings, Master On Main Level, Pulldown Attic Stairs, Rear Stairs, Separate Shower, Soaking Tub, Tile Bath
- AppliancesDishwasher, Disposal, Microwave, Oven/Range (Combo), Refrigerator, Stainless Steel Appliance(s)
- HeatingNatural Gas, Forced Air
- CoolingCeiling Fan(s), Central Air, Dual
- FireplacesLiving Room, Master Bedroom, Other
- StoriesTwo
School Information
- ElementaryCommerce Primary/Elementary
- MiddleCommerce
- HighCommerce
Listing Details
- Listing Provided Courtesy Of Corcoran Classic Living
Price Change History for 174 Cherry Street, Commerce, GA (MLS® #10623161)
| Date | Details | Price | Change |
|---|---|---|---|
| Active (from New) | – | – |
The data relating to real estate for sale on this web site comes in part from the Broker Reciprocity Program of Georgia MLS. Real estate listings held by brokerage firms other than Go Realty Of Georgia & Alabam are marked with the Broker Reciprocity logo and detailed information about them includes the name of the listing brokers.
The information being provided is for consumers' personal, non-commercial use and may not be used for any purpose other than to identify prospective properties consumers may be interested in purchasing. Information Deemed Reliable But Not Guaranteed.
The broker providing this data believes it to be correct, but advises interested parties to confirm them before relying on them in a purchase decision.
Copyright 2025 Georgia MLS. All rights reserved.
Listing information last updated on December 21st, 2025 at 1:00pm CST.

































































